Local comercial en alquiler en Santiago de Compostela zona Ensanche
Datos básicos
- LOC0950
- 1.900 € (antes 2.450 €)
- 320 m2(6 €/m2)
- A Coruña
- Santiago de Compostela
- Ensanche
Distribución e instalaciones
- 3
Certificado energético
Detalles
1.900 € 2.450 €
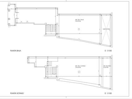
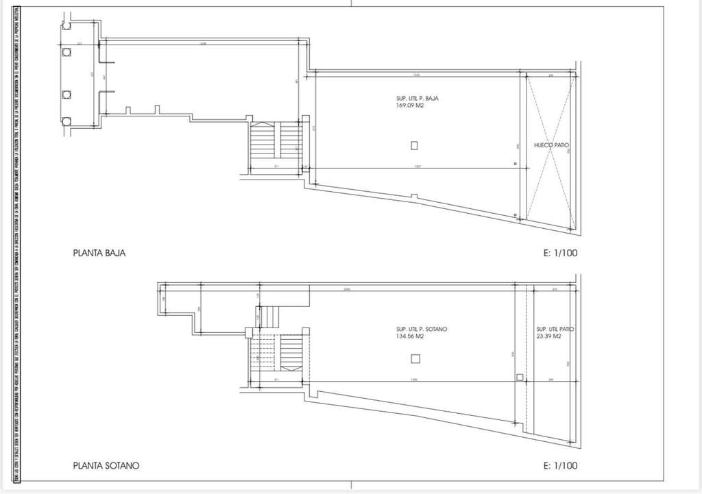
Akivivo alquila un local compuesto por bajo, sótano y jardín. Tiene mucha visibilidad pues cuenta con más de seis metros de fachada y se encuentra ubicado en un edificio emblemático.
La planta a la calle tiene alrededor de 170 m2 y el sótano unos 135 m2, dispone de un proyecto para clínica y se han iniciado los trámites en el concello para obtener la licencia.
Se ofrece flexibilidad en la carencia del pago del alquiler para acometer la obra.
Este anuncio es meramente informativo y puede contener errores, no es vinculante y no tiene validez contractual.[IW]
La planta a la calle tiene alrededor de 170 m2 y el sótano unos 135 m2, dispone de un proyecto para clínica y se han iniciado los trámites en el concello para obtener la licencia.
Se ofrece flexibilidad en la carencia del pago del alquiler para acometer la obra.
Este anuncio es meramente informativo y puede contener errores, no es vinculante y no tiene validez contractual.[IW]
- hace 30 días
- 320 m2
- 5,94 €/m2
- 22.4%
- 3
Akívivo
Contactar
Compartir
Tu opinión




