Local comercial en venta en Teulada zona Moraira
Datos básicos
- C-1944-AMBE
- 360.000 €
- 75 m2(4.800 €/m2)
- Alicante
- Teulada
- Moraira
Distribución e instalaciones
- 1
Certificado energético
Detalles
360.000 €
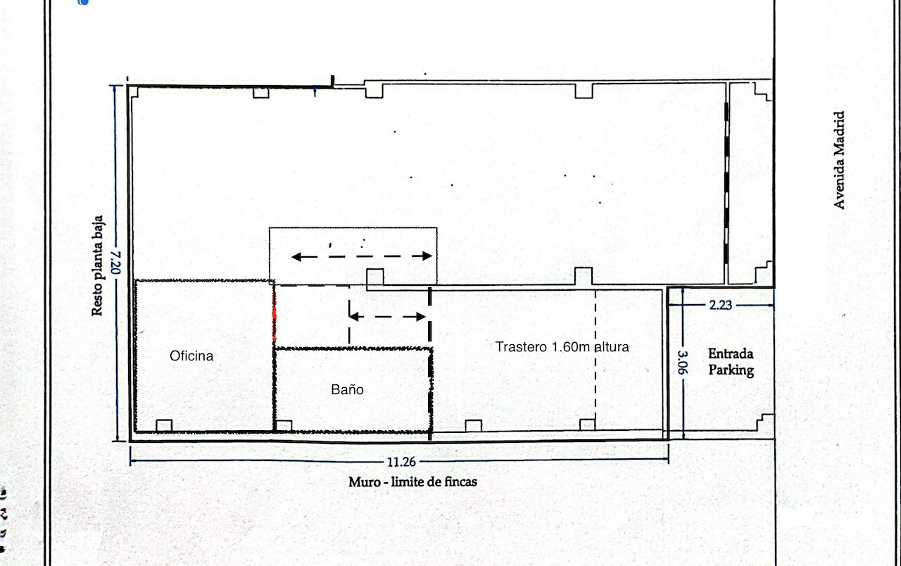
Amplio espacio con oficina, baño y acceso a parking
Se vende amplio local comercial en Moraira, ubicado en una zona estratégica junto a Avenida Madrid, ideal para emprendedores, inversores o negocios que buscan visibilidad y facilidad de acceso.
El local cuenta con una distribución funcional que incluye:
Gran sala diáfana con múltiples posibilidades de uso y excelente aprovechamiento del espacio.Oficina independiente, perfecta para administración, gestión o área privada de atención.Baño completo, situado de forma accesible y práctica dentro del local.Trastero de 1,60 m de altura, ideal como zona de almacenaje adicional.Fachada amplia y distribución rectangular que maximiza la luz y la funcionalidad del espacio.
Con una superficie total de aprox. 13 m de largo, este local ofrece un gran potencial para actividades comerciales, despacho profesional, almacén o showroom.
Ubicación privilegiada: En una de las avenidas principales de Moraira, en un entorno con tránsito, servicios y fácil conexión.
Si buscas un local comercial en Moraira con múltiples posibilidades, buena distribución y excelente acceso, esta propiedad es una oportunidad única.
Contactanos para mas información o visitas.
Se vende amplio local comercial en Moraira, ubicado en una zona estratégica junto a Avenida Madrid, ideal para emprendedores, inversores o negocios que buscan visibilidad y facilidad de acceso.
El local cuenta con una distribución funcional que incluye:
Gran sala diáfana con múltiples posibilidades de uso y excelente aprovechamiento del espacio.Oficina independiente, perfecta para administración, gestión o área privada de atención.Baño completo, situado de forma accesible y práctica dentro del local.Trastero de 1,60 m de altura, ideal como zona de almacenaje adicional.Fachada amplia y distribución rectangular que maximiza la luz y la funcionalidad del espacio.
Con una superficie total de aprox. 13 m de largo, este local ofrece un gran potencial para actividades comerciales, despacho profesional, almacén o showroom.
Ubicación privilegiada: En una de las avenidas principales de Moraira, en un entorno con tránsito, servicios y fácil conexión.
Si buscas un local comercial en Moraira con múltiples posibilidades, buena distribución y excelente acceso, esta propiedad es una oportunidad única.
Contactanos para mas información o visitas.
- hace 2 días
- 75 m2
- 4.800 €/m2
- 1
Casas Ambiente | Real Estate in Moraira
Contactar
Compartir
Tu opinión

















