Oficina en alquiler en Sant Just Desvern zona Sant Just Desvern
Datos básicos
- 40d024a
- 4.070 €
- 407 m2(10 €/m2)
- Barcelona
- Sant Just Desvern
- Sant Just Desvern
Distribución e instalaciones
- 4
Certificado energético
- F
Detalles
4.070 €
Referencia 40d024a
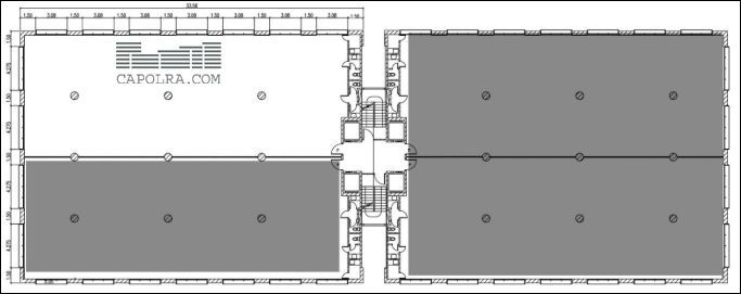
Oficina en proceso de remodelación, ubicada en edificio de oficinas en un entorno consolidado de negocios, con buenas comunicaciones al centro de Barcelona y con el aeropuerto.
*Fotografías orientativas de las plantas tipo del edificio.
LA OFICINA:
■ Diáfana de origen.
■ Falso techo con luminarias empotradas.
■ Aire acondicionado centralizado con climatización por zonas.
■ Pavimento técnico.
■ Aseos privativos.
■ Alquiler 4.070 €/mes (10 €/m²/mes).
■ Gastos de comunidad e IBI, 1.424, 50 €/mes (3,5 €/m²/mes).
■ Plazas de parquing opcionales a 90 euros/plaza/mes (gastos incluidos).
EL EDIFICIO:
■ Fachada de aluminio con doble cristal climalit.
■ Accesos sin barreras arquitectónicas.
■ Fibra óptica.
■ 4 ascensores.
■ Dos escaleras de emergencia.
■ Red interior de megafonía y telefonía, centralizado en conserjería.
■ Servicio conserjería.
■ Correspondencia con Hotel Hesperia San Just para convenciones, gimnasio y/o catering.
■ Garaje en el mismo edificio con acceso directo al vestíbulo de la oficina.
Comunicaciones:
■ TRAM: T3, Hospital Sant Joan Despí - TV3.
■ BUS: 78, 157, L20, L21, L46, L77, X30
■ CARRETERAS: B23, N340.
Para visitas u otros inmuebles similares contactar con:
-t.93 490 67 48
-contacto@capolra.com
-www.capolra.com
Oficina en proceso de remodelación, ubicada en edificio de oficinas en un entorno consolidado de negocios, con buenas comunicaciones al centro de Barcelona y con el aeropuerto.
*Fotografías orientativas de las plantas tipo del edificio.
LA OFICINA:
■ Diáfana de origen.
■ Falso techo con luminarias empotradas.
■ Aire acondicionado centralizado con climatización por zonas.
■ Pavimento técnico.
■ Aseos privativos.
■ Alquiler 4.070 €/mes (10 €/m²/mes).
■ Gastos de comunidad e IBI, 1.424, 50 €/mes (3,5 €/m²/mes).
■ Plazas de parquing opcionales a 90 euros/plaza/mes (gastos incluidos).
EL EDIFICIO:
■ Fachada de aluminio con doble cristal climalit.
■ Accesos sin barreras arquitectónicas.
■ Fibra óptica.
■ 4 ascensores.
■ Dos escaleras de emergencia.
■ Red interior de megafonía y telefonía, centralizado en conserjería.
■ Servicio conserjería.
■ Correspondencia con Hotel Hesperia San Just para convenciones, gimnasio y/o catering.
■ Garaje en el mismo edificio con acceso directo al vestíbulo de la oficina.
Comunicaciones:
■ TRAM: T3, Hospital Sant Joan Despí - TV3.
■ BUS: 78, 157, L20, L21, L46, L77, X30
■ CARRETERAS: B23, N340.
Para visitas u otros inmuebles similares contactar con:
-t.93 490 67 48
-contacto@capolra.com
-www.capolra.com
- hace 12 días
- 407 m2
- 10 €/m2
- 4
Capolra
Contactar
Compartir
Tu opinión















