Local comercial en alquiler en Santa Coloma de Gramenet

10
Local comercial en alquiler en Santa Coloma de Gramenet
Datos básicos
  • ARJP01
  • 9.900
  • 489 m2(20 €/m2)
  • Barcelona
  • Santa Coloma de Gramenet
  • Bien
Distribución e instalaciones
  • 15
  • 1
  • 489 m2
Certificado energético
etiqueta energética
Detalles
9.900
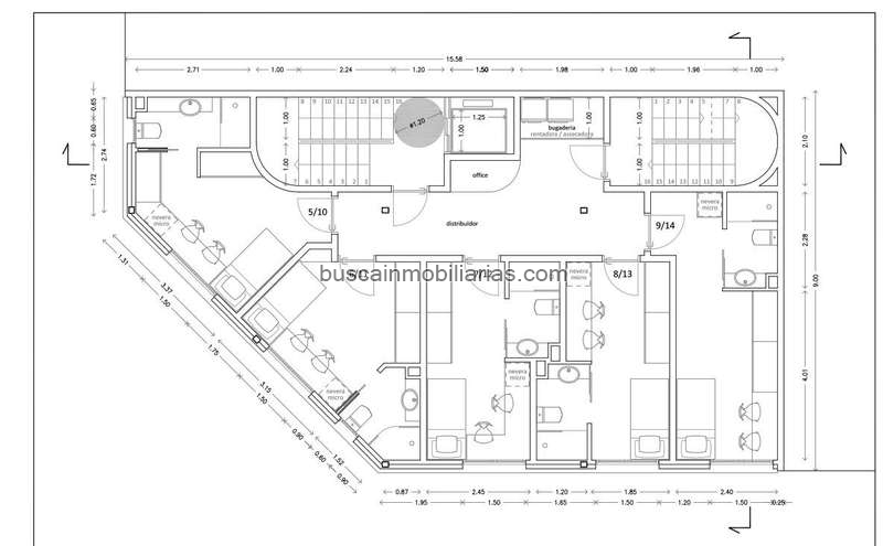
Edificio de oficinas apto para posible reconversión a residencia de estudiantes

Actualmente se trata de un edificio de oficinas de 4 Plantas (primera, segunda, tercera y cuarta) formando un chaflan

Superficie total: 566 m2
Distribución: Planta Baja + 4 Plantas, en forma de chaflán
Dirección: c/ Pompeu Fabra, Santa Coloma de Gramenet
Ubicación: Próxima al Ayuntamiento y rodeada de servicios (mercado, gimnasio, farmacias, centro médico)

Proyecto de Reconversión a Residencia de Estudiantes
La reconversión del edificio permitiría albergar hasta 28 estudiantes en habitaciones modernas y confortables.

Distribución de habitaciones: 14 habitaciones dobles, cada una con baño privado
Capacidad de ocupación: 28 personas
Ático (4ª Planta): Espacios comunes, incluyendo cocina, comedor, lavandería, terrazas y solárium

Condiciones de Alquiler Llaves en Mano
Duración del contrato: 15 años, con 7 años de obligado cumplimiento
Entrada: 400.000 € (destinados a la obra; el edificio se entregaría nuevo a estrenar)
Renta mensual:
•Primeros 7 años: 5.150 €/mes + IVA
•A partir del año 7: 9.900 €/mes + IVA
Cesión de la licencia: Incluida
Fianza: 2 mensualidades
Garantía adicional: 8 meses
Ajuste anual: IPC

Nota: No incluye mobiliario
Proyecto de Obra Incluido en el Alquiler

La propiedad se encarga de la rehabilitación completa del edificio, la cual incluye:

•Remodelación de la fachada y cubierta
•Instalación de un ascensor
•Distribución de habitaciones con baño privado
•Sustitución de ventanas
•Instalación de sistemas nuevos de electricidad, fontanería, comunicación y climatización
•Mejoras de iluminación
•Esta intervención permitirá entregar el edificio en perfectas condiciones para su uso como residencia de estudiantes, con instalaciones modernas y eficientes, y un ambiente seguro y confortable para los inquilinos.Junto al M Metro de Santa Coloma y delante de Radio Teletaxi Santa Coloma de Gramenet es la 7ª ciudad más poblada de la Provincia de Barcelona.

CONTACTAR PARA AMPLIAR INFORMACIÓN
  • hace 3 días
  • Bien
  • 489 m2
  • 20,25 €/m2
  • 1
  • 15
Contactar
Compartir
Tu opinión
×Esta web utiliza cookies técnicas, de personalización y análisis, propias y de terceros, para facilitarle la navegación de forma anónima y analizar estadísticas del uso de la web. Consideramos que si continúa navegando, acepta su uso. Más información.