Local comercial en venta en San Fernando
Datos básicos
- 1526
- 420.000 €
- 380 m2(1.105 €/m2)
- Cádiz
- San Fernando
- Bien
Distribución e instalaciones
- 1
- 380 m2
Certificado energético
- G
Detalles
420.000 €
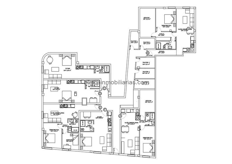
¡Oportunidad única para inversores y promotores! Se vende amplio local con proyecto de transformación en 6 viviendas independientes y 5 trasteros, en una zona con gran demanda de vivienda y espacios de almacenamiento.
- Características principales
Superficie diáfana con gran versatilidad.
- Proyecto diseñado para la creación de 6 apartamentos/estudios modernos, todos con zona de estar, cocina, baño y dormitorio.
- Incluye 5 trasteros, perfectos como valor añadido para las viviendas o como unidades independientes de alquiler.
- Estancias pensadas para maximizar la luz natural y la funcionalidad.
- Accesos cómodos y distribución eficiente.
- Ventajas de la inversión
- Alta demanda de viviendas pequeñas y trasteros en la zona.
- Posibilidad de obtener una excelente rentabilidad bruta por alquiler.
- Proyecto adaptable a las necesidades del inversor.
No dejes pasar la oportunidad de invertir en un espacio con proyección, versatilidad y alta rentabilidad.
En cumplimiento del decreto 218/2005, de 11 de octubre, por el que se aprueba el reglamento de información al consumidor en la compraventa y arrendamiento de viviendas en Andalucía, se pone en conocimiento de nuestros clientes que en el precio reflejado en el anuncio no están incluidos los gastos inherentes a la compraventa, tales como notaría, registro, ITP, los honorarios de la agencia y otros.
- Características principales
Superficie diáfana con gran versatilidad.
- Proyecto diseñado para la creación de 6 apartamentos/estudios modernos, todos con zona de estar, cocina, baño y dormitorio.
- Incluye 5 trasteros, perfectos como valor añadido para las viviendas o como unidades independientes de alquiler.
- Estancias pensadas para maximizar la luz natural y la funcionalidad.
- Accesos cómodos y distribución eficiente.
- Ventajas de la inversión
- Alta demanda de viviendas pequeñas y trasteros en la zona.
- Posibilidad de obtener una excelente rentabilidad bruta por alquiler.
- Proyecto adaptable a las necesidades del inversor.
No dejes pasar la oportunidad de invertir en un espacio con proyección, versatilidad y alta rentabilidad.
En cumplimiento del decreto 218/2005, de 11 de octubre, por el que se aprueba el reglamento de información al consumidor en la compraventa y arrendamiento de viviendas en Andalucía, se pone en conocimiento de nuestros clientes que en el precio reflejado en el anuncio no están incluidos los gastos inherentes a la compraventa, tales como notaría, registro, ITP, los honorarios de la agencia y otros.
- 16/10/2025
- Bien
- 380 m2
- 1.105,26 €/m2
- 1
Gestihogares
Contactar
Compartir
Tu opinión

