Parcela en venta en Muros de Nalón
Detalles
80.000 €
REFERENCIA: 68974 Terreno Urbano en Venta en Muros de Nalón, Asturias
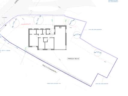
Este terreno edificable de 762 m2 ya incluye el proyecto y la licencia de obras para construir tu Casa de planta baja.
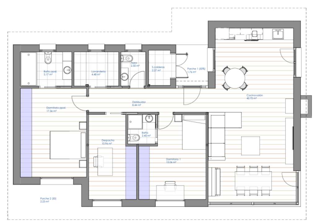
La vivienda tiene su acceso directo a través de un porche que se diseña en la fachada Noreste, consta de distribuidor, salón cocina, y tres dormitorios, dos de ellos con cuarto de baño en su interior, un aseo y cuarto de lavandería.
Este espacio te ofrece la flexibilidad de diseñar un hogar adaptado a tus necesidades y estilo de vida.
Posee los servicios de acceso rodado directo a través de la vía pública, red de abastecimiento de agua, suministro de energía eléctrica, red de saneamiento municipal y red de acceso a telecomunicaciones.
Ubicado en una zona estratégica, a 1 min. de la Autovía para acercarse al aeropuerto en 10 min. y a las ciudades de Asturias.
Consulta toda la información del proyecto
No dejes pasar esta fantástica oportunidada de invertir en un terreno que no solo es un lugar para vivir, sino también un lugar para crear recuerdos. Contáctanos hoy mismo para más información y para programar una visita
Este terreno edificable de 762 m2 ya incluye el proyecto y la licencia de obras para construir tu Casa de planta baja.
La vivienda tiene su acceso directo a través de un porche que se diseña en la fachada Noreste, consta de distribuidor, salón cocina, y tres dormitorios, dos de ellos con cuarto de baño en su interior, un aseo y cuarto de lavandería.
Este espacio te ofrece la flexibilidad de diseñar un hogar adaptado a tus necesidades y estilo de vida.
Posee los servicios de acceso rodado directo a través de la vía pública, red de abastecimiento de agua, suministro de energía eléctrica, red de saneamiento municipal y red de acceso a telecomunicaciones.
Ubicado en una zona estratégica, a 1 min. de la Autovía para acercarse al aeropuerto en 10 min. y a las ciudades de Asturias.
Consulta toda la información del proyecto
No dejes pasar esta fantástica oportunidada de invertir en un terreno que no solo es un lugar para vivir, sino también un lugar para crear recuerdos. Contáctanos hoy mismo para más información y para programar una visita
- 30/10/2025
Contactar
Compartir
Tu opinión
Mapa


















