Parcela rústica en venta en Chipiona
Detalles
75.000 €
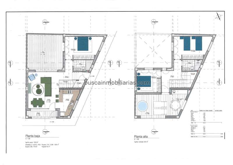
Parcela urbana de 103,28m2 y parcela rustica de 66.79m, con proyecto de edificacion pagado
Con proyecto de edificacion.
Con proyecto de edificacion.
- 16/10/2025
Arancha
Contactar
Compartir
Tu opinión

