Parcela en venta en Benalmádena
Detalles
600.000 €
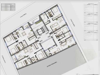
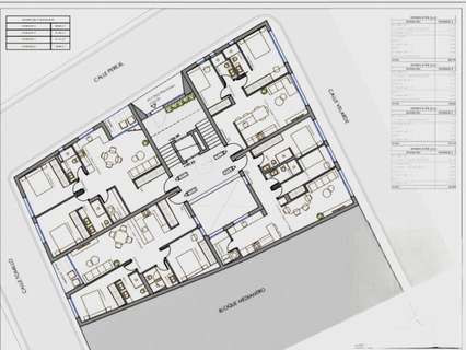
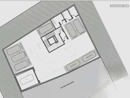
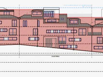
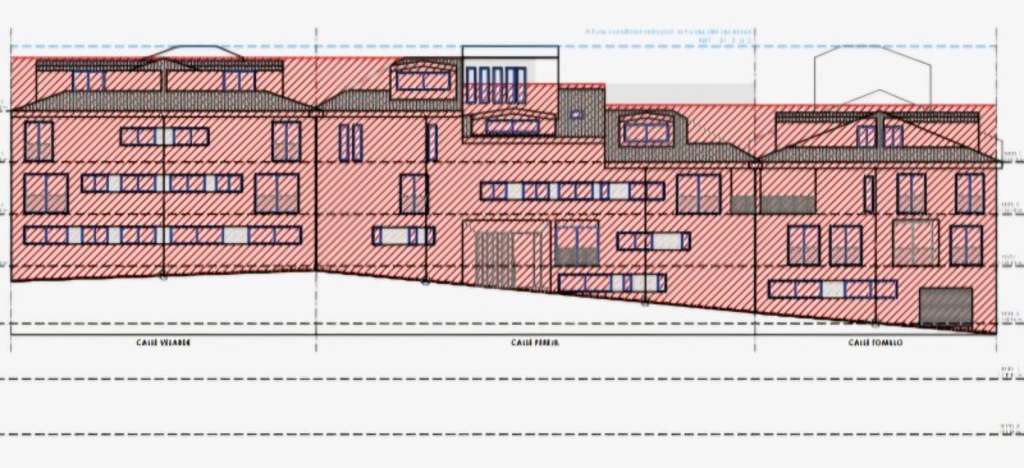
REFERENCIA: 67B60 REF:67B60 BENALMADENA SUELO URBANO CON PROYECTO PARA 12 VIVIENDAS, 16 GARAJES Y 16 TRASTEROS.
En solar con fachada a 3 calles.
Parcela 394,72 m2
M2 construidos 2.220,89 m2
Viviendas:
1 de 1 Dormitorio
7 de 2 Dormitorios
4 Áticos duplex de 3 Dormitorios.
16 plazas de garaje
16 Trasteros.
En calle Velarde en Arroyo de la Miel Benalmadena se vende este suelo con gran fachada a 3 calles en zona residencial.
Se vende la parcela con proyecto, para mayor agilidad y poder conseguir la Licencia de obras de forma rápida.
No dejes pasar la oportunidad de visitar este maravilloso piso Ponte en contacto con nosotros para más información y para concertar una visita Teléfono de contacto: 630 063 554
En solar con fachada a 3 calles.
Parcela 394,72 m2
M2 construidos 2.220,89 m2
Viviendas:
1 de 1 Dormitorio
7 de 2 Dormitorios
4 Áticos duplex de 3 Dormitorios.
16 plazas de garaje
16 Trasteros.
En calle Velarde en Arroyo de la Miel Benalmadena se vende este suelo con gran fachada a 3 calles en zona residencial.
Se vende la parcela con proyecto, para mayor agilidad y poder conseguir la Licencia de obras de forma rápida.
No dejes pasar la oportunidad de visitar este maravilloso piso Ponte en contacto con nosotros para más información y para concertar una visita Teléfono de contacto: 630 063 554
- 30/10/2025
Contactar
Compartir
Tu opinión
Mapa


















