Parcela urbanizable en venta en Murcia zona Murcia
Detalles
30.000 €
Hermosa parcela de tierra en venta en La Parroquia – Lorca (Murcia)
Si eres un amante del campo y de lo rústico, te ofrecemos esta hermosa parcela de tierra en venta en La Parroquia, al norte de Lorca (Murcia). Esta propiedad es un terreno ideal para construir la casa que siempre has soñado tener en medio de un entorno natural, con permiso de planificación.
El terreno se encuentra situado en los límites de Murcia y Almería. Hay un total de 27.000 metros cuadrados de terreno que en este momento tiene algunos almendros, uvas y olivos en crecimiento. La tierra tiene las más fantásticas vistas del valle y conduce hasta el pequeño arroyo que corre en el fondo de la parcela.
La ubicación de este terreno está a unos 5 kilómetros de la ciudad española de La Parroquia, en la MU701 hacia Vélez Rubio.
Construye la casa de tus sueños en esta hermosa parcela de tierra en venta en La Parroquia - Lorca
Para alguien que quiera construir una fabulosa villa, esta parcela de tierra en venta en La Parroquia - Lorca sería un escenario ideal para unas vacaciones a pie o en bicicleta. Sus extensos senderos y valles te permitirán hacer deporte a diario, mientras disfrutas al mismo tiempo de un enclave mediterráneo encantador.
El clima en esta zona de la región de Murcia es fabuloso. Sus temperaturas cálidas anuales y su excelente ubicación geográfica, te harán disfrutar del sol más de 12 horas al día.
Construir una villa con piscina y solárium, podría ser una gran opción para aprovechar las magníficas temperaturas estivales de la zona.
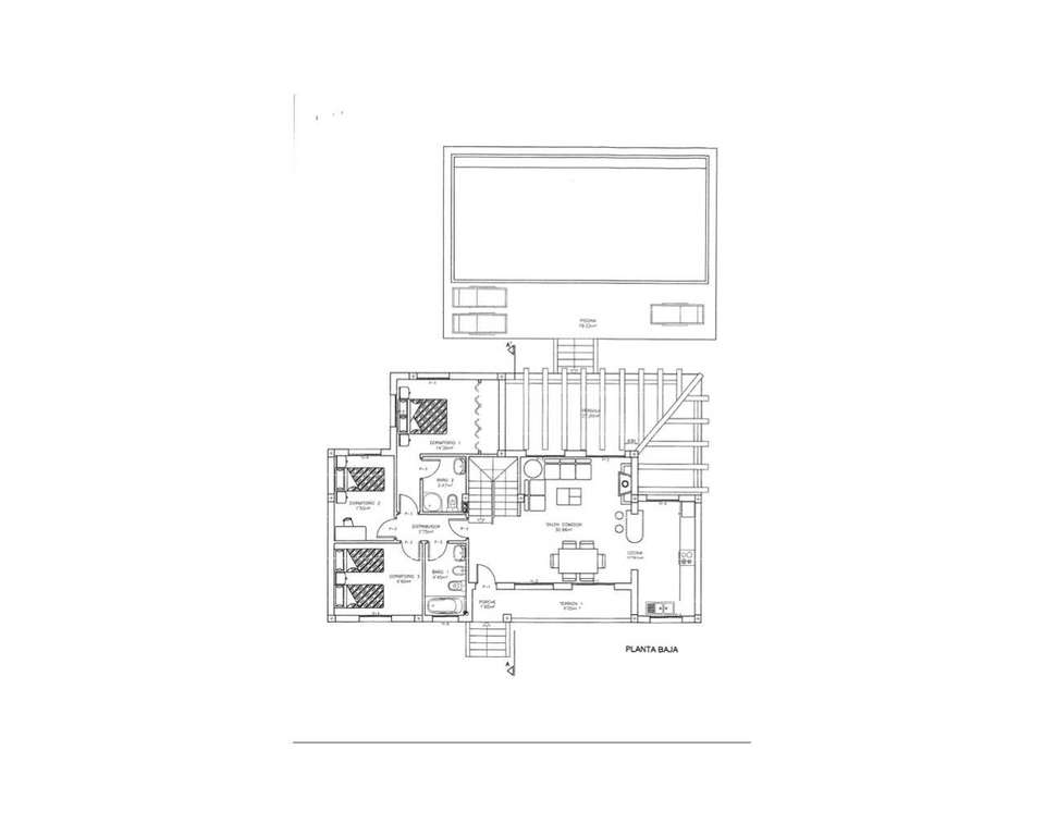
Hemos adjuntado algunos planos que han sido presentados previamente al ayuntamiento local para dar a los nuevos propietarios una idea de lo que podría ser construido. Los nuevos propietarios podrán usar su propio arquitecto para diseñar la casa perfecta de sus sueños.
Infórmate de todas las ventajas de comprar esta hermosa parcela de tierra en venta en La Parroquia – Lorca
Si quieres conocer más información sobre esta parcela de tierra en venta en La Parroquia – Lorca, solicítanosla sin compromiso.
Ponte en contacto con nosotros y cumple tu sueño de vivir cerca de la costa mediterránea española
Si eres un amante del campo y de lo rústico, te ofrecemos esta hermosa parcela de tierra en venta en La Parroquia, al norte de Lorca (Murcia). Esta propiedad es un terreno ideal para construir la casa que siempre has soñado tener en medio de un entorno natural, con permiso de planificación.
El terreno se encuentra situado en los límites de Murcia y Almería. Hay un total de 27.000 metros cuadrados de terreno que en este momento tiene algunos almendros, uvas y olivos en crecimiento. La tierra tiene las más fantásticas vistas del valle y conduce hasta el pequeño arroyo que corre en el fondo de la parcela.
La ubicación de este terreno está a unos 5 kilómetros de la ciudad española de La Parroquia, en la MU701 hacia Vélez Rubio.
Construye la casa de tus sueños en esta hermosa parcela de tierra en venta en La Parroquia - Lorca
Para alguien que quiera construir una fabulosa villa, esta parcela de tierra en venta en La Parroquia - Lorca sería un escenario ideal para unas vacaciones a pie o en bicicleta. Sus extensos senderos y valles te permitirán hacer deporte a diario, mientras disfrutas al mismo tiempo de un enclave mediterráneo encantador.
El clima en esta zona de la región de Murcia es fabuloso. Sus temperaturas cálidas anuales y su excelente ubicación geográfica, te harán disfrutar del sol más de 12 horas al día.
Construir una villa con piscina y solárium, podría ser una gran opción para aprovechar las magníficas temperaturas estivales de la zona.
Hemos adjuntado algunos planos que han sido presentados previamente al ayuntamiento local para dar a los nuevos propietarios una idea de lo que podría ser construido. Los nuevos propietarios podrán usar su propio arquitecto para diseñar la casa perfecta de sus sueños.
Infórmate de todas las ventajas de comprar esta hermosa parcela de tierra en venta en La Parroquia – Lorca
Si quieres conocer más información sobre esta parcela de tierra en venta en La Parroquia – Lorca, solicítanosla sin compromiso.
Ponte en contacto con nosotros y cumple tu sueño de vivir cerca de la costa mediterránea española
- 3/11/2025
- 27.000 m2
- 1,11 €/m2
Zebra Homes
Contactar
Compartir
Tu opinión













