Parcela en venta en Adeje
Detalles
950.000 €
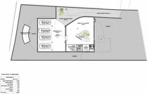
Villa Infinity – Un Concepto Arquitectónico Único en el Sur de Tenerife Presentamos Villa Infinity, una exclusiva residencia sobre plano, ubicada en Jardines de Armeñime, una tranquila zona residencial del prestigioso sur de Tenerife. Situada en una generosa parcela de 976 m2, esta propiedad ya cuenta con proyecto arquitectónico aprobado y licencia de obra en vigor, lo que permite iniciar su construcción de forma inmediata. A tan solo minutos de La Caleta y del Golf Costa Adeje, la ubicación ofrece el equilibrio perfecto entre privacidad, entorno natural y cercanía a las mejores zonas de ocio, gastronomía y servicios de la isla. ✨ Un Refugio de Diseño y Serenidad Villa Infinity trasciende el concepto tradicional de vivienda. Inspirada en la forma del símbolo del infinito, su arquitectura fluida crea una experiencia sensorial envolvente, donde cada curva refleja elegancia, armonía y continuidad. Diseñada para disfrutar de los momentos más sublimes, sus amplias terrazas ofrecen vistas panorámicas al mar y a la isla de La Gomera, siendo el escenario perfecto para contemplar las puestas de sol en absoluta tranquilidad, rodeado de jardines tropicales y privacidad total. Características del Proyecto: 507 m2 de superficie útil, distribuidos con inteligencia y equilibrio 4 dormitorios en suite, espaciosos y luminosos 2 piscinas privadas, una integrada al salón principal y otra en el nivel inferior Diseño de concepto abierto que conecta cocina, comedor y salón con el exterior Arquitectura orientada a la privacidad, sin renunciar a la conexión con la naturaleza Opciones de personalización en materiales y acabados Proyecto con licencia aprobada y posibilidad de entrega llave en mano Tu Hogar a Medida en un Entorno Privilegiado Villa Infinity es una oportunidad única para construir una vivienda contemporánea en una de las zonas más exclusivas de Tenerife. El equilibrio entre diseño, confort y entorno hace de esta propiedad una joya arquitectónica pensada para quienes buscan vivir el lujo con alma. Contáctanos para más información, planos detallados y asesoramiento personalizado. Haz realidad la villa con la que siempre has soñado. Referencia Lusa Realty: 52733. | ID: 52733
- 13/09/2025
- 976 m2
- 973,36 €/m2
ArKadia Publishing Ltd 2
Contactar
Compartir
Tu opinión
Mapa


































