Ático en venta en Ribeira
Datos básicos
- VI_17_O_15960_024
- 115.000 €
- 54 m2(2.130 €/m2)
- A Coruña
- Ribeira
- Bien
- 2.008(18 años)
Distribución e instalaciones
- 2
- 2 (dobles 2)
- 1
- 1(4 m2)
- 1
Varios
- Semi-amueblado
- Acumuladores calor azul
- Sí
Certificado energético
Detalles
115.000 €
Apartamento de 2 dormitorios y terraza a escasos 8 min caminando del centro de Ribeira
********** DESCRIPCIÓN INMUEBLE **************
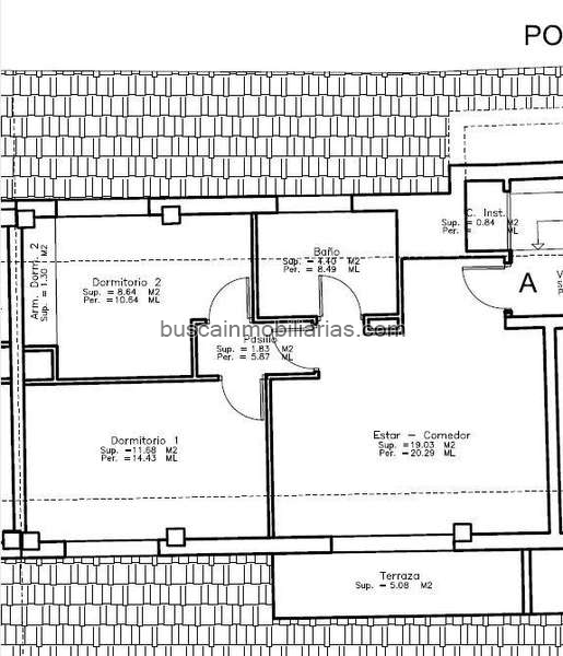
El piso está ubicado en la planta ático y está distribuida en salón-comedor-cocina, baño, dos dormitorios y terraza.
La vivienda está amueblada de forma que está para entrar a vivir solo necesitas tu ropa y después con el tiempo puedes ir haciendo cambios si los deseas.
Las paredes de las estancias son lisas, los suelos en los dormitorios son de tarima de madera y la carpintería interior también en madera. La carpintería exterior es de aluminio, con doble ventana, persiana de aluminio en medio y doble cristal en la ventana exterior.
(todas las fotografías que realizamos de las viviendas son para para que se hagan una idea de cómo es la vivienda. Unos clientes nos dicen que algunas estancias en la realidad son más amplias que lo que ve en las fotos y otros que en las fotos parecía más grande que en la realidad por lo que le pedimos que por favor no se queden con la duda lo mejor es concertar una visita y así decidir si descartarla o si le ven posibilidades de seguir adelante con una oferta).
Nota: este anuncio es informativo y no tiene valor contractual, puede contener algún error involuntario.
********** SITUACIÓN **************
La ubicación es la real de la vivienda para que así puedas ver distancias a tus intereses.
Situada a escasos 8 min. caminando y 2 min. en coche de la plaza del Concello y todos los servicios.
A tan solo 5 minutos caminando del Mercadona.
A 6 min. en coche de la playa de Coroso.
********** OTRAS CARACTERÍSTICAS **************
Para mayor comodidad, dispone de plaza de garaje y trastero-tendedero en el mismo edificio.
Hacemos un asesoramiento previo, si lo necesitas, para comprender cómo funciona la financiación, en caso de necesitarla.
La cuota hipotecaria a pagar cada mes deberá suponer como máximo el 40% de los ingresos mensuales. Nosotros recomendamos que cuando compréis dicho porcentaje es recomendable que suponga entre el 30-35% (y ojalá pudiera ser inferior:)
De todas formas, puedes llamarnos y te ayudamos sin ningún compromiso ni coste. Segurísimo que te sirve la información para ésta u otras viviendas que veas por ahí.
una visita y así decidir si descartarla o si le ven posibilidades de seguir adelante con una oferta).
Se realizan visitas sólo con cita previa.
********** NOSOTROS **************
TU BUSCAS UN INMUEBLE Y NOSOTROS TE AYUDAMOS A TOMAR DECISIONES INMOBILIARIAS CORRECTAS SEGÚN TUS NECESIDADES.
Estamos a tu lado para aportarte TRANQUILIDAD Y SEGURIDAD.
********** DESCRIPCIÓN INMUEBLE **************
El piso está ubicado en la planta ático y está distribuida en salón-comedor-cocina, baño, dos dormitorios y terraza.
La vivienda está amueblada de forma que está para entrar a vivir solo necesitas tu ropa y después con el tiempo puedes ir haciendo cambios si los deseas.
Las paredes de las estancias son lisas, los suelos en los dormitorios son de tarima de madera y la carpintería interior también en madera. La carpintería exterior es de aluminio, con doble ventana, persiana de aluminio en medio y doble cristal en la ventana exterior.
(todas las fotografías que realizamos de las viviendas son para para que se hagan una idea de cómo es la vivienda. Unos clientes nos dicen que algunas estancias en la realidad son más amplias que lo que ve en las fotos y otros que en las fotos parecía más grande que en la realidad por lo que le pedimos que por favor no se queden con la duda lo mejor es concertar una visita y así decidir si descartarla o si le ven posibilidades de seguir adelante con una oferta).
Nota: este anuncio es informativo y no tiene valor contractual, puede contener algún error involuntario.
********** SITUACIÓN **************
La ubicación es la real de la vivienda para que así puedas ver distancias a tus intereses.
Situada a escasos 8 min. caminando y 2 min. en coche de la plaza del Concello y todos los servicios.
A tan solo 5 minutos caminando del Mercadona.
A 6 min. en coche de la playa de Coroso.
********** OTRAS CARACTERÍSTICAS **************
Para mayor comodidad, dispone de plaza de garaje y trastero-tendedero en el mismo edificio.
Hacemos un asesoramiento previo, si lo necesitas, para comprender cómo funciona la financiación, en caso de necesitarla.
La cuota hipotecaria a pagar cada mes deberá suponer como máximo el 40% de los ingresos mensuales. Nosotros recomendamos que cuando compréis dicho porcentaje es recomendable que suponga entre el 30-35% (y ojalá pudiera ser inferior:)
De todas formas, puedes llamarnos y te ayudamos sin ningún compromiso ni coste. Segurísimo que te sirve la información para ésta u otras viviendas que veas por ahí.
una visita y así decidir si descartarla o si le ven posibilidades de seguir adelante con una oferta).
Se realizan visitas sólo con cita previa.
********** NOSOTROS **************
TU BUSCAS UN INMUEBLE Y NOSOTROS TE AYUDAMOS A TOMAR DECISIONES INMOBILIARIAS CORRECTAS SEGÚN TUS NECESIDADES.
Estamos a tu lado para aportarte TRANQUILIDAD Y SEGURIDAD.
- hace 26 días
- Bien
- 54 m2
- 2.129,63 €/m2
- 2
- 1
- 2008
Vistamar Galicia
Contactar
Compartir
Tu opinión











