Apartamento en venta en Algorfa zona Pueblo
Datos básicos
- REDSP-24614
- 206.000 €
- 84 m2(2.452 €/m2)
- Alicante
- Algorfa
- Pueblo
Distribución e instalaciones
- 3
- 2
Varios
- Sí
Certificado energético
Detalles
206.000 €
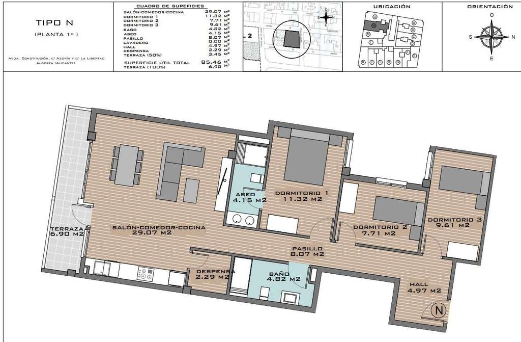
RESIDENCIAL DE OBRA NUEVA EN ALGORFA
Residencial de obra nueva de 41 elegantes apartamentos y áticos en Algorfa.
Residencial consta de apartamentos de 1, 2 y 3 dormitorios, con 1 o 2 baños, cocina americana con el salón, armarios empotrados.
Los modernos áticos disponen de solarium privado.
Preinstalación de aire acondicionado frío/calor, impulsión por conductos y retorno por rejillas en falso techo.
Cocina y frente en compacto de PVC, equipada con armarios bajos y altos, frentes de cajones y puertas en combinación de laminado blanco y laminado de madera.
Etiqueta energética A.
Posibilidad de plaza de garaje subterránea y trastero con coste adicional.
Acceso a una piscina comunitaria para la relajación y el ocio. Gimnasio in situ para los entusiastas de la salud y la forma física.
Enclavado en el corazón de un pueblo tradicional, Algorfa ofrece la mezcla perfecta de encanto español y comodidades modernas, por lo que es un destino ideal tanto para turistas como para locales.
Residencial situado a poca distancia del centro del pueblo, colegios y el campo de golf La finca.
A sólo 15 minutos de hermosas playas y hospitales.
A 35 minutos en coche del aeropuerto.
- hace 11 días
- 84 m2
- 2.452,38 €/m2
- 3
- 2
Contactar
Compartir
Tu opinión












