Casa en venta en Algorfa zona Algorfa
Datos básicos
- MI-56891
- 473.000 €
- 199 m2(2.377 €/m2)
- Alicante
- Algorfa
- Algorfa
Distribución e instalaciones
- 3
- 3
Varios
- Sí
Certificado energético
Detalles
473.000 €
Te presentamos un conjunto residencial exclusivo con 8 viviendas unifamiliares que se caracterizan por su diseño moderno y funcional, rodeadas de un entorno excepcional junto al campo de golf. Ubicadas en Alicante, Algorfa, ofrecen una experiencia de vida única.
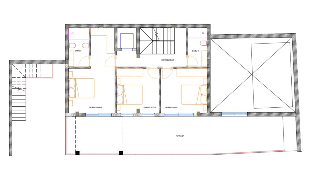
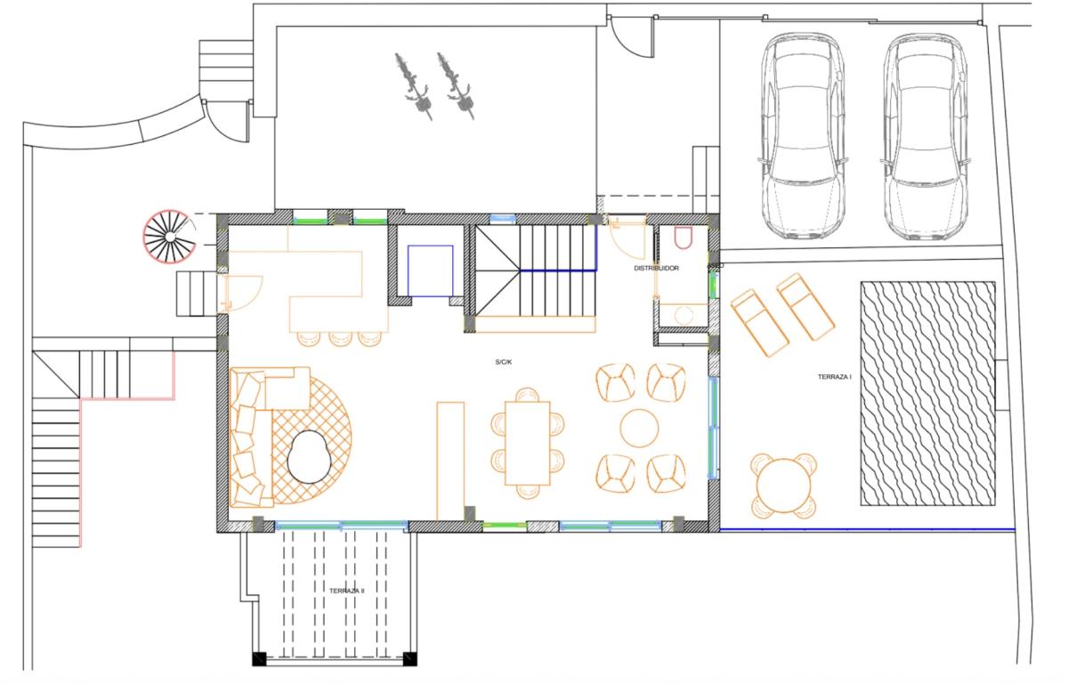
Estas viviendas cuentan con entre 3 y 4 dormitorios y superficies que van de los 199 m² a los 291 m². El diseño incorpora una cocina americana equipada que se integra en un espacioso y luminoso salón. Se destacan por tener suelos de gres porcelánico, suelo radiante y doble acristalamiento en las ventanas. Incluyen un sistema de agua caliente mediante bomba de calor.
Los residentes podrán disfrutar de amplias terrazas, un solárium privado, jardín, y la posibilidad de añadir una piscina privada. Además, tienen sistemas de estacionamiento privado y áreas ajardinadas diseñadas para brindar tranquilidad y confort.
Con una ubicación estratégica, estas viviendas permiten disfrutar del estilo de vida mediterráneo estando a tan solo 15 minutos de las paradisíacas playas de Guardamar del Segura y 35 minutos del aeropuerto de Alicante. Algorfa se encuentra rodeada de servicios locales, campos de golf, y cercana a encantadoras localidades como Ciudad Quesada y Benijófar.
Las propiedades se completarán en 2025, representando una perfecta combinación de diseño contemporáneo y calidad de construcción, ideales tanto para residir todo el año como para disfrutar de una segunda vivienda. Para más detalles, presentaciones están disponibles aquí.
Estas viviendas cuentan con entre 3 y 4 dormitorios y superficies que van de los 199 m² a los 291 m². El diseño incorpora una cocina americana equipada que se integra en un espacioso y luminoso salón. Se destacan por tener suelos de gres porcelánico, suelo radiante y doble acristalamiento en las ventanas. Incluyen un sistema de agua caliente mediante bomba de calor.
Los residentes podrán disfrutar de amplias terrazas, un solárium privado, jardín, y la posibilidad de añadir una piscina privada. Además, tienen sistemas de estacionamiento privado y áreas ajardinadas diseñadas para brindar tranquilidad y confort.
Con una ubicación estratégica, estas viviendas permiten disfrutar del estilo de vida mediterráneo estando a tan solo 15 minutos de las paradisíacas playas de Guardamar del Segura y 35 minutos del aeropuerto de Alicante. Algorfa se encuentra rodeada de servicios locales, campos de golf, y cercana a encantadoras localidades como Ciudad Quesada y Benijófar.
Las propiedades se completarán en 2025, representando una perfecta combinación de diseño contemporáneo y calidad de construcción, ideales tanto para residir todo el año como para disfrutar de una segunda vivienda. Para más detalles, presentaciones están disponibles aquí.
- hace 1 hora
- 199 m2
- 2.376,88 €/m2
- 3
- 3
Brillance Homes
Contactar
Compartir
Tu opinión



























