Chalet en venta en Algorfa
Datos básicos
- BCLW-T2791
- 478.000 €
- 308 m2(1.552 €/m2)
- Alicante
- Algorfa
Distribución e instalaciones
- 0
- 0
- 1
Certificado energético
Detalles
478.000 €
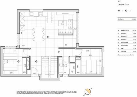
Descripción del objeto: Chalets maravillosos de dos plantas que constan de una superficie construida de unas 198 m² - 205 m² (incluyendo terrazas) con 3 dormitorios, 2 baños (1 en-suite), 1 salón / comedor espacioso con cocina moderna, 1 terraza en planta baja (a unos 31 m² - 38 m²) y 1 solario (a unos 36 m²). Las parcelas tienen un tamaño de unos 308 m² - 435 m². Aquí se están construyendo villas muy atractivas con un diseño de dos plantas y con piscina privada y plaza de aparcamiento. Villas contemporáneas que combinan líneas modernas con elementos tradicionales como piedra en fachada y dinteles en imitación madera en ventanas. La distribución de estas viviendas ayuda al aprovechamiento de la luz solar durante toda la jornada e, igualmente, su disposición, favorece la privacidad que, tan importante es para nuestros clientes. Equipamiento adicional: El equipamiento de alta calidad de las casas incluye aire-acondicionado, sistema domotica, cocinas completas con electrodomésticos, armarios empotrados, muebles y espejos de baño, suelo radiante en baños, puertas de seguridad, ventanas de PVC con doble acristalamiento y persianas eléctricas, jardines terminados con piscina privada y sistema de riego y mucho más. Ubicación de casa/solar: Los chalets están situados en la el Golf Resort La Finca que se encuentra rodeado de un atractivo paisaje cerca del pueblo Algorfa. La localidad marina de Guardamar del Segura está situada a unos 15 km. En la urbanización o el pueblo Algorfa se puede hacer la compra diaria, si bien en Torrevieja o Almoradí se puede encontrar todo tipo de servicios. Otros pueblos próximos son el ya mencionado Guardamar del Segura, con sus extensas playas de arena, su puerto deportivo y su encantador parque en el corazón de la ciudad, Santa Pola con su bonito paseo marítimo, Elche con su gran palmeral y Alicante con su castillo situado en un peñasco, desde el que se disfruta de una fantástica panorámica de la ciudad y del mar.
- hace 3 días
- 308 m2
- 1.551,95 €/m2
- 0
- 0
ArKadia Publishing Ltd 4
Contactar
Compartir
Tu opinión
Mapa















