Villa en venta en Algorfa zona La Finca Golf
Datos básicos
- NB-26351
- 478.000 €
- 113 m2(4.230 €/m2)
- Alicante
- Algorfa
- La Finca Golf
Distribución e instalaciones
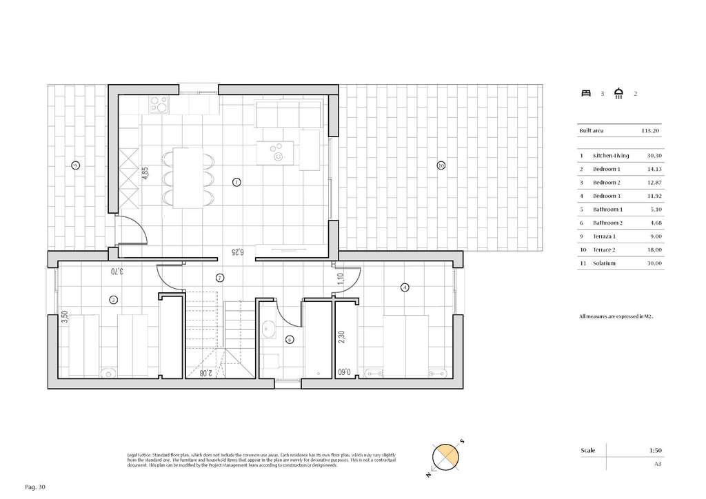
- 3
- 2
Varios
- Sí
Certificado energético
Detalles
478.000 €
Exclusivas villas de nueva construcción en la zona del campo de golf de Algorfa
Descubra estas impresionantes villas de nueva construcción en Algorfa, enclavadas en el sereno entorno de uno de los complejos de golf más prestigiosos de España, La Finca Golf & Spa Resort. Situado en el sur de la provincia de Alicante, este exclusivo complejo combina la vida lujosa con las ventajas de las instalaciones de estilo resort, creando el hogar ideal para los entusiastas del golf y para aquellos que buscan un estilo de vida mediterráneo relajado.
Elegantes villas de 3 dormitorios con piscina privada y diseño moderno
Cada villa está cuidadosamente diseñada en dos amplias plantas, con 3 dormitorios y 2 baños. La cocina de planta abierta fluye a la perfección en la sala de estar, donde grandes ventanales y puertas correderas de cristal proporcionan abundante luz natural y acceso directo a la terraza y piscina privada. En la parcela se incluye una cómoda plaza de aparcamiento privado, lo que aumenta la facilidad y exclusividad de estas viviendas.
Características Premium y Tecnología Smart Home
Estas villas vienen con una gama de características de gama alta para proporcionar el máximo confort y seguridad. Disfrute de la comodidad de un aparcamiento interior privado, persianas eléctricas, aire acondicionado por conductos y un sofisticado sistema de domótica. Además, un sistema de alarma totalmente equipado garantiza su tranquilidad. La orientación sur/suroeste permite una iluminación natural óptima durante todo el año, reduciendo el consumo de energía al proporcionar calidez y luminosidad desde el amanecer hasta el atardecer.
Espacios abiertos y luminosos con toques tradicionales
Diseñadas con un concepto abierto, estas viviendas utilizan grandes ventanales y puertas correderas para favorecer la ventilación cruzada, manteniendo los interiores frescos y llenos de luz natural. El diseño arquitectónico combina la estética moderna con elementos tradicionales, como detalles de piedra en la fachada y madera, creando un ambiente cálido y acogedor. Con una calificación EPC A, estas villas ofrecen eficiencia energética y sostenibilidad, lo que las convierte en una opción ecológica para los propietarios de viviendas.
Ubicación privilegiada con acceso a playas y atracciones clave
Situadas en la consolidada localidad de Algorfa, estas villas se encuentran a un corto trayecto en coche de las playas de Guardamar y Torrevieja, donde podrá disfrutar de más de 300 días de sol al año. En las inmediaciones encontrará centros comerciales, restaurantes de alta cocina y animados locales de ocio. La excelente infraestructura y la proximidad a las principales carreteras, incluida la autopista AP-7, garantizan conexiones fáciles con destinos populares como Orihuela, Elche, Murcia y Alicante. El aeropuerto de Alicante está a sólo 40 km, mientras que el aeropuerto de Murcia está a 55 km, por lo que viajar es muy cómodo.
La casa de sus sueños en el Mediterráneo le espera - Póngase en contacto con nosotros hoy mismo
No pierda esta oportunidad de poseer un chalet de lujo en la zona de golf más prestigiosa de Algorfa. Experimente la mezcla perfecta de confort moderno, encanto tradicional y estilo de vida mediterráneo. Póngase en contacto con nosotros ahora para concertar una visita y descubrir la casa de sus sueños.
- 30/10/2025
- 113 m2
- 4.230,09 €/m2
- 3
- 2
Buy in Spain
Contactar
Compartir
Tu opinión






















