Villa en venta en Algorfa zona La Finca Golf
Datos básicos
- ES-24683
- 525.000 €
- 108 m2(4.861 €/m2)
- Alicante
- Algorfa
- La Finca Golf
Distribución e instalaciones
- 3
- 2
Varios
- Sí
Certificado energético
Detalles
525.000 €
Villa semiadosada moderna con piscina privada en La Finca Golf, Algorfa.
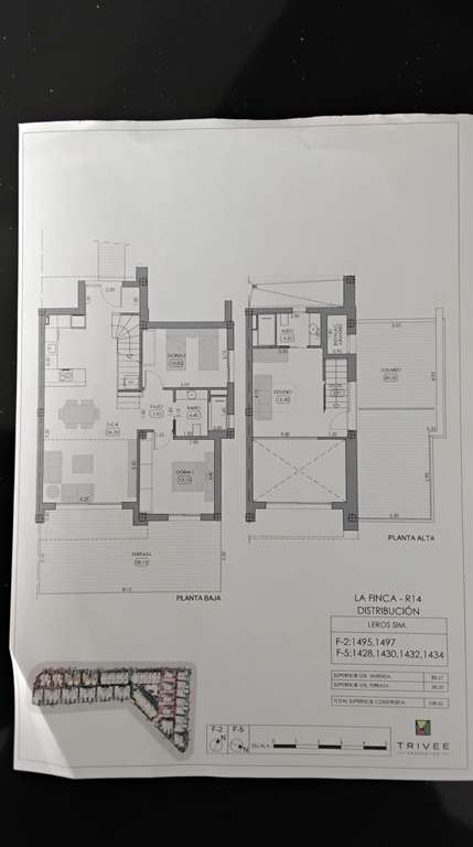
Situada en una exclusiva zona residencial dentro del campo de golf La Finca, esta villa semiadosada fue construida en 2024 sobre una parcela de 312 m², cuenta con 108 m² distribuidos en dos plantas.
La vivienda ofrece 3 dormitorios (2 en planta baja y 1 en planta alta con terraza), 2 baños con suelo radiante, un amplio salón con techo de doble altura y cocina moderna totalmente equipada. En el exterior, dispone de jardín de fácil mantenimiento con riego automático, piscina privada de 24 m² (4×12 m) y aparcamiento dentro de la parcela.
Equipada con aerotermia, paneles solares para agua caliente, persianas y toldos eléctricos, la villa se presenta en perfectas condiciones, orientada al suroeste y con abundante luz natural en todas las estancias.
Características destacadas:
3 dormitorios (2 en planta baja)
2 baños con suelo radiante
108 m² construidos / parcela de 312 m²
Piscina privada de 24 m² (4×12 m)
Salón con techo de doble altura
Cocina moderna amueblada y equipada
Aerotermia y paneles solares
Persianas y toldos eléctricos
Jardín con riego automático y fácil mantenimiento
Aparcamiento en parcela
Orientación suroeste
Año de construcción: 2024
La Finca Golf: Uno de los destinos de golf más exclusivos de la Costa Blanca
Este campo de golf de campeonato de 18 hoyos y par 72 ofrece amplias calles, impecables greens, bunkers estratégicamente ubicados, elementos de agua, paisajes naturales impresionantes y vistas espectaculares. La experiencia de golf aquí es desafiante pero a la vez placentera para jugadores de todos los niveles.
En La Finca descubrirás instalaciones de primer nivel, que incluyen un moderno centro deportivo y de fitness, pistas de pádel y tenis, y dos excepcionales opciones gastronómicas: un acogedor restaurante en la casa club y una exclusiva experiencia Wine & Dine.
Características:
Campo de golf de campeonato de 18 hoyos y par 72.
Restaurante y bar en la casa club.
Restaurante Frijolino, alta cocina fusión italo-mexicana.
Centro de fitness, pistas de tenis y pádel.
Hotel La Finca de 5 estrellas.
Spa y piscina.
Bodega La Finca para catas de vinos.
Estación de carga para coches eléctricos.
Distancias:
Aeropuerto de Alicante: 55 km, 40 min.
Centro comercial La Zenia Boulevard: 21 km, 20 min.
Playa de Guardamar del Segura: 19 km, 20 min.
Parque acuático Aquópolis Torrevieja: 19 km, 20 min.
Hospital Universitario de Torrevieja: 18 km, 18 min.
Situada en una exclusiva zona residencial dentro del campo de golf La Finca, esta villa semiadosada fue construida en 2024 sobre una parcela de 312 m², cuenta con 108 m² distribuidos en dos plantas.
La vivienda ofrece 3 dormitorios (2 en planta baja y 1 en planta alta con terraza), 2 baños con suelo radiante, un amplio salón con techo de doble altura y cocina moderna totalmente equipada. En el exterior, dispone de jardín de fácil mantenimiento con riego automático, piscina privada de 24 m² (4×12 m) y aparcamiento dentro de la parcela.
Equipada con aerotermia, paneles solares para agua caliente, persianas y toldos eléctricos, la villa se presenta en perfectas condiciones, orientada al suroeste y con abundante luz natural en todas las estancias.
Características destacadas:
3 dormitorios (2 en planta baja)
2 baños con suelo radiante
108 m² construidos / parcela de 312 m²
Piscina privada de 24 m² (4×12 m)
Salón con techo de doble altura
Cocina moderna amueblada y equipada
Aerotermia y paneles solares
Persianas y toldos eléctricos
Jardín con riego automático y fácil mantenimiento
Aparcamiento en parcela
Orientación suroeste
Año de construcción: 2024
La Finca Golf: Uno de los destinos de golf más exclusivos de la Costa Blanca
Este campo de golf de campeonato de 18 hoyos y par 72 ofrece amplias calles, impecables greens, bunkers estratégicamente ubicados, elementos de agua, paisajes naturales impresionantes y vistas espectaculares. La experiencia de golf aquí es desafiante pero a la vez placentera para jugadores de todos los niveles.
En La Finca descubrirás instalaciones de primer nivel, que incluyen un moderno centro deportivo y de fitness, pistas de pádel y tenis, y dos excepcionales opciones gastronómicas: un acogedor restaurante en la casa club y una exclusiva experiencia Wine & Dine.
Características:
Campo de golf de campeonato de 18 hoyos y par 72.
Restaurante y bar en la casa club.
Restaurante Frijolino, alta cocina fusión italo-mexicana.
Centro de fitness, pistas de tenis y pádel.
Hotel La Finca de 5 estrellas.
Spa y piscina.
Bodega La Finca para catas de vinos.
Estación de carga para coches eléctricos.
Distancias:
Aeropuerto de Alicante: 55 km, 40 min.
Centro comercial La Zenia Boulevard: 21 km, 20 min.
Playa de Guardamar del Segura: 19 km, 20 min.
Parque acuático Aquópolis Torrevieja: 19 km, 20 min.
Hospital Universitario de Torrevieja: 18 km, 18 min.
- 31/10/2025
- 108 m2
- 4.861,11 €/m2
- 3
- 2
Global Spain
Contactar
Compartir
Tu opinión

















































