Villa en venta en Algorfa zona La Finca Golf
Datos básicos
- REDSP-72722
- 599.000 €
- 216 m2(2.773 €/m2)
- Alicante
- Algorfa
- La Finca Golf
Distribución e instalaciones
- 3
- 2
Varios
- Sí
Certificado energético
Detalles
599.000 €
COMPLEJO RESIDENCIAL DE NUEVA CONSTRUCCIÓN EN ALGORFA
Complejo residencial de nueva construcción de villas independientes, pareadas y apartamentos con increíble piscina comunitaria y zonas verdes en el campo de golf La Finca, Algorfa.
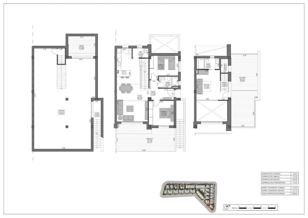
Villas pareadas de nueva construcción con con 3 dormitorios, 2 baños, una cocina abierta equipada con zona de comedor, un amplio salón con puertas de patio que conducen al jardín con piscina y aparcamiento fuera de la carretera, sótano semi terminado.
Complejo residencial situado en el resort La Finca Golf, en el municipio de Algorfa, en la zona de la Vega Baja de la Costa Blanca Sur.
A sólo 15 minutos en coche de las playas de arena de Guardamar del Segura, y a sólo 35 minutos del aeropuerto de Alicante.
Las ciudades más grandes de Almoradi, Benijófar y Ciudad Quesada están a poca distancia en coche.
Torrevieja y Orihuela Costa, con sus grandes centros comerciales, están a 15 minutos.
- hace 28 días
- 216 m2
- 2.773,15 €/m2
- 3
- 2
Contactar
Compartir
Tu opinión

























