Villa en venta en Algorfa zona La Finca Golf
Datos básicos
- NB-12101
- 793.000 €
- 185 m2(4.286 €/m2)
- Alicante
- Algorfa
- La Finca Golf
Distribución e instalaciones
- 4
- 3
Varios
- Sí
Certificado energético
Detalles
793.000 €
Villas contemporáneas de nueva construcción con piscina privada en La Finca Golf Resort, Algorfa
Vida exclusiva en una prestigiosa comunidad de golf
Disfrute del lujo, la tranquilidad y la vida mediterránea moderna en estas villas a estrenar situadas en el famoso La Finca Golf Resort en Algorfa, Costa Blanca Sur. Esta codiciada zona residencial está rodeada de exuberante vegetación, ondulantes calles de golf y paisajes tranquilos, lo que la convierte en el escenario perfecto para un estilo de vida relajado y sofisticado. La encantadora localidad de Algorfa ofrece un ambiente tradicional español y excelentes servicios, a la vez que se encuentra a poca distancia en coche de hermosas playas, zonas comerciales y animadas localidades costeras.
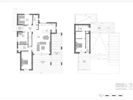
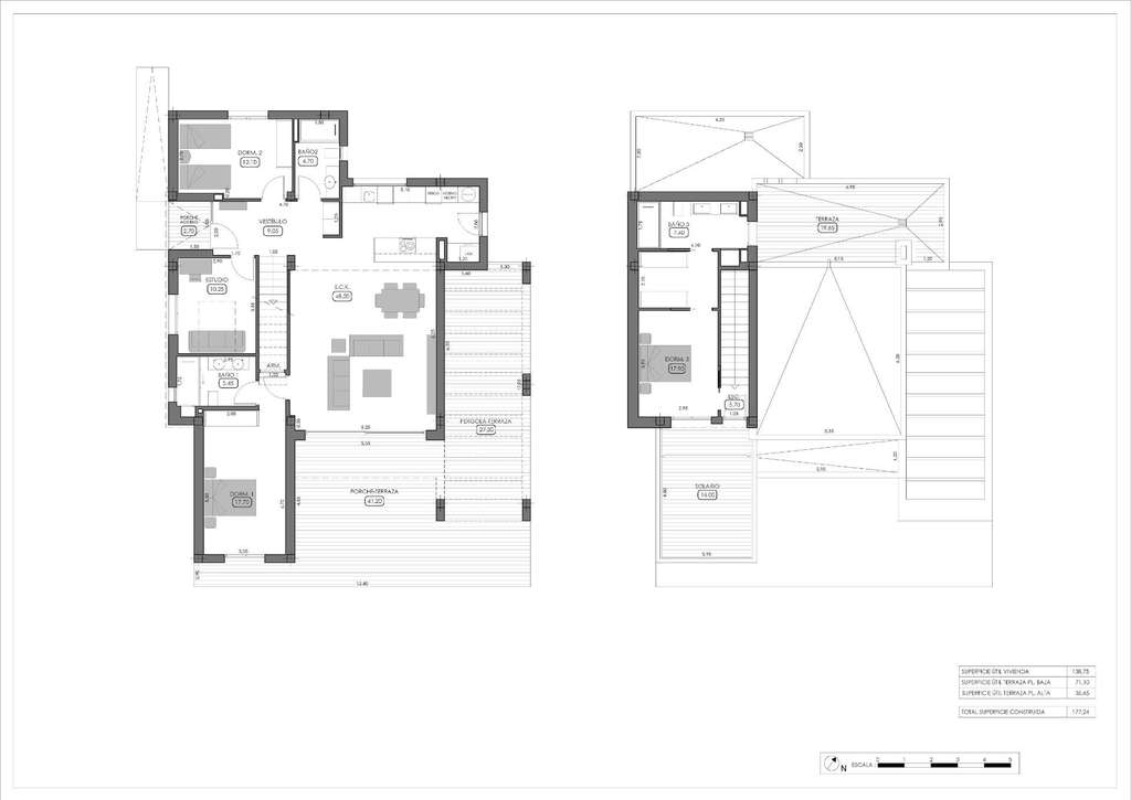
Elegantes villas de dos plantas con 4 dormitorios
Estas villas contemporáneas están diseñadas para ofrecer comodidad, espacio y funcionalidad. Las viviendas se distribuyen en dos plantas:
Planta baja
Tres amplios dormitorios con armarios empotrados
Dos baños completamente equipados, uno de ellos en suite
Luminosa sala de estar y comedor de planta abierta con grandes puertas correderas de cristal
Cocina moderna con barra de desayuno
Acceso directo a una terraza cubierta, jardín y zona de piscina
Planta superior
Dormitorio principal con baño en suite y vestidor
Dos terrazas privadas con un total de 36 metros cuadrados, ideales para disfrutar del sol y las vistas
Las villas incluyen aire acondicionado por conductos totalmente instalado, persianas motorizadas, calefacción por suelo radiante en los baños y aparcamiento privado dentro de la parcela.
Vida al aire libre con piscina privada
Disfrute del cálido clima mediterráneo desde la comodidad de su propio jardín. La distribución exterior cuenta con una moderna pérgola, amplias terrazas y una piscina privada, creando un entorno ideal para relajarse, entretenerse y disfrutar de comidas al aire libre y tiempo en familia.
Ubicación privilegiada cerca de campos de golf y playas
Situadas en uno de los complejos de golf más prestigiosos de la zona, estas villas ofrecen un estilo de vida excepcional cerca de instalaciones deportivas, naturales y de ocio. Se puede acceder fácilmente a hermosas playas de arena, los mejores centros comerciales, restaurantes de calidad, deportes acuáticos y atracciones culturales.
Distancias a puntos de interés clave
Club de golf La Finca: a poca distancia
Playas de Guardamar del Segura: 20 km
Centro comercial Zenia Boulevard: 15 km
Torrevieja: 20 km
Aeropuerto de Alicante: 40 km
Aeropuerto de Murcia: 55 km
La casa de sus sueños en el Mediterráneo le espera
Tanto si busca una residencia permanente, una casa de vacaciones o una inversión segura, estas villas ofrecen la combinación ideal de lujo, comodidad y ubicación privilegiada. Póngase en contacto con nosotros hoy mismo para solicitar más información o concertar una visita y descubrir la vida en La Finca Golf Resort en Algorfa.
- hace 7 días
- 185 m2
- 4.286,49 €/m2
- 4
- 3
Procare Estates
Contactar
Compartir
Tu opinión





