Villa en venta en Algorfa zona La Finca Golf
Datos básicos
- REDSP-67758
- 519.000 €
- 105 m2(4.943 €/m2)
- Alicante
- Algorfa
- La Finca Golf
Distribución e instalaciones
- 3
- 2
Varios
- Sí
Certificado energético
Detalles
519.000 €
Villas pareadas de obra nueva con piscina privada en La Finca Golf Resort, Algorfa
Viviendas exclusivas en una prestigiosa comunidad de golf
Situadas en el famoso La Finca Golf Resort en Algorfa, Costa Blanca Sur, estas villas pareadas a estrenar ofrecen la combinación perfecta de diseño moderno, comodidad y estilo de vida mediterráneo. Rodeadas de naturaleza y tranquilidad, este entorno residencial ofrece un ambiente apacible sin renunciar a la proximidad a todos los servicios esenciales y opciones de ocio.
Diseño elegante en una sola planta
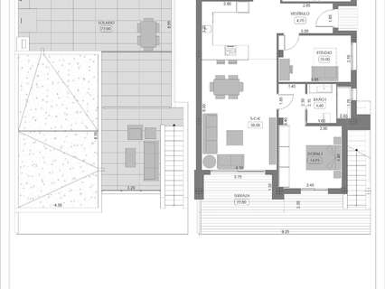
Cada villa, de 105 m2 construidos en parcelas desde 450m2, se distribuye en una sola planta y cuenta con 3 amplios dormitorios con armarios empotrados. Los 2 cuartos de baño, uno de ellos ensuite, equipados con espejos, duchas a ras de suelo con mamparas de cristal. La cocina abierta al salón con barra de desayuno se integra a la perfección con la sala de estar y el comedor, creando un espacio luminoso y funcional. Una zona de lavandería independiente añade comodidad a la vida diaria.
Una escalera exterior da acceso al amplio solárium privado en cubierta.
Aire acondicionado por conductos totalmente instalado.
Vida al aire libre con piscina privada y jardín
Las grandes puertas correderas de cristal conectan el salón con la terraza y el jardín, donde encontrará una piscina privada, el escenario ideal para disfrutar de las cálidas tardes mediterráneas.
Ubicación privilegiada en la Costa Blanca
La Finca Golf Resort es uno de los campos de golf más prestigiosos de la región y ofrece a los residentes un estilo de vida rodeado de naturaleza, deporte y relajación. La zona de Algorfa es conocida por su tranquilidad y encanto, a la vez que se encuentra a poca distancia en coche de playas, centros comerciales y atracciones culturales.
Distancias clave desde las villas:
Club de golf La Finca: a poca distancia a pie
Playas de Guardamar del Segura: 20 km
Centro comercial Zenia Boulevard: 15 km
Aeropuerto de Alicante: 40 km
Aeropuerto de Murcia: 55 km
Torrevieja: 20 km
Lo mejor del estilo de vida mediterráneo
Estas villas combinan la tranquilidad de un entorno natural con la comodidad de la vida moderna, lo que las hace ideales como residencia permanente, refugio vacacional o inversión. Con acabados de alta calidad, espacios exteriores privados y una ubicación privilegiada cerca del golf y las playas, ofrecen todo lo necesario para una vida privilegiada en la Costa Blanca.
Póngase en contacto con nosotros hoy mismo para obtener más información o concertar una visita y descubrir su nueva villa en La Finca Golf Resort en Algorfa.
- hace 11 días
- 105 m2
- 4.942,86 €/m2
- 3
- 2
Contactar
Compartir
Tu opinión



































