Ático en venta en Benejúzar zona pueblo
Datos básicos
- SP-57871
- 225.570 €
- 111 m2(2.032 €/m2)
- Alicante
- Benejúzar
- pueblo
Distribución e instalaciones
- 3
- 3
Certificado energético
- B
Detalles
225.570 €
Apartamentos boutique de nueva construcción y áticos dúplex en Benejúzar
Proyecto exclusivo con solo cuatro viviendas modernas
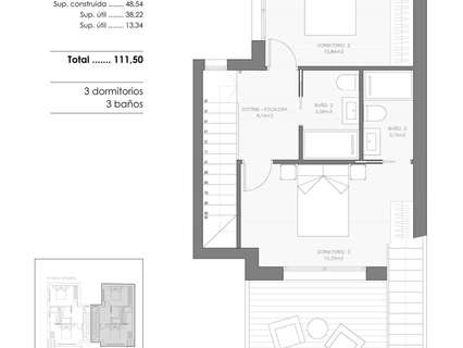
Esta promoción boutique de nueva construcción en Benejúzar consta de solo cuatro propiedades cuidadosamente diseñadas, que ofrecen privacidad, calidad y un estilo mediterráneo contemporáneo. El proyecto incluye dos apartamentos en planta baja con 2 dormitorios, 1 baño, terraza y plaza de aparcamiento doble, y dos áticos dúplex con 3 dormitorios, 3 baños, terraza y solárium privado en la azotea.
La arquitectura combina líneas limpias, piedra natural y detalles en madera, creando un diseño cálido y elegante que fusiona la estética moderna con el encanto mediterráneo. Se ha tenido en cuenta cada detalle para ofrecer una vivienda luminosa, funcional y energéticamente eficiente, diseñada para una vida cotidiana cómoda.
Acabados de alta calidad y características de eficiencia energética
La promoción destaca por sus excelentes estándares de construcción y materiales cuidadosamente seleccionados. Cada propiedad está equipada con características que mejoran el confort, la durabilidad y la eficiencia.
Las especificaciones clave incluyen:
Preinstalación para aire acondicionado por conductos
Sistema aerotérmico individual para calefacción y agua caliente
Cocina equipada contemporánea con encimera de cuarzo, campana extractora, vitrocerámica, horno eléctrico y microondas empotrado
Baños con accesorios modernos, platos de ducha planos, mamparas de cristal y grifos termostáticos
Carpintería exterior de aluminio con rotura de puente térmico y doble acristalamiento
Persianas motorizadas en el salón y el dormitorio principal
Puerta de entrada de seguridad y sistema de videoportero
Estas cualidades garantizan una vivienda moderna, práctica y energéticamente eficiente.
Ubicación tranquila con todos los servicios al alcance
Benejúzar es un encantador pueblo de la Vega Baja alicantina, conocido por su tranquilo ambiente residencial, su entorno verde y su acogedora comunidad local. La urbanización está situada en una zona tranquila, cerca de parques, colegios, instalaciones deportivas, una piscina climatizada municipal, un auditorio, un centro de salud y zonas comerciales.
Los residentes disfrutan de un estilo de vida relajado, sin renunciar a la proximidad de los servicios esenciales y a las excelentes conexiones por carretera.
Distancias a puntos de interés clave
Orihuela 8 km
Playa de Guardamar del Segura 20 km
Hospital Vega Baja 4 km
La Finca Golf 12 km
Aeropuerto de Alicante 45 km
Ideal para vivir o invertir en la Costa Blanca
Esta pequeña promoción ofrece una oportunidad única de adquirir una vivienda moderna y de alta calidad en una zona tranquila pero bien comunicada de la Costa Blanca. Tanto si busca una residencia permanente, una casa de vacaciones o una inversión para alquilar, estas propiedades ofrecen una excelente relación calidad-precio y un estilo de vida muy atractivo.
Póngase en contacto con nosotros hoy mismo para recibir más información o concertar una visita a este exclusivo proyecto en Benejúzar.
425
- 19/02/2026
- 111 m2
- 2.032,16 €/m2
- 3
- 3
Global Spain
Contactar
Compartir
Tu opinión









