Ático en venta en Benidorm zona Poniente
Datos básicos
- SP-16773
- 1.650.000 €
- 297 m2(5.556 €/m2)
- Alicante
- Benidorm
- Poniente
Distribución e instalaciones
- 3
- 2
Varios
- Sí
Certificado energético
Detalles
1.650.000 €
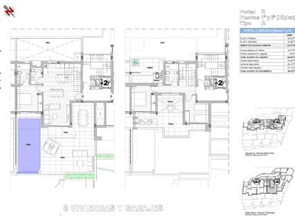
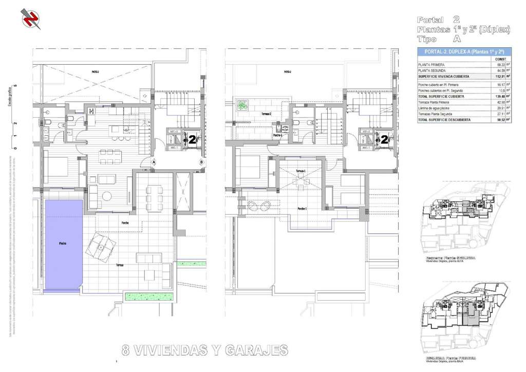
PRIMERA LÍNEA DE PLAYA EN BENIDORM Y CON PISCINA PRIVADA!!!
Situado en 1º linea de Playa Poniente en Benidorm. Con unas vistas impresionantes a toda la bahía.
Atico, dotado de 3 dormitorios, 2 baños, salón comedor, cocina, amplia terraza y piscina privada
Dotado de Aire acondicionado, Suelo radiante, Ascensor, Garaje, Trastero, Electrodomésticos.
Dispone de todos los servicios alrededor: supermercados, restaurantes, farmacias, bancos.
Distancia al aeropuerto 40 km y al Golf 10 km. La ciudad de Alicante se encuentra a 30km.
- hace 5 días
- 297 m2
- 5.555,56 €/m2
- 3
- 2
Global Spain
Contactar
Compartir
Tu opinión










