Villa en venta en Benidorm zona Sea Hills
Datos básicos
- 78470
- 599.000 €
- 314 m2(1.908 €/m2)
- Alicante
- Benidorm
- Sea Hills
Distribución e instalaciones
- 3
- 3
Varios
- Sí
Certificado energético
Detalles
599.000 €
VILLAS DE OBRA NUEVA EN FINESTRAT
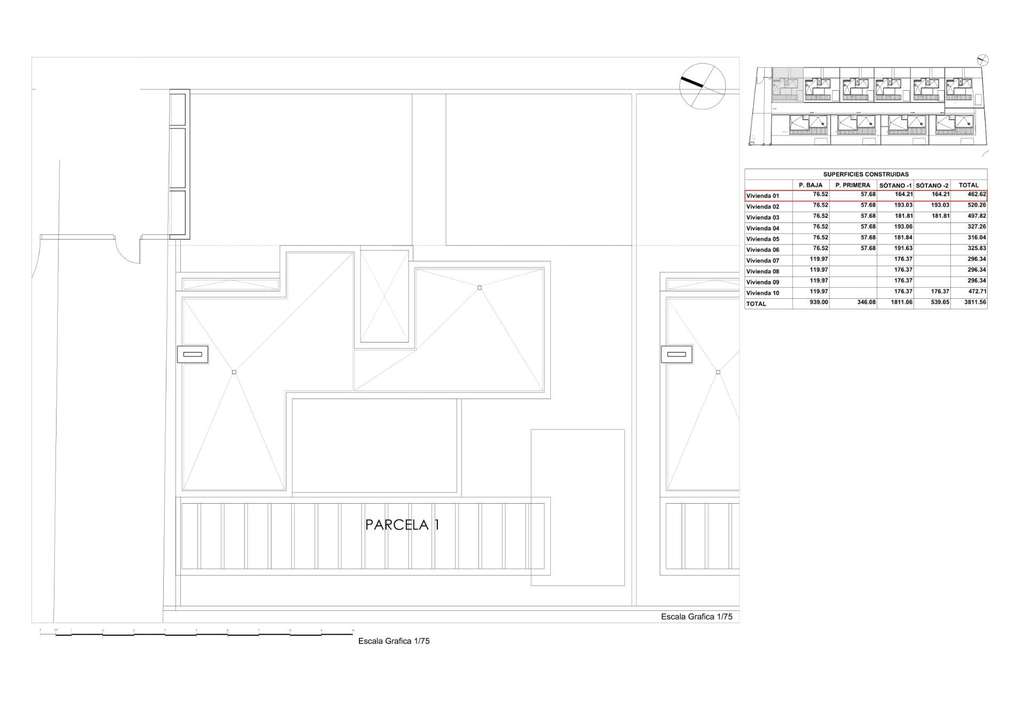
Proyecto de obra nueva de 10 villas de diseño moderno, en un entorno natural con vistas al mar y a la montaña, cerca del campo de golf Puig Campana, y a poca distancia de las localidades de Finestrat y Benidorm.
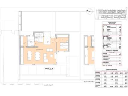
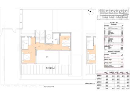
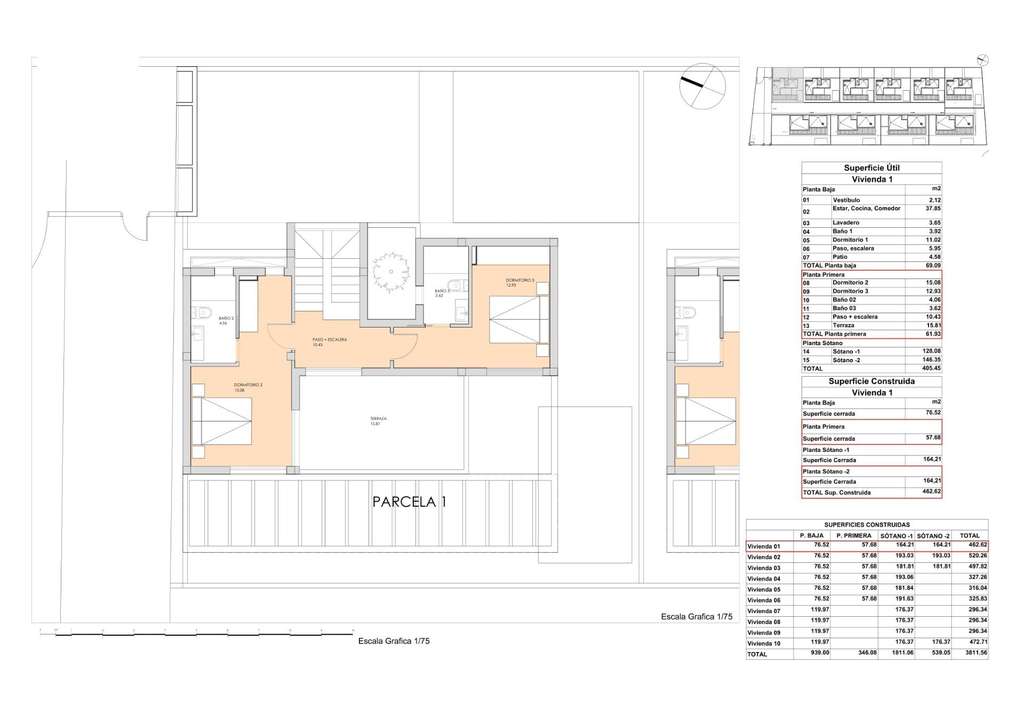
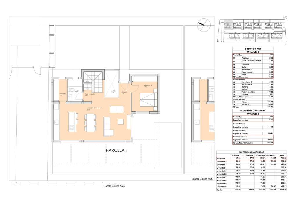
El proyecto se dividirá en dos fases de construcción, que a su vez incluyen dos tipos de viviendas, de 1 ó 2 plantas, 3 dormitorios dobles, 2 ó 3 baños completos, salón-comedor con cocina integrada, lavadero, amplia terraza y jardín, piscina privada, parking exterior, 1 ó 2 sótanos polivalentes y en algunos modelos garaje subterráneo cerrado.
Posibilidad de solarium con coste adicional.
Villas construidas con las mejores calidades y los últimos avances en construcción, entre otros
- Barandillas de cristal que no rompen la continuidad de las vistas.
- Solería de gres porcelánico de primera calidad.
- Puerta de entrada blindada.
- Carpintería exterior de aluminio con rotura de puente térmico y doble vidrio aislante de baja emisividad con cámara de aire y seguridad en zonas con riesgo de rotura.
- Carpintería interior lisa, de madera lacada en blanco con tiradores y herrajes de acero inoxidable.
- Armarios y vestidores correderos totalmente equipados.
- Producción de agua caliente sanitaria mediante sistema de bomba de calor con depósito acumulador de 100L, con apoyo de placas solares en cubierta.
- Instalación eléctrica de alta gama 9,2kw.
- Instalación de aire acondicionado por conductos con máquinas incluidas.
- Cocinas de diseño minimalista, totalmente equipadas con isla, muebles y electrodomésticos incluidos.
- Piscina privada con iluminación y zona de playa con pavimento o césped artificial.
- Sótano polivalente totalmente personalizable, según modelo con zona de garaje para un vehículo y preinstalación para vehículo eléctrico.
Villas se encuentra en un entorno privilegiado de la Costa Blanca, en una zona elevada al pie de la sierra, rodeada de naturaleza y de otras urbanizaciones similares, con excelentes vistas al mar y sus alrededores. Muy bien comunicada por carretera con la cercana población de Finestrat, a 10 minutos en coche de los centros comerciales, la autopista A7, las playas y las cercanas poblaciones de Benidorm y Villajoyosa, y a 30 minutos de la ciudad de Alicante y su aeropuerto internacional.
- hace 1 hora
- 314 m2
- 1.907,64 €/m2
- 3
- 3
Contactar
Compartir
Tu opinión



































