Apartamento en venta en Benijófar zona Benijófar
Datos básicos
- NB-91693
- 299.900 €
- 81 m2(3.702 €/m2)
- Alicante
- Benijófar
- Benijófar
Distribución e instalaciones
- 3
- 2
Varios
- Sí
Certificado energético
Detalles
299.900 €
Apartamentos de nueva construcción en Benijófar Vida moderna en una ubicación privilegiada
Exclusiva promoción nueva en la Costa Blanca Sur
Esta nueva promoción residencial consta de 18 modernos apartamentos situados a la entrada de Benijófar, a poca distancia del centro de la ciudad. Ubicado en una de las zonas de más rápido crecimiento de la Costa Blanca Sur, el proyecto combina arquitectura contemporánea, materiales de calidad y una ubicación estratégica, ideal tanto para vivir como para invertir.
Tipos de apartamentos que se adaptan a cada estilo de vida
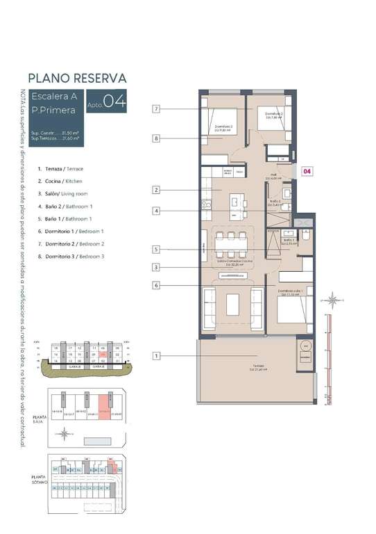
La promoción ofrece amplios apartamentos de tres dormitorios y dos baños, uno de ellos en suite. Los compradores pueden elegir entre viviendas en planta baja con amplias terrazas y jardines privados, apartamentos en plantas intermedias con generosas terrazas o áticos con terraza y solárium privado. El solárium incluye la preinstalación para una cocina de verano, perfecta para disfrutar del clima mediterráneo.
Diseño moderno y alto nivel de confort
Cada apartamento ha sido cuidadosamente diseñado para ofrecer espacios luminosos y abiertos con una distribución moderna y funcional. Las viviendas cuentan con un salón-comedor diáfano, una cocina totalmente equipada con armarios altos y bajos, y acabados de alta calidad en todas las estancias. Los dormitorios son amplios y cómodos, mientras que los baños están equipados con materiales modernos y detalles elegantes.
El complejo residencial incluye una piscina comunitaria y jardines paisajísticos, creando un ambiente relajante para los residentes. Todas las viviendas están equipadas con preinstalación de aire acondicionado y calefacción por conductos, carpintería exterior con rotura de puente térmico y doble acristalamiento, sistema aerotérmico para agua caliente y puerta de entrada de seguridad reforzada. Cada apartamento incluye también una plaza de aparcamiento privada y un trastero en el sótano, con acceso en ascensor a todas las plantas.
Benijófar, una ciudad con encanto y todos los servicios
Benijófar es una ciudad española bien establecida que ofrece un equilibrio perfecto entre el encanto tradicional y la vida moderna. El centro de la ciudad cuenta con tiendas locales, supermercados, farmacias, restaurantes y un ambiente acogedor durante todo el año. Los amantes de la naturaleza pueden disfrutar de las zonas verdes y las rutas de senderismo cercanas, mientras que los campos de golf y las instalaciones de ocio se encuentran a poca distancia en coche.
Excelentes conexiones y distancias clave
Las playas de Guardamar del Segura están a unos 9 km. Los campos de golf La Finca y La Marquesa están a unos 6 km de la urbanización. Los parques acuáticos de Rojales y Torrevieja se encuentran a unos 4 km y 12 km, respectivamente. El centro comercial Zenia Boulevard está a unos 17 km. El aeropuerto internacional de Alicante está a unos 35 km y ofrece vuelos regulares a toda Europa.
Una vivienda ideal o una oportunidad de inversión
Gracias a su diseño moderno, su excelente ubicación y la fuerte demanda de alquiler en la zona, estos apartamentos son ideales como residencia permanente, vivienda vacacional o inversión inteligente en la Costa Blanca.
Póngase en contacto con nosotros hoy mismo
Descubra su nuevo apartamento en Benijófar. Póngase en contacto con nosotros ahora para obtener más información o concertar una visita privada.
- hace 20 días
- 81 m2
- 3.702,47 €/m2
- 3
- 2
Procare Estates
Contactar
Compartir
Tu opinión










