Villa en venta en Benijófar zona Polideportivo
Datos básicos
- SP-56303
- 523.000 €
- 134 m2(3.903 €/m2)
- Alicante
- Benijófar
- Polideportivo
Distribución e instalaciones
- 3
- 2
Varios
- Sí
Certificado energético
- B
Detalles
523.000 €
VILLAS MODERNAS DE OBRA NUEVA EN BENIJOFAR
Villas de obra nueva ubicadas en Benijófar, una zona privilegiada de la Costa Blanca, cerca de todos los servicios, a 20 minutos del Aeropuerto de Alicante, cerca de las hermosas playas de Guardamar y varios campos de golf.
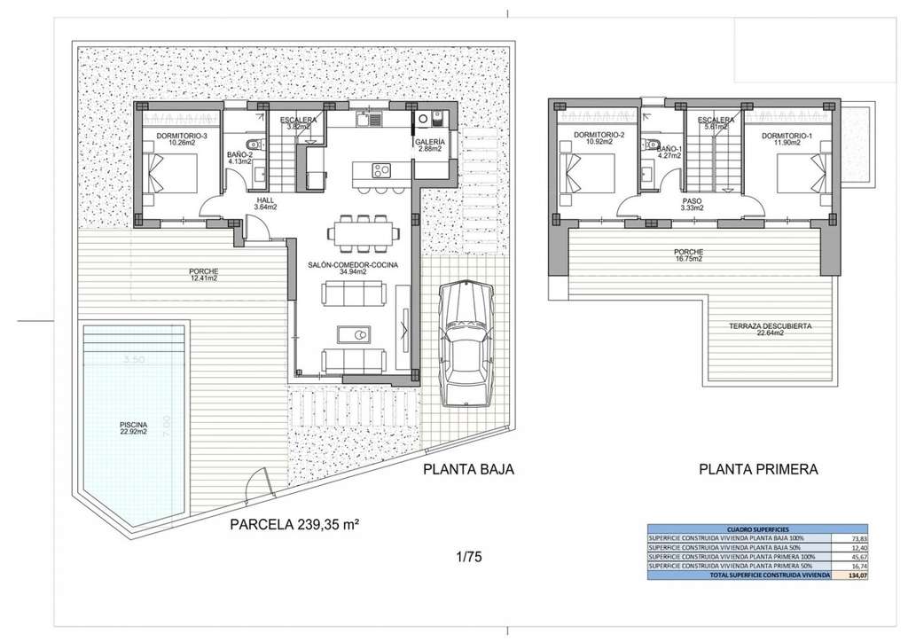
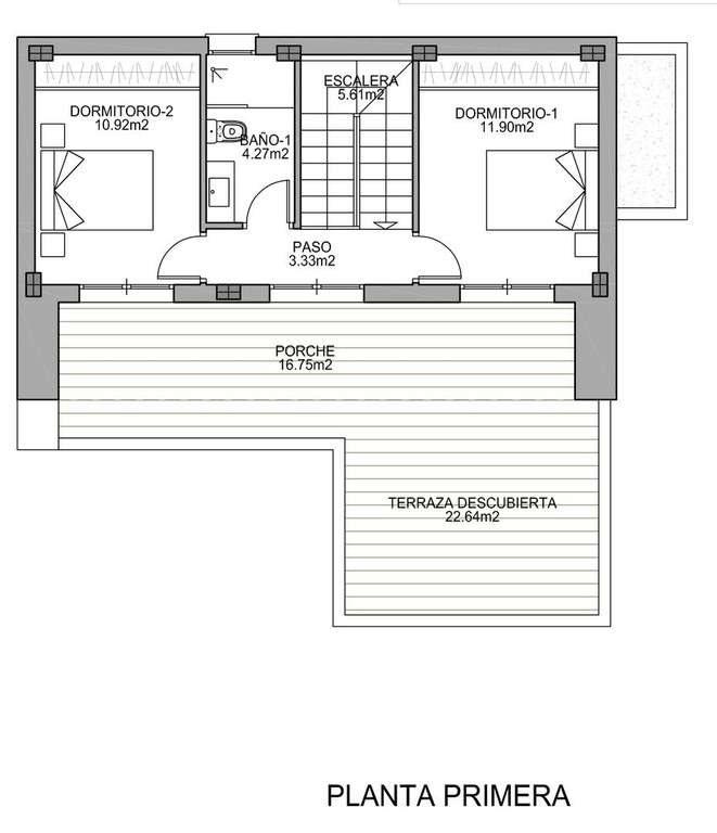
Es una villa de estilo moderno que consta de amplio salón-comedor con cocina americana, 3 dormitorios (uno de ellos en suite) y 2 baños.
Villa construida en parcela privada con terraza, zona de aparcamiento, piscina privada, jardín de estilo mediterráneo con estupendas vistas. La casa también cuenta con aire acondicionado frío / calor, video portero y puerta blindada.
Benijofar es un pueblo encantador con una iglesia encantadora y todos los servicios como supermercados, farmacias, bancos, restaurantes y parque natural ubicado muy cerca de las villas.
Hay varios campos de golf cerca, así como parques acuáticos en las cercanías de Rojales y Torrevieja.
Benijófar situado a pocos minutos de la N-332 y AP-7.
A tan solo 30 minutos del aeropuerto de Alicante, a 10 minutos de las playas de Guardamar y Torrevieja.
- ayer
- 134 m2
- 3.902,99 €/m2
- 3
- 2
Global Spain
Contactar
Compartir
Tu opinión




