Villa en venta en Benijófar zona Pueblo
Datos básicos
- NBZH-25631
- 515.000 €
- 141 m2(3.652 €/m2)
- Alicante
- Benijófar
- Pueblo
Distribución e instalaciones
- 3
- 3
Varios
- Sí
Certificado energético
Detalles
515.000 €
Vida mediterránea contemporánea en una ubicación privilegiada en un pueblo
Estas lujosas villas adosadas de obra nueva en Benijófar ofrecen una singular combinación de diseño moderno, amplios espacios habitables y una ubicación privilegiada en la Costa Blanca. Ubicada en uno de los pueblos del interior más codiciados de la zona, esta exclusiva promoción es ideal para compradores que buscan calidad, comodidad y una vida a largo plazo en lugar de viviendas de lujo.
Benijófar es conocido por su ambiente acogedor, sus excelentes servicios durante todo el año y su proximidad a la costa. Supermercados, restaurantes, farmacias, bancos y tiendas locales están a poca distancia, mientras que las doradas playas de Guardamar del Segura están a solo 10 km . El aeropuerto de Alicante está a unos 30 km , lo que facilita el viaje sin sacrificar la tranquilidad.
Diseño espacioso con distribución inteligente
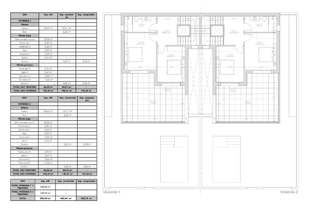
Cada villa ha sido cuidadosamente diseñada para maximizar la luz natural y la usabilidad en todas las plantas. La distribución incluye tres dormitorios y tres baños , lo que ofrece flexibilidad para la convivencia familiar, visitas o estancias prolongadas.
Un dormitorio se encuentra en la planta baja, ideal para personas con movilidad reducida o como alojamiento para invitados, mientras que otros dos dormitorios se encuentran en la primera planta. El salón-comedor de planta abierta se integra a la perfección con la cocina totalmente equipada, creando un espacio acogedor y funcional en la casa. Los amplios ventanales realzan la sensación de espacio e incorporan el exterior.
Una característica destacada es el sótano de 66 m² , completo con un baño, área de lavandería y espacio de galería, ideal como segundo salón, oficina en casa, gimnasio o sala de cine.
Funciones premium que mejoran la vida cotidiana
Estas villas están construidas con altas especificaciones e incluyen características diseñadas para la comodidad, la eficiencia y el estilo de vida:
Piscina privada Solárium con barbacoa y fregadero Chimenea decorativa en el salón Ascensor que conecta el sótano con el piso superior. Aparcamiento privado dentro de la parcela Tres paneles solares fotovoltaicos Iluminación LED en todas partes Aire acondicionado por conductos preinstalado Baños completamente equipados con muebles y mamparas de ducha. Parcelas desde 200 m²
Cada detalle ha sido considerado para apoyar la vida mediterránea moderna con bajo mantenimiento y eficiencia energética.
Estilo de vida, golf y ocio a tu alcance
Benijófar ofrece una calidad de vida excepcional, combinando el encanto de un pueblo con las comodidades modernas. Los amantes de la naturaleza pueden disfrutar de rutas de senderismo y ciclismo cercanas, mientras que el campo de golf La Marquesa está a solo 5 km . Los parques acuáticos de Rojales y Torrevieja, junto con tiendas, restaurantes y zonas de ocio, se encuentran a poca distancia en coche.
Un hogar para quienes valoran el espacio, la calidad y la ubicación
Estas villas de obra nueva en Benijófar son ideales para quienes buscan una residencia principal, una segunda residencia refinada o una inversión a largo plazo en una zona con una demanda cada vez mayor. Contáctenos para recibir información detallada o para concertar una visita privada a esta excepcional promoción en la Costa Blanca.
Estas lujosas villas adosadas de obra nueva en Benijófar ofrecen una singular combinación de diseño moderno, amplios espacios habitables y una ubicación privilegiada en la Costa Blanca. Ubicada en uno de los pueblos del interior más codiciados de la zona, esta exclusiva promoción es ideal para compradores que buscan calidad, comodidad y una vida a largo plazo en lugar de viviendas de lujo.
Benijófar es conocido por su ambiente acogedor, sus excelentes servicios durante todo el año y su proximidad a la costa. Supermercados, restaurantes, farmacias, bancos y tiendas locales están a poca distancia, mientras que las doradas playas de Guardamar del Segura están a solo 10 km . El aeropuerto de Alicante está a unos 30 km , lo que facilita el viaje sin sacrificar la tranquilidad.
Diseño espacioso con distribución inteligente
Cada villa ha sido cuidadosamente diseñada para maximizar la luz natural y la usabilidad en todas las plantas. La distribución incluye tres dormitorios y tres baños , lo que ofrece flexibilidad para la convivencia familiar, visitas o estancias prolongadas.
Un dormitorio se encuentra en la planta baja, ideal para personas con movilidad reducida o como alojamiento para invitados, mientras que otros dos dormitorios se encuentran en la primera planta. El salón-comedor de planta abierta se integra a la perfección con la cocina totalmente equipada, creando un espacio acogedor y funcional en la casa. Los amplios ventanales realzan la sensación de espacio e incorporan el exterior.
Una característica destacada es el sótano de 66 m² , completo con un baño, área de lavandería y espacio de galería, ideal como segundo salón, oficina en casa, gimnasio o sala de cine.
Funciones premium que mejoran la vida cotidiana
Estas villas están construidas con altas especificaciones e incluyen características diseñadas para la comodidad, la eficiencia y el estilo de vida:
Piscina privada Solárium con barbacoa y fregadero Chimenea decorativa en el salón Ascensor que conecta el sótano con el piso superior. Aparcamiento privado dentro de la parcela Tres paneles solares fotovoltaicos Iluminación LED en todas partes Aire acondicionado por conductos preinstalado Baños completamente equipados con muebles y mamparas de ducha. Parcelas desde 200 m²
Cada detalle ha sido considerado para apoyar la vida mediterránea moderna con bajo mantenimiento y eficiencia energética.
Estilo de vida, golf y ocio a tu alcance
Benijófar ofrece una calidad de vida excepcional, combinando el encanto de un pueblo con las comodidades modernas. Los amantes de la naturaleza pueden disfrutar de rutas de senderismo y ciclismo cercanas, mientras que el campo de golf La Marquesa está a solo 5 km . Los parques acuáticos de Rojales y Torrevieja, junto con tiendas, restaurantes y zonas de ocio, se encuentran a poca distancia en coche.
Un hogar para quienes valoran el espacio, la calidad y la ubicación
Estas villas de obra nueva en Benijófar son ideales para quienes buscan una residencia principal, una segunda residencia refinada o una inversión a largo plazo en una zona con una demanda cada vez mayor. Contáctenos para recibir información detallada o para concertar una visita privada a esta excepcional promoción en la Costa Blanca.
- hace 4 días
- 141 m2
- 3.652,48 €/m2
- 3
- 3
Zebra Homes
Contactar
Compartir
Tu opinión





































