Villa en venta en Benissa zona Racó Del Galeno
Datos básicos
- IA-53223
- 2.995.000 €
- 552 m2(5.426 €/m2)
- Alicante
- Benissa
- Racó Del Galeno
Distribución e instalaciones
- 4
- 5
Varios
- Sí
Certificado energético
Detalles
2.995.000 €
Magnifica villa situada en una colina con hermosas vistas al mar y las montañas, situada en una zona tranquila y residencial rodeada de árboles. Situada en Benissa, en la zona de Racó de Galeno, a una distancia a las playas de 2,2 km y a 9 km de núcleos de población.
Ofreciendo una construcción comprometida con el medio ambiente y utilizando materiales de primera calidad, la villa se distribuye en tres niveles.
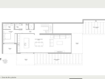
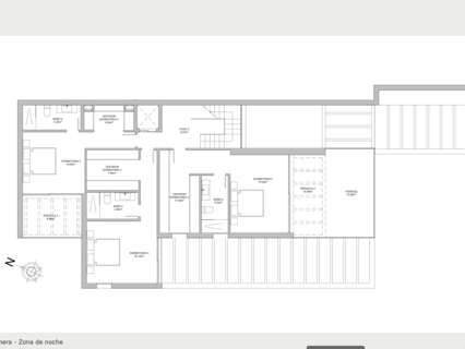
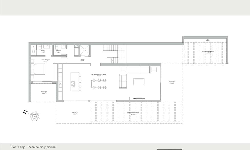
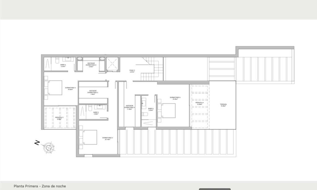
En planta baja se distribuye la zona de día completamente abierta, salón-comedor-cocina, pudiéndose proyectar hacia el exterior. Además, un dormitorio en suite y un aseo para la zona de día. Todo ello conectado con una fantástica terraza exterior con piscina, una espaciosa zona de barbacoa exterior, rodeado por vegetación autóctona de la zona. En planta alta se distribuyen tres dormitorios, todos ellos en suite y con vestidor propio. Dos de ellos cuentan con acceso a terrazas independientes. Por último, la villa cuenta con una planta sótano para dos vehículos, un gimnasio o cualquier otra instalación según el deseo del nuevo propietario y un aseo.
Por último, la parcela contará con cerramientos de muros de hormigón y mampostería de pieza caliza y una puerta motorizada para los vehículos.
Ofreciendo una construcción comprometida con el medio ambiente y utilizando materiales de primera calidad, la villa se distribuye en tres niveles.
En planta baja se distribuye la zona de día completamente abierta, salón-comedor-cocina, pudiéndose proyectar hacia el exterior. Además, un dormitorio en suite y un aseo para la zona de día. Todo ello conectado con una fantástica terraza exterior con piscina, una espaciosa zona de barbacoa exterior, rodeado por vegetación autóctona de la zona. En planta alta se distribuyen tres dormitorios, todos ellos en suite y con vestidor propio. Dos de ellos cuentan con acceso a terrazas independientes. Por último, la villa cuenta con una planta sótano para dos vehículos, un gimnasio o cualquier otra instalación según el deseo del nuevo propietario y un aseo.
Por último, la parcela contará con cerramientos de muros de hormigón y mampostería de pieza caliza y una puerta motorizada para los vehículos.
- 14/10/2025
- 552 m2
- 5.425,72 €/m2
- 4
- 5
Immo Toro
Contactar
Compartir
Tu opinión






