Villa en venta en Benissa zona San Jaime
Datos básicos
- CO-46964
- 895.000 €
- 240 m2(3.729 €/m2)
- Alicante
- Benissa
- San Jaime
Distribución e instalaciones
- 6
- 3
Certificado energético
Detalles
895.000 €
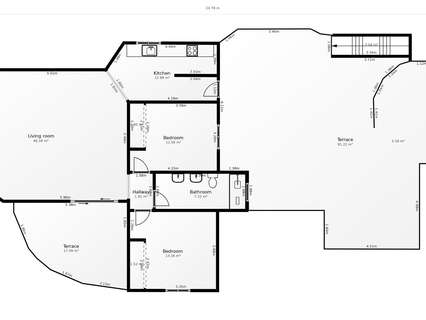
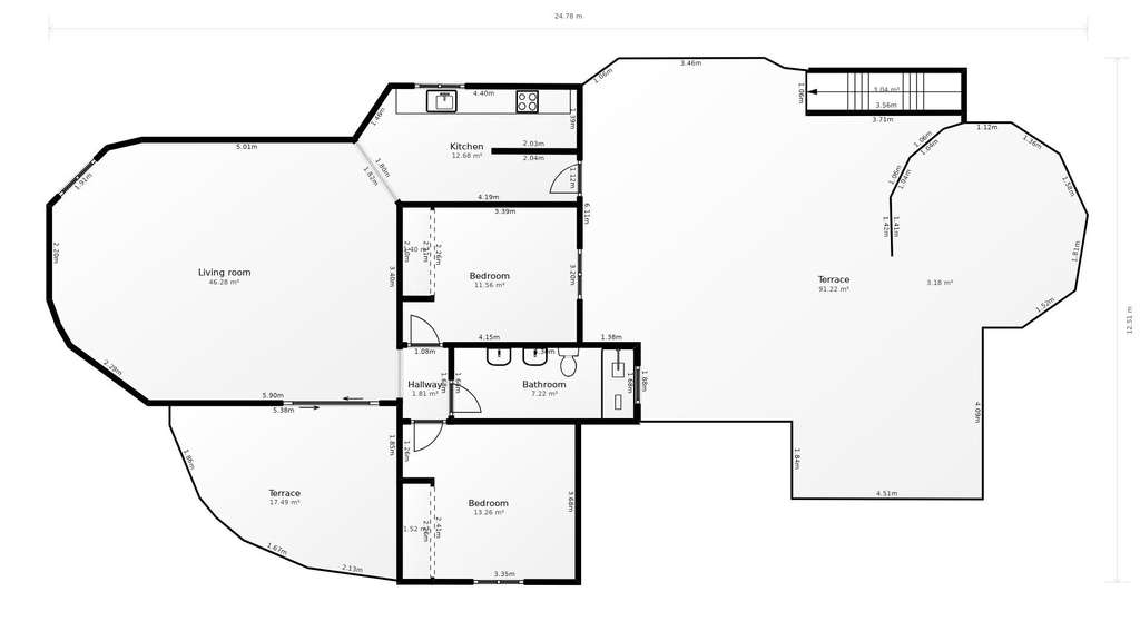
Esta moderna villa renovada se encuentra en medio de la hermosa zona de Benissa-Moraira.~La villa ofrece tres amplios apartamentos, cada uno con dos dormitorios y una terraza privada. Estos espacios de vida modernos están completamente equipados con cocinas, acogedores salones con chimenea y elegantes baños.~~Todos los apartamentos están equipados con aire acondicionado y estacionamiento seguro con un cómodo estacionamiento cubierto. Disfrute del estilo de vida al aire libre con dos piscinas y una zona de barbacoa integrada, perfecta para entretener a los invitados.~~Rodeada de un jardín bellamente paisajístico, lleno de palmeras, limoneros y diversas plantas, esta encantadora propiedad ofrece un refugio sereno para posibles compradores.
- 17/10/2025
- 240 m2
- 3.729,17 €/m2
- 6
- 3
Rayos de Sol
Contactar
Compartir
Tu opinión









































