Villa en venta en Benissa zona Cala Abogat
Datos básicos
- BV-42901
- 1.345.000 € (antes 1.980.000 €)
- 240 m2(5.604 €/m2)
- Alicante
- Benissa
- Cala Abogat
Distribución e instalaciones
- 4
- 4
Certificado energético
Detalles
1.345.000 € 1.980.000 €
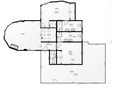
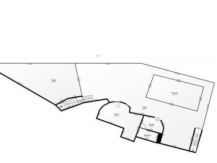
Villa moderna con vistas al mar en Cala Advocat - ubicación tranquila cerca de MorairaEsta elegante villa reformada de estilo moderno/ibicenco con fantásticas vistas al mar se encuentra en la codiciada zona residencial de Cala Advocat en la Costa Blanca, a sólo 9 minutos en coche del encantador pueblo costero de Moraira. Tras una reforma integra, la propiedad combina el encanto mediterráneo con el confort de la vida moderna - ideal para cualquiera que busque algo especial.La villa orientada al sur impresiona por su soleada ubicación y sus ininterrumpidas vistas al mar. En la planta baja le esperan dos dormitorios con elegantes armarios empotrados y con sus baños en suite, un aseo de cortesía y una acogedora sala de estar con chimenea de leña. Desde aquí podrá disfrutar de una vista ininterrumpida del agua, perfecta para relajarse por la noche con la familia o los amigos.Una elegante escalera interior conduce a la planta inferior que cuenta con una cocina equipada de planta abierta y luminosa con barra (que puede utilizarse tanto en el interior como en el exterior), acceso directo a la terraza y dos dormitorios más con elegantes armarios empotrados y con baños en-suite. Uno de ellos ofrece acceso directo a la amplia terraza soleada y el otro a una terraza privada en la parte trasera de la casa. Además encontramos otro aseo de cortesía, así como el lavadero.La zona exterior incluye una zona cubierta para sentarse con una una barbacoa de obra y una práctica ducha exterior al lado de la piscina. Las diferentes terrazas ofrecen mucho espacio para tumbonas, ideal para relajarse bajo el sol mediterráneo.A nivel de la piscina, encontramos un cuarto independiente para convertirlo en un pequeño gimnasio o bodega.Ofrecemos una exclusiva experiencia de vida con vistas al Mediterráneo. La villa dispone de todas las comodidades para ser su nuevo hogar permanente, incluyendo aire acondicionado caliente/frio, ventas de alta calidad con doble cristal, sistema de alarma, así como una instalación fotovoltaica. Hay un carport con puerta corredera para un coche y otro aparcamiento detrás de la casa barbacoa.Esta villa es adecuada tanto como vivienda permanente como casa de vacaciones. No espere más y póngase en contacto con nosotros hoy para una visita.El precio mostrado no incluye impuestos ni gastos de compra / La oferta está sujeta a errores, cambios de precio, disponibilidad, omisión y/o retirada del mercado sin previo aviso / Muebles y contenidos según acuerdo personalizado y no según las fotos de la presentación
- 17/10/2025
- 240 m2
- 5.604,17 €/m2
- 32.1%
- 4
- 4
Rayos de Sol
Contactar
Compartir
Tu opinión


















































