Villa en venta en Benissa zona Playa de La Fustera
Datos básicos
- M-89398
- 3.195.000 €
- 318 m2(10.047 €/m2)
- Alicante
- Benissa
- Playa de La Fustera
Distribución e instalaciones
- 4
- 5
Varios
- Sí
Certificado energético
- B
Detalles
3.195.000 €
VILLA DE OBRA NUEVA CON VISTAS AL MAR EN BENISSA
Villa de lujo de obra nueva construida en una gran parcela de 1250m2, que ofrece impresionantes vistas al mar y vistas abiertas haciaMoraira, muy bien situada en una urbanización tranquila a tan solo 200 m de la playa ''La fustera'' y a 2 km del centro de Calpe.
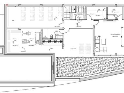
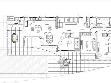
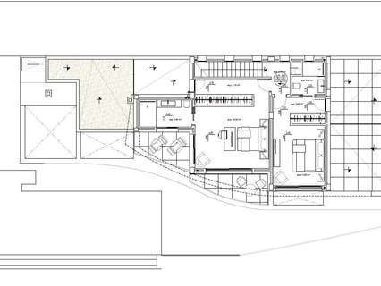
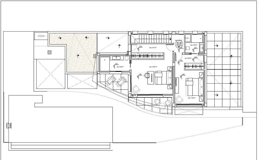
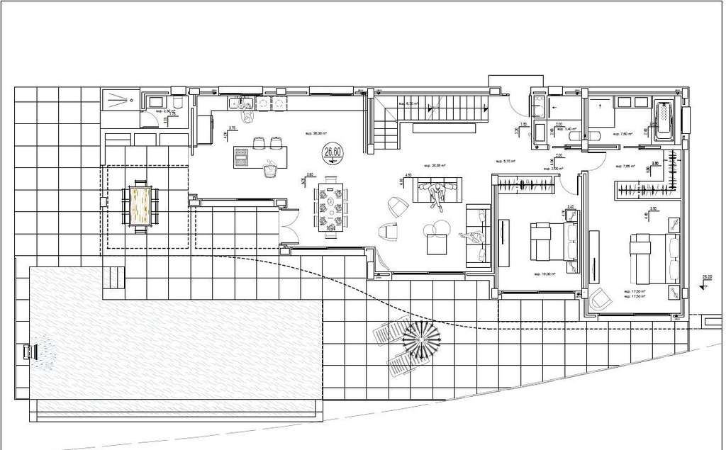
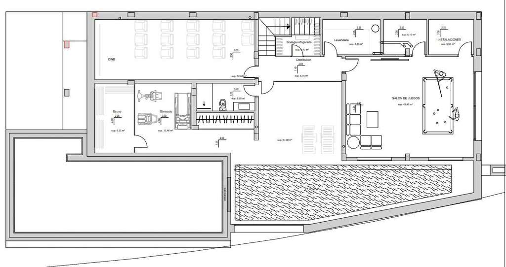
Villa de lujo distribuida en 3 plantas y dispone de 4 dormitorios, 5 baños, cocina americana equipada, salón comedor con grandes ventanales y accesos directos a la piscina. Hermosa terraza con la piscina y y zona de barbacoa, desde donde hay hermosas vistas al mar.
La villa está situada en una de las zonas residenciales más bellas de la Costa Blanca.
Las localidades de Calpe, Benissa y Moraira ofrecen un litoral extraordinariamente atractivo y de gran interés paisajístico y ecológico, con una costa abrupta con numerosas playas y calas escondidas.
Benissa está situada entre Valencia y la ciudad de Alicante.
El aeropuerto de Manises en Valencia está a una hora y el aeropuerto de L'Altet en Alicante a 50 minutos en coche. Ambos aeropuertos son importantes aeropuertos internacionales servidos por un gran número de compañías aéreas de bajo coste.
Villa de lujo de obra nueva construida en una gran parcela de 1250m2, que ofrece impresionantes vistas al mar y vistas abiertas haciaMoraira, muy bien situada en una urbanización tranquila a tan solo 200 m de la playa ''La fustera'' y a 2 km del centro de Calpe.
Villa de lujo distribuida en 3 plantas y dispone de 4 dormitorios, 5 baños, cocina americana equipada, salón comedor con grandes ventanales y accesos directos a la piscina. Hermosa terraza con la piscina y y zona de barbacoa, desde donde hay hermosas vistas al mar.
La villa está situada en una de las zonas residenciales más bellas de la Costa Blanca.
Las localidades de Calpe, Benissa y Moraira ofrecen un litoral extraordinariamente atractivo y de gran interés paisajístico y ecológico, con una costa abrupta con numerosas playas y calas escondidas.
Benissa está situada entre Valencia y la ciudad de Alicante.
El aeropuerto de Manises en Valencia está a una hora y el aeropuerto de L'Altet en Alicante a 50 minutos en coche. Ambos aeropuertos son importantes aeropuertos internacionales servidos por un gran número de compañías aéreas de bajo coste.
- 5/12/2025
- 318 m2
- 10.047,17 €/m2
- 4
- 5
Medimar Eiendom
Contactar
Compartir
Tu opinión



















