Villa en venta en Benissa zona Montemar
Datos básicos
- C15ZH-90787
- 2.750.000 €
- 548 m2(5.018 €/m2)
- Alicante
- Benissa
- Montemar
Distribución e instalaciones
- 4
- 4
Certificado energético
Detalles
2.750.000 €
Proyecto de villa de lujo en la zona de Montemar, en la costa de Benissa, con vistas al mar y al Peñón de Ifach.
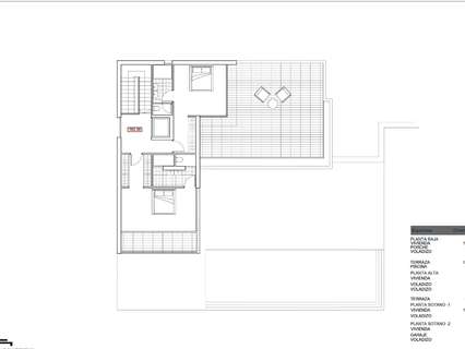
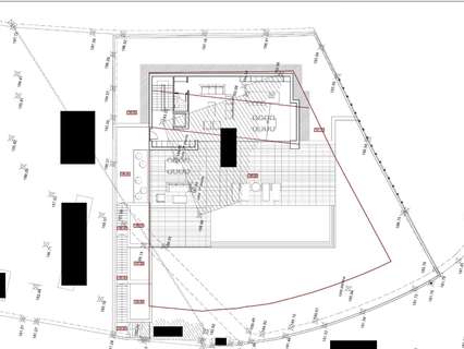
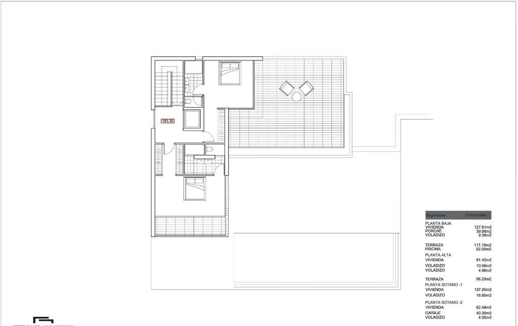
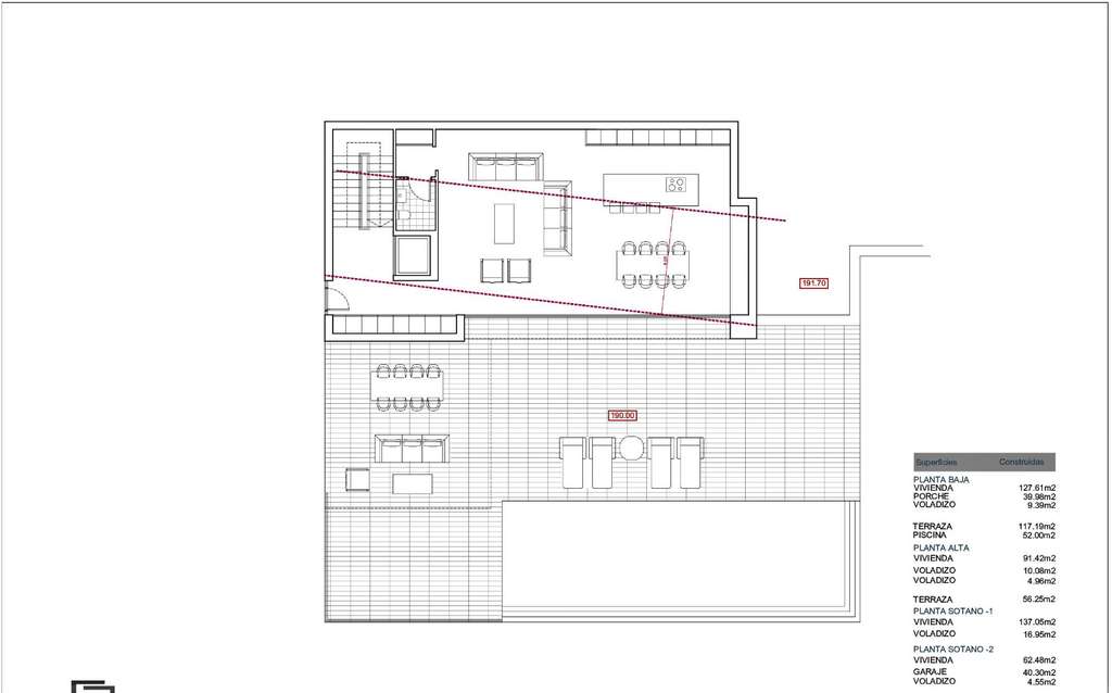
Esta villa, con acabados de hormigón visto, cuenta con 4 plantas comunicadas mediante ascensor y escalera interior. La planta baja cuenta con un amplio salón-comedor-cocina de concepto abierto y un aseo. La cocina está totalmente equipada y cuenta con isla de cocción. Unas puertas correderas a la altura del techo dan acceso directo a una amplia terraza y a la piscina. La planta superior cuenta con dos dormitorios con baños en suite y una terraza.
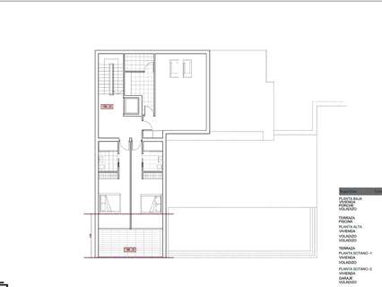
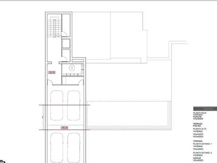
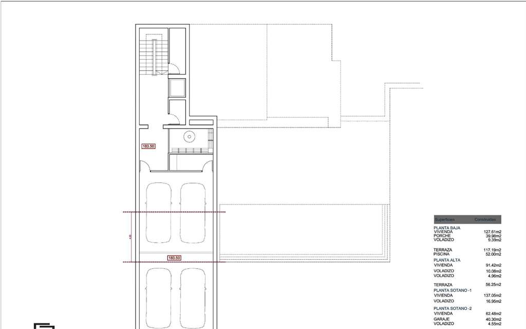
La propiedad cuenta con dos sótanos. El sótano 1 cuenta con otros dos dormitorios, cada uno con su propio baño, y un lavadero. El sótano 2 alberga el gimnasio, la bodega y un garaje con capacidad para 4 coches.
La casa dispone de aire acondicionado (por conductos) y calefacción central con bomba de calor. Dispone de puerta de entrada automática con acceso peatonal independiente y portero automático. En la misma planta que la casa principal se encuentra la piscina.
Incluye carpintería exterior con persianas automáticas y mosquiteras en dormitorios, armarios empotrados modulares e instalación básica de alarma.
Para más información, no dude en contactarnos.
Esta villa, con acabados de hormigón visto, cuenta con 4 plantas comunicadas mediante ascensor y escalera interior. La planta baja cuenta con un amplio salón-comedor-cocina de concepto abierto y un aseo. La cocina está totalmente equipada y cuenta con isla de cocción. Unas puertas correderas a la altura del techo dan acceso directo a una amplia terraza y a la piscina. La planta superior cuenta con dos dormitorios con baños en suite y una terraza.
La propiedad cuenta con dos sótanos. El sótano 1 cuenta con otros dos dormitorios, cada uno con su propio baño, y un lavadero. El sótano 2 alberga el gimnasio, la bodega y un garaje con capacidad para 4 coches.
La casa dispone de aire acondicionado (por conductos) y calefacción central con bomba de calor. Dispone de puerta de entrada automática con acceso peatonal independiente y portero automático. En la misma planta que la casa principal se encuentra la piscina.
Incluye carpintería exterior con persianas automáticas y mosquiteras en dormitorios, armarios empotrados modulares e instalación básica de alarma.
Para más información, no dude en contactarnos.
- 3/11/2025
- 548 m2
- 5.018,25 €/m2
- 4
- 4
Zebra Homes
Contactar
Compartir
Tu opinión








