Villa en venta en Benissa zona Cala de la Fustera
Datos básicos
- M-16989
- 2.850.000 €
- 342 m2(8.333 €/m2)
- Alicante
- Benissa
- Cala de la Fustera
Distribución e instalaciones
- 4
- 3
Varios
- Sí
Certificado energético
- B
Detalles
2.850.000 €
Villa contemporánea con vistas panorámicas al mar en La Fustera, Benissa Costa
Esta exclusiva villa de nueva construcción, diseñada por un arquitecto de renombre y desarrollada por un promotor local con más de 20 años de experiencia, se encuentra en una parcela de 800 m² a pocos pasos de la playa de La Fustera.
La arquitectura, que combina la calidez mediterránea con la elegancia contemporánea, integra piedra natural, madera y tonos neutros suaves, integrándose a la perfección en el paisaje costero.
Con una superficie total construida de 716 m² distribuidos en tres niveles (sótano, planta baja y primera planta), la villa ofrece un equilibrio perfecto entre funcionalidad, diseño y comodidad.
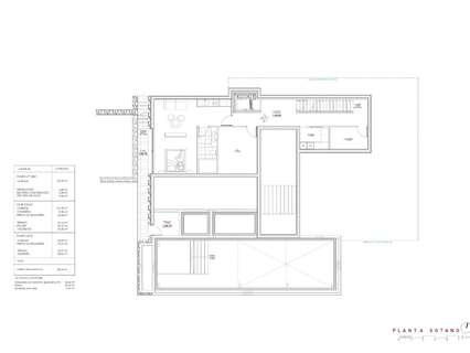
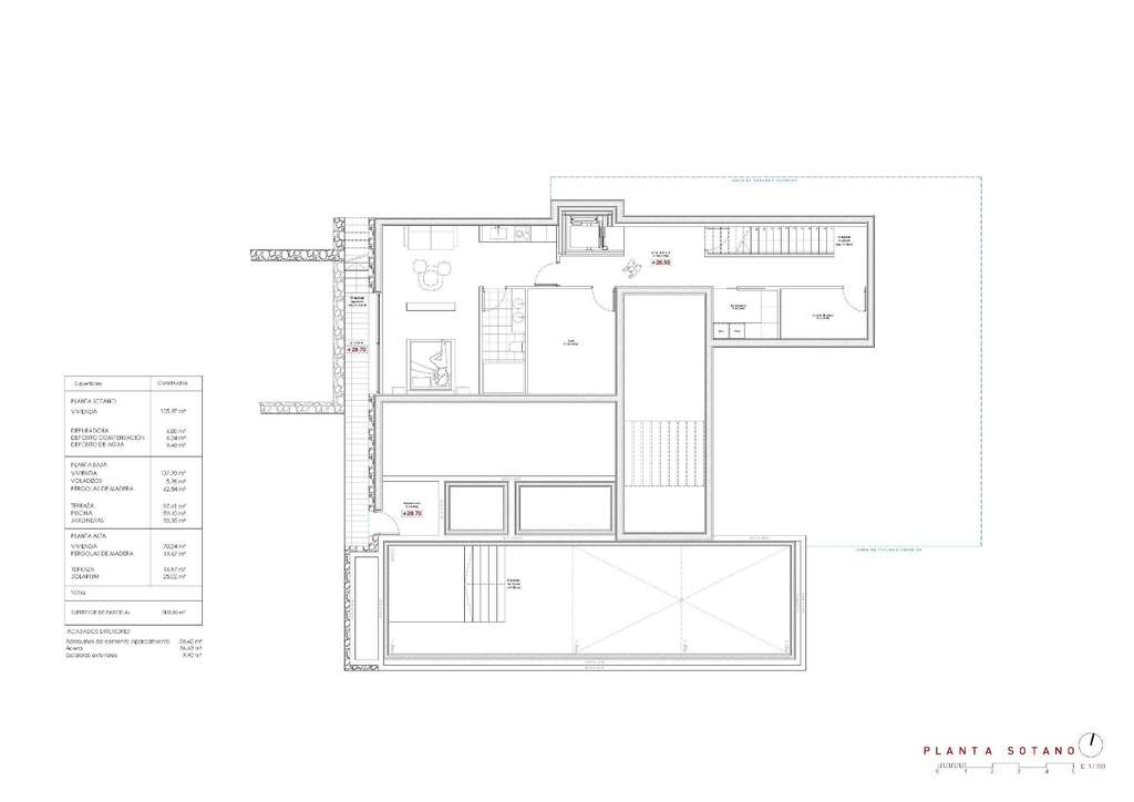
Planta sótanoLa planta baja, de 105,97 m², está diseñada para ser práctica y lúdica. Incluye un gimnasio totalmente equipado, un lavadero y zonas técnicas, con la opción de adaptar espacios adicionales como bodega, cine o sala polivalente. En esta planta también se encuentran el sistema de filtración de la piscina y los depósitos de agua, lo que garantiza una gestión eficiente de todas las instalaciones técnicas.
Planta bajaLa planta principal, de 137,93 m², se desarrolla en una luminosa distribución diáfana que captura la esencia de la vida mediterránea. El espacioso salón, el comedor y la cocina se abren a través de grandes ventanales que van del suelo al techo a la terraza principal y a la piscina infinita, enmarcando las increíbles vistas panorámicas al mar que definen el carácter de esta vivienda.Dos dormitorios dobles, un cuarto de baño completo y un aseo completan esta planta, proporcionando comodidad y funcionalidad. En el exterior, una pérgola de madera da sombra a las zonas de salón y comedor al aire libre, rodeadas de exuberantes jardines, terrazas y una piscina infinita de 59,40 m² que se funde visualmente con el mar.
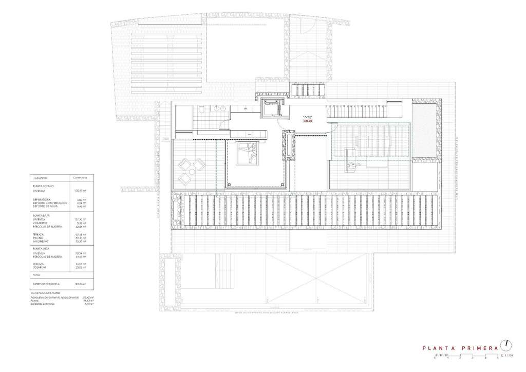
Primera plantaLa planta superior, con 70,19 m², está reservada para la suite principal, un refugio privado con vestidor, baño en suite y una gran terraza privada con impresionantes vistas al mar Mediterráneo. Un segundo dormitorio o espacio de oficina completa esta planta, que también da acceso a un solárium de 25,02 m², ideal para relajarse bajo el sol y disfrutar de la serenidad del entorno.
Exterior y ubicaciónSituada en una tranquila calle residencial rodeada de modernas villas, esta propiedad goza de una ubicación excepcional a solo 3 minutos a pie de la playa de La Fustera (150 m), el Mandala Beach Bar & Restaurant y servicios esenciales como supermercados y servicios locales.
Diseñada con énfasis en la luz, el espacio y la vida interior-exterior sin fisuras, esta villa encarna el estilo de vida mediterráneo moderno: elegante, relajado y en perfecta armonía con sus espectaculares vistas panorámicas al mar.
Asegúrese la villa de sus sueños en La Fustera, Benissa Costa, y disfrute del mejor estilo de vida mediterráneo con impresionantes vistas al mar y un confort inigualable.
Esta exclusiva villa de nueva construcción, diseñada por un arquitecto de renombre y desarrollada por un promotor local con más de 20 años de experiencia, se encuentra en una parcela de 800 m² a pocos pasos de la playa de La Fustera.
La arquitectura, que combina la calidez mediterránea con la elegancia contemporánea, integra piedra natural, madera y tonos neutros suaves, integrándose a la perfección en el paisaje costero.
Con una superficie total construida de 716 m² distribuidos en tres niveles (sótano, planta baja y primera planta), la villa ofrece un equilibrio perfecto entre funcionalidad, diseño y comodidad.
Planta sótanoLa planta baja, de 105,97 m², está diseñada para ser práctica y lúdica. Incluye un gimnasio totalmente equipado, un lavadero y zonas técnicas, con la opción de adaptar espacios adicionales como bodega, cine o sala polivalente. En esta planta también se encuentran el sistema de filtración de la piscina y los depósitos de agua, lo que garantiza una gestión eficiente de todas las instalaciones técnicas.
Planta bajaLa planta principal, de 137,93 m², se desarrolla en una luminosa distribución diáfana que captura la esencia de la vida mediterránea. El espacioso salón, el comedor y la cocina se abren a través de grandes ventanales que van del suelo al techo a la terraza principal y a la piscina infinita, enmarcando las increíbles vistas panorámicas al mar que definen el carácter de esta vivienda.Dos dormitorios dobles, un cuarto de baño completo y un aseo completan esta planta, proporcionando comodidad y funcionalidad. En el exterior, una pérgola de madera da sombra a las zonas de salón y comedor al aire libre, rodeadas de exuberantes jardines, terrazas y una piscina infinita de 59,40 m² que se funde visualmente con el mar.
Primera plantaLa planta superior, con 70,19 m², está reservada para la suite principal, un refugio privado con vestidor, baño en suite y una gran terraza privada con impresionantes vistas al mar Mediterráneo. Un segundo dormitorio o espacio de oficina completa esta planta, que también da acceso a un solárium de 25,02 m², ideal para relajarse bajo el sol y disfrutar de la serenidad del entorno.
Exterior y ubicaciónSituada en una tranquila calle residencial rodeada de modernas villas, esta propiedad goza de una ubicación excepcional a solo 3 minutos a pie de la playa de La Fustera (150 m), el Mandala Beach Bar & Restaurant y servicios esenciales como supermercados y servicios locales.
Diseñada con énfasis en la luz, el espacio y la vida interior-exterior sin fisuras, esta villa encarna el estilo de vida mediterráneo moderno: elegante, relajado y en perfecta armonía con sus espectaculares vistas panorámicas al mar.
Asegúrese la villa de sus sueños en La Fustera, Benissa Costa, y disfrute del mejor estilo de vida mediterráneo con impresionantes vistas al mar y un confort inigualable.
- 5/12/2025
- 342 m2
- 8.333,33 €/m2
- 4
- 3
Medimar Eiendom
Contactar
Compartir
Tu opinión














