Villa en venta en Benissa zona Cala de la Fustera
Datos básicos
- PS-84264
- 2.175.000 €
- 269 m2(8.086 €/m2)
- Alicante
- Benissa
- Cala de la Fustera
Distribución e instalaciones
- 4
- 3
Varios
- Sí
Certificado energético
- B
Detalles
2.175.000 €
Villa con vistas al mar y encanto ibicenco en La Fustera, Benissa
Esta impresionante villa de nueva construcción combina la elegancia de la arquitectura contemporánea con la calidez y el carácter del diseño ibicenco. Situada en la cotizada zona de La Fustera (Benissa Costa), disfruta de vistas panorámicas al mar y se encuentra a pocos minutos de la playa, supermercados, restaurantes y otros servicios esenciales.
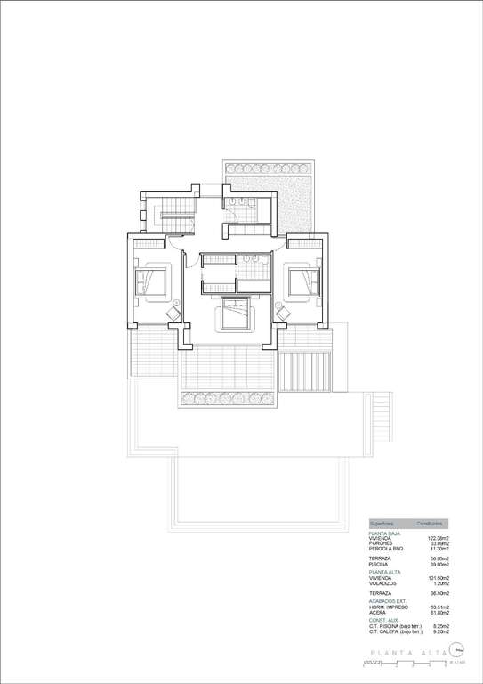
Situada en una parcela de más de 1.000 m², la propiedad se distribuye en dos niveles y ofrece un total de 4 amplios dormitorios y 3 baños. La planta baja presenta una distribución diáfana con un gran salón, comedor y cocina totalmente equipada con isla y barra americana. Las puertas correderas de suelo a techo conectan el interior con una generosa terraza orientada al sur, creando una perfecta fluidez entre el interior y el exterior. En este nivel también hay un dormitorio y un baño.
En el exterior, la villa cuenta con varias zonas de descanso y comedor, una barbacoa cubierta con pérgola y una atractiva piscina rodeada de exuberante vegetación y tumbonas. En la planta superior hay tres dormitorios adicionales (incluido el dormitorio principal con baño en suite y terraza privada), así como una segunda terraza con hermosas vistas.
La vivienda está totalmente equipada para disfrutar de todo el confort durante todo el año e incluye calefacción por suelo radiante, aire acondicionado por conductos y acabados de alta calidad en todas las estancias. Entre las características adicionales se incluyen una sala técnica para el sistema de calefacción y una sala independiente para el equipo de la piscina, ambas situadas en el sótano para maximizar el espacio y la funcionalidad.
Hágase con la villa de sus sueños en La Fustera, Benissa Costa, y disfrute del mejor estilo de vida mediterráneo con impresionantes vistas al mar y un confort inigualable.
- hace 9 días
- 269 m2
- 8.085,5 €/m2
- 4
- 3
Global Spain
Contactar
Compartir
Tu opinión











