Planta baja en venta en Benitachell zona Cumbre del Sol
Datos básicos
- SP-27420
- 445.800 €
- 100 m2(4.458 €/m2)
- Alicante
- Benitachell
- Cumbre del Sol
Distribución e instalaciones
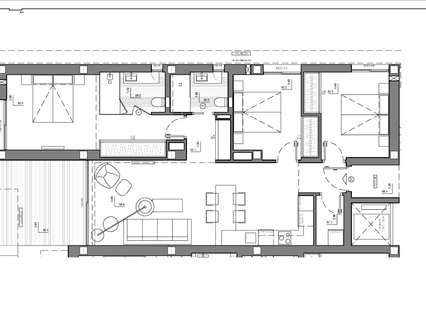
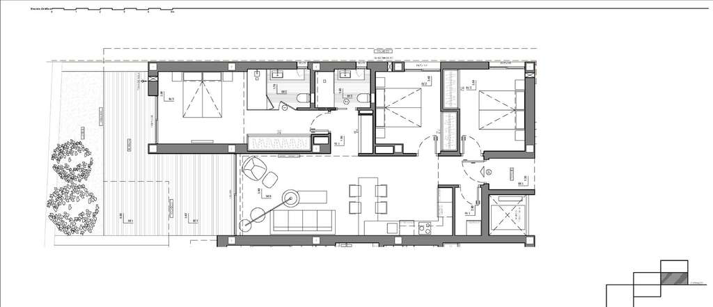
- 3
- 2
Varios
- Sí
Certificado energético
- B
Detalles
445.800 €
APARTAMENTOS DE OBRA NUEVA EN CUMBRE DEL SOL
Apartamentos de obra nueva con una arquitectura moderna, con 3 dormitorios y 2 baños, cocina abierta al salón, con varios modelos a elegir, terraza y jardín en los apartamentos de la planta baja, y solarium en la planta superior, todo ello distribuido para aprovechar al máximo el espacio, aprovechando la luz mediterránea y ofreciendo un plus de confort en su día a día.
El equipamiento de los apartamentos también está orientado al confort con calefacción por suelo radiante, aire acondicionado frío y calor por conductos con termostato en el salón, agua caliente por sistema Altherma, electrodomésticos incluidos y un proyecto de decoración para darles estilo y calidez.
Las zonas comunes están pensadas para relajarse y disfrutar en familia, con piscina rodeada de amplias terrazas para disfrutar del sol, parque infantil, club social, jardines y zonas de aparcamiento.
A poca distancia de la Cala del Llebeig, del núcleo urbano de Moraira y de todos los servicios de los que está dotado el Residencial Cumbre del Sol.
El Residencial está rodeado de un entorno excepcional, en el que destacan las hermosas vistas sobre el mar Mediterráneo, una promoción ideal para disfrutar del tiempo libre en familia en las zonas comunes con varias piscinas, amplias terrazas para tomar el sol, club social, zonas de juegos para los niños, además por su ubicación nos permite realizar varias rutas de senderismo como la que nos lleva a Cala Llebeig, un enclave único en la Costa Blanca.
También puede aprovechar todos los servicios que incluye el Residencial Cumbre del Sol, zona comercial, supermercado, peluquería, farmacia, bares y restaurantes, pistas de padel y tenis, rutas de senderismo, colegio internacional Lady Elizabeth School, centro hipico, playa y calas con chiringuitos, a poca distancia hay restaurantes de primera categoría reconocidos con estrellas Michelin, Clubes de Golf, Clubes Náuticos, todos los servicios que necesita para vivir y disfrutar todo el año.
El aeropuerto de Alicante se encuentra a 1 hora en coche.
- 29/09/2025
- 100 m2
- 4.458 €/m2
- 3
- 2
WGN Spain
Contactar
Compartir
Tu opinión


































