Villa en venta en Benitachell
Datos básicos
- OV43084
- 1.375.000 €
- Alicante
- Benitachell
Distribución e instalaciones
- 3
- 3
Varios
- Sí
Certificado energético
Detalles
1.375.000 €
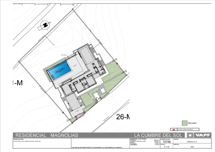
Residencial Magnolias en Cumbre del Sol, se levanta Villa Nara, una residencia en construcción diseñada para fundir interior y exterior en una experiencia de vida abierta y luminosa. Su ubicación en la Costa Blanca y su arquitectura contemporánea la convierten en un refugio perfecto para disfrutar de la tranquilidad y la belleza del entorno.
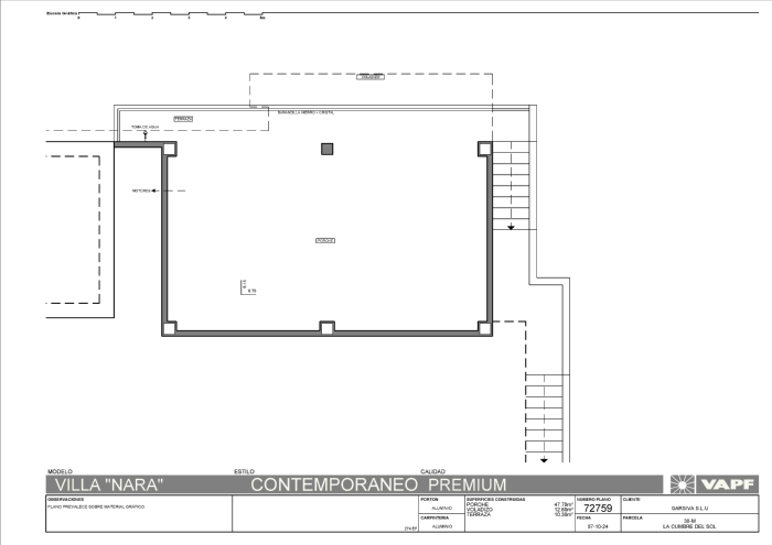
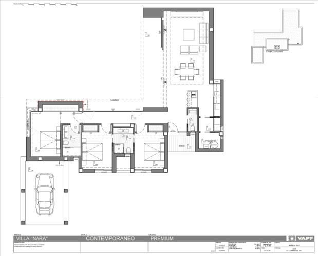
La vivienda se desarrolla principalmente en una sola planta, lo que garantiza accesibilidad y comodidad. Este diseño, pensado para quienes prefieren evitar escaleras, organiza la vida diaria con fluidez y funcionalidad. Dispone de tres dormitorios dobles, incluyendo una suite principal con baño privado y acceso directo a la terraza. La zona de día destaca por su amplitud y distribución abierta: salón, comedor y cocina conviven en un único espacio conectado con el exterior mediante grandes ventanales.
Villa Nara incorpora soluciones de eficiencia energética como aerotermia, ventilación con recuperación de calor, suelo radiante y preinstalación de punto de recarga de coche eléctrico, placas solares, alarma, interfono, electrodomésticos. La calidad de los materiales y el cuidado en cada detalle aseguran una vivienda preparada para el confort y el ahorro energético.
La gran terraza exterior, con piscina privada, prolonga el interior hacia el cielo mediterráneo. Villa Nara no solo es una casa pensada para vivir, sino para disfrutar cada día del clima, la luz y el entorno que definen el estilo de vida en Cumbre del Sol.
La vivienda se desarrolla principalmente en una sola planta, lo que garantiza accesibilidad y comodidad. Este diseño, pensado para quienes prefieren evitar escaleras, organiza la vida diaria con fluidez y funcionalidad. Dispone de tres dormitorios dobles, incluyendo una suite principal con baño privado y acceso directo a la terraza. La zona de día destaca por su amplitud y distribución abierta: salón, comedor y cocina conviven en un único espacio conectado con el exterior mediante grandes ventanales.
Villa Nara incorpora soluciones de eficiencia energética como aerotermia, ventilación con recuperación de calor, suelo radiante y preinstalación de punto de recarga de coche eléctrico, placas solares, alarma, interfono, electrodomésticos. La calidad de los materiales y el cuidado en cada detalle aseguran una vivienda preparada para el confort y el ahorro energético.
La gran terraza exterior, con piscina privada, prolonga el interior hacia el cielo mediterráneo. Villa Nara no solo es una casa pensada para vivir, sino para disfrutar cada día del clima, la luz y el entorno que definen el estilo de vida en Cumbre del Sol.
- 30/09/2025
- 3
- 3
Ferrando
Contactar
Compartir
Tu opinión












