Villa en venta en Benitachell
Datos básicos
- OV70642
- 1.865.000 €
- Alicante
- Benitachell
Distribución e instalaciones
- 3
- 4
Varios
- Sí
Certificado energético
Detalles
1.865.000 €
En el residencial Lirios de Cumbre del Sol, se encuentra Villa Iseo, una vivienda que fusiona lujo contemporáneo con naturaleza mediterránea. Su diseño elegante, marcado por líneas limpias y volúmenes armónicos, transforma la experiencia de vivir frente al mar en algo profundamente sensorial.
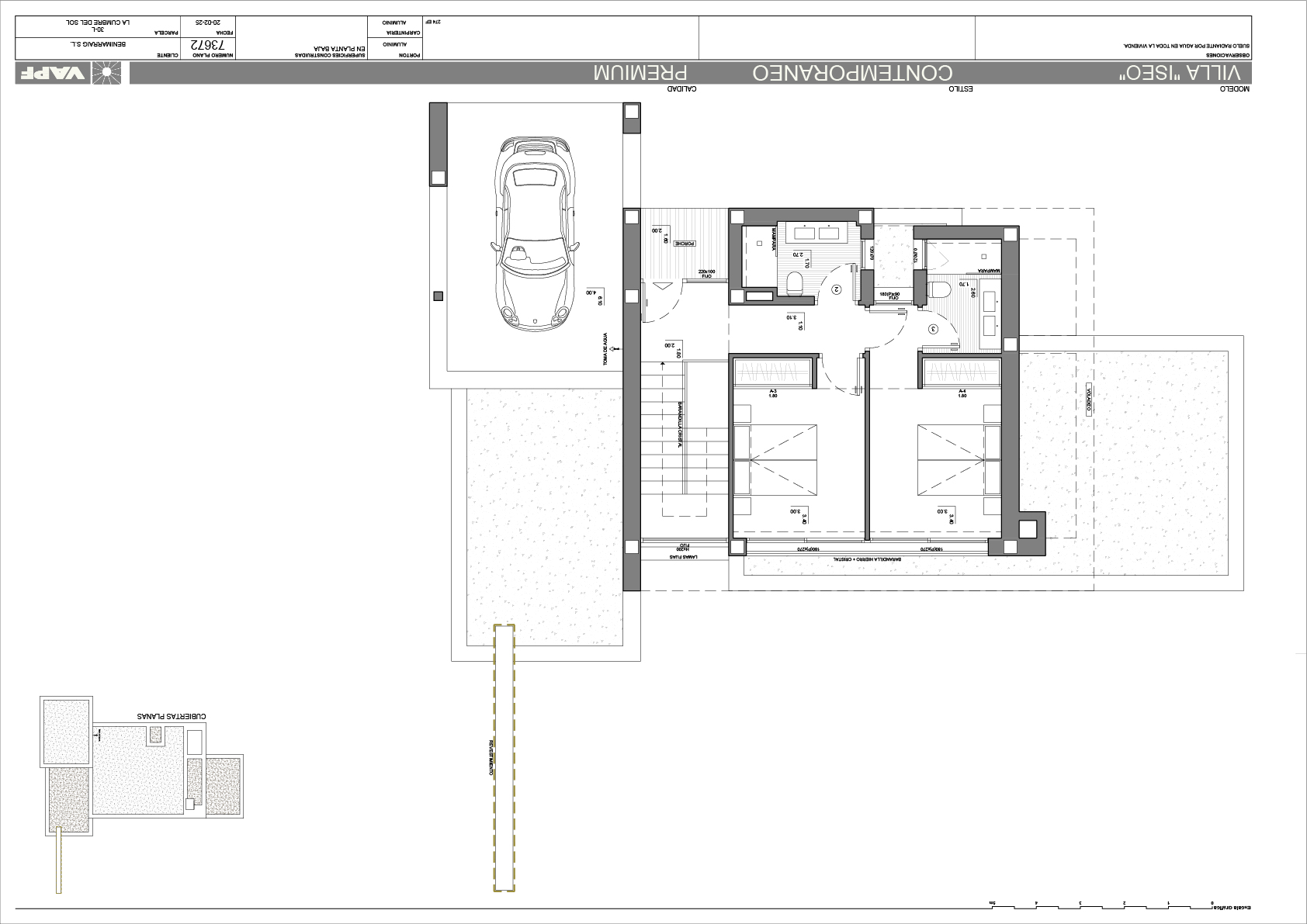
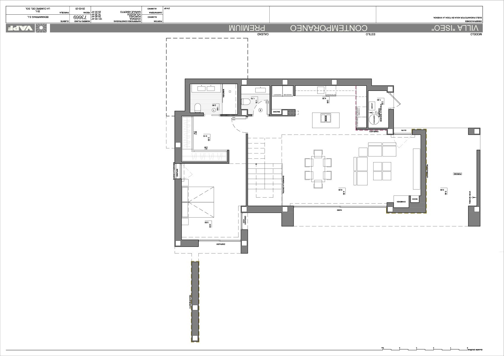
Distribuida en dos niveles, Villa Iseo ofrece espacios abiertos, luminosos y conectados al exterior. La planta principal acoge una cocina abierta que se integra con el comedor y el salón, generando un ambiente fluido que desemboca en la terraza. Aquí, la piscina infinita, la terraza, el porche y la vegetación mediterránea, crean un entorno ideal para disfrutar del clima durante todo el año. Los tres dormitorios, ubicados estratégicamente, permiten privacidad, amplitud y vistas despejadas desde el interior.
La vivienda está equipada con soluciones tecnológicas de última generación: sistema de climatización por aerotermia, ventilación mecánica con recuperación de calor, suelo radiante, instalación solar y domótica. Cada detalle ha sido diseñado para ofrecer eficiencia, confort y estética contemporánea.
Las vistas panorámicas al Mediterráneo acompañan cada estancia. Vivir en Villa Iseo es habitar una obra arquitectónica pensada para emocionar, en una de las localizaciones más singulares de la Costa Blanca.
Distribuida en dos niveles, Villa Iseo ofrece espacios abiertos, luminosos y conectados al exterior. La planta principal acoge una cocina abierta que se integra con el comedor y el salón, generando un ambiente fluido que desemboca en la terraza. Aquí, la piscina infinita, la terraza, el porche y la vegetación mediterránea, crean un entorno ideal para disfrutar del clima durante todo el año. Los tres dormitorios, ubicados estratégicamente, permiten privacidad, amplitud y vistas despejadas desde el interior.
La vivienda está equipada con soluciones tecnológicas de última generación: sistema de climatización por aerotermia, ventilación mecánica con recuperación de calor, suelo radiante, instalación solar y domótica. Cada detalle ha sido diseñado para ofrecer eficiencia, confort y estética contemporánea.
Las vistas panorámicas al Mediterráneo acompañan cada estancia. Vivir en Villa Iseo es habitar una obra arquitectónica pensada para emocionar, en una de las localizaciones más singulares de la Costa Blanca.
- 30/09/2025
- 3
- 4
Ferrando
Contactar
Compartir
Tu opinión

















