Villa en venta en Benitachell
Datos básicos
- AC-69998
- 3.882.000 €
- 1.147 m2(3.384 €/m2)
- Alicante
- Benitachell
Distribución e instalaciones
- 6
- 7
Varios
- Sí
Certificado energético
Detalles
3.882.000 €
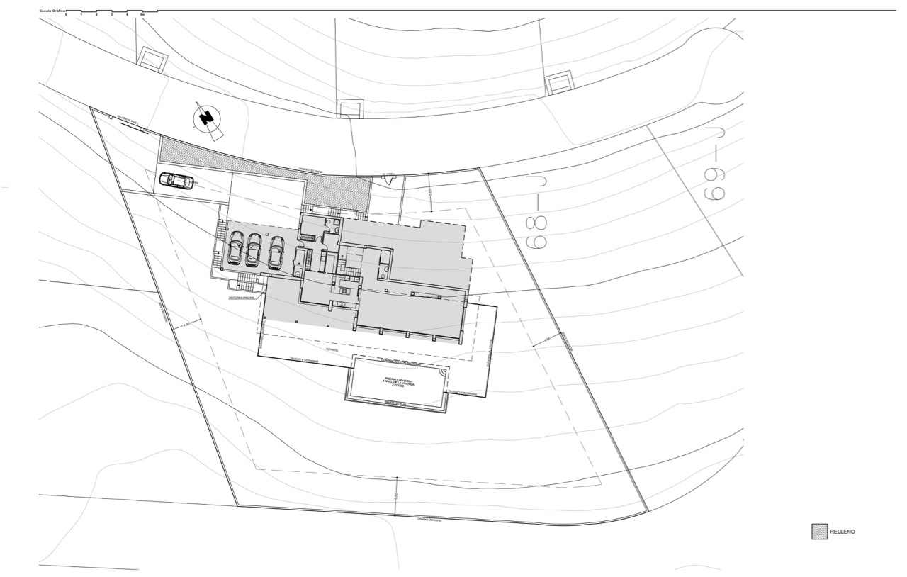
La Villa está distribuida en tres niveles, fruto de un diseño único y exclusivo, con espacios amplios, abiertos y luminosos, en el que todas las estancias están orientadas hacia el mar Mediterráneo, para aprovechar al máximo sus maravillosas vistas.
A la casa se accede por el nivel superior en el que encontramos 5 de los 6 dormitorios de esta vivienda. El dormitorio principal dispone de un amplio vestidor y baño en suite con ducha y bañera con vistas al mar. Los otros 4 dormitorios de esta planta, tienen también baño en suite con ducha y armario ropero. Todos los dormitorios tienen acceso directo a la terraza y además comparten un espacio común pensado para ver la televisión.
Las escaleras nos llevan a la planta principal de esta vivienda, la zona de día, cuenta con un salón comedor de grandes dimensiones, una cocina con isla y comedor, despensa, lavadero, habitación con baño en suite para el servicio, aseo de cortesía y parking para 3 vehículos. Además de una amplia terraza ideal para relajarse, disfrutar de la piscina sinfín de 60 metros de lámina de agua y de su espacioso porche con comedor de día y zona de relax desde el que seguir contemplando sus sensacionales vistas al mar.
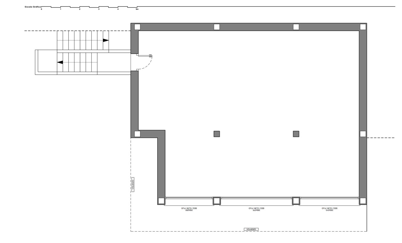
Completa ésta fantástica propiedad una zona diáfana de más de 100m², situada en la planta baja, cuyo uso va a depender de las necesidades que tenga su propietario.
A la casa se accede por el nivel superior en el que encontramos 5 de los 6 dormitorios de esta vivienda. El dormitorio principal dispone de un amplio vestidor y baño en suite con ducha y bañera con vistas al mar. Los otros 4 dormitorios de esta planta, tienen también baño en suite con ducha y armario ropero. Todos los dormitorios tienen acceso directo a la terraza y además comparten un espacio común pensado para ver la televisión.
Las escaleras nos llevan a la planta principal de esta vivienda, la zona de día, cuenta con un salón comedor de grandes dimensiones, una cocina con isla y comedor, despensa, lavadero, habitación con baño en suite para el servicio, aseo de cortesía y parking para 3 vehículos. Además de una amplia terraza ideal para relajarse, disfrutar de la piscina sinfín de 60 metros de lámina de agua y de su espacioso porche con comedor de día y zona de relax desde el que seguir contemplando sus sensacionales vistas al mar.
Completa ésta fantástica propiedad una zona diáfana de más de 100m², situada en la planta baja, cuyo uso va a depender de las necesidades que tenga su propietario.
- 11/02/2023
- 1.147 m2
- 3.384,48 €/m2
- 6
- 7
Contactar
Compartir
Tu opinión








