Apartamento en venta en Bigastro zona Loma Alta
Datos básicos
- RS-82084
- 189.000 €
- 90 m2(2.100 €/m2)
- Alicante
- Bigastro
- Loma Alta
Distribución e instalaciones
- 3
- 2
Varios
- Sí
Certificado energético
Detalles
189.000 €
Bungalows de nueva construcción en venta en Bigastro Vida moderna en la Costa Blanca Sur
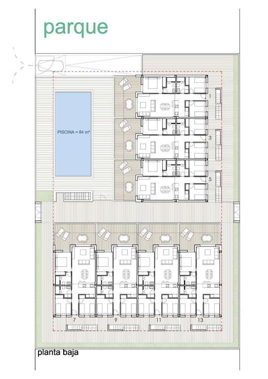
Exclusiva promoción de 14 viviendas contemporáneasDescubra este nuevo proyecto residencial de 14 modernos bungalows situados en Bigastro, Alicante. Ubicada en una zona en expansión de la localidad y a poca distancia del centro, esta promoción ofrece comodidad, estilo y una excelente relación calidad-precio en un tranquilo entorno mediterráneo. Cada vivienda está diseñada con acabados de alta calidad y distribuciones funcionales, ideales tanto para vivir de forma permanente como para estancias vacacionales.
Viviendas modernas con posibilidad de elegir entre distribuciones en planta baja o en planta superiorEl proyecto ofrece amplias propiedades con 3 dormitorios y 2 baños, incluido un baño en suite en el dormitorio principal. Los compradores pueden elegir entre bungalows en planta baja con amplias terrazas privadas o unidades en planta superior con terraza y solárium privado en la azotea con vistas despejadas. Todas las viviendas incluyen una plaza de aparcamiento subterráneo y un trastero, lo que proporciona la máxima comodidad.
Comodidad, diseño y eficiencia energéticaCada bungalow cuenta con una cocina abierta integrada en el salón, armarios empotrados, una terraza privada y preinstalación de aire acondicionado por conductos. El agua caliente se suministra mediante un eficiente sistema aerotérmico, lo que garantiza un menor consumo de energía. La urbanización también incluye una amplia piscina comunitaria rodeada de hermosos jardines, perfecta para relajarse y disfrutar del clima soleado de la Costa Blanca.
Ubicación privilegiada con excelentes conexionesBigastro es una encantadora localidad de la comarca de la Vega Baja, conocida por su ambiente tranquilo, sus servicios locales y sus excelentes conexiones de transporte. Desde esta zona residencial, los residentes pueden llegar fácilmente aCentro de Bigastro 0,5 kmOrihuela 5 kmPlayas de Guardamar del Segura 15 kmCentro Comercial Zenia Boulevard 20 kmAeropuerto Internacional de Alicante 48 kmHospital Vega Baja a 10 kmLa autopista AP 7 proporciona un rápido acceso a Alicante, Murcia y las localidades costeras de los alrededores, lo que convierte a Bigastro en un lugar ideal tanto para vivir como para desplazarse al trabajo.
Una zona en crecimiento con todos los servicios esencialesBigastro cuenta con supermercados, colegios, instalaciones deportivas, parques y una gran variedad de tiendas y restaurantes locales. Su combinación de comodidad, entorno tranquilo y excelentes conexiones lo ha convertido en una opción residencial cada vez más popular tanto para los compradores locales como para los internacionales.
Asegúrese hoy mismo su nueva vivienda en BigastroTanto si busca un moderno refugio vacacional como una cómoda residencia para todo el año, este nuevo proyecto de construcción en Bigastro es una oportunidad que no debe dejar pasar. Póngase en contacto con nosotros ahora para obtener más información o concertar una visita.
Exclusiva promoción de 14 viviendas contemporáneasDescubra este nuevo proyecto residencial de 14 modernos bungalows situados en Bigastro, Alicante. Ubicada en una zona en expansión de la localidad y a poca distancia del centro, esta promoción ofrece comodidad, estilo y una excelente relación calidad-precio en un tranquilo entorno mediterráneo. Cada vivienda está diseñada con acabados de alta calidad y distribuciones funcionales, ideales tanto para vivir de forma permanente como para estancias vacacionales.
Viviendas modernas con posibilidad de elegir entre distribuciones en planta baja o en planta superiorEl proyecto ofrece amplias propiedades con 3 dormitorios y 2 baños, incluido un baño en suite en el dormitorio principal. Los compradores pueden elegir entre bungalows en planta baja con amplias terrazas privadas o unidades en planta superior con terraza y solárium privado en la azotea con vistas despejadas. Todas las viviendas incluyen una plaza de aparcamiento subterráneo y un trastero, lo que proporciona la máxima comodidad.
Comodidad, diseño y eficiencia energéticaCada bungalow cuenta con una cocina abierta integrada en el salón, armarios empotrados, una terraza privada y preinstalación de aire acondicionado por conductos. El agua caliente se suministra mediante un eficiente sistema aerotérmico, lo que garantiza un menor consumo de energía. La urbanización también incluye una amplia piscina comunitaria rodeada de hermosos jardines, perfecta para relajarse y disfrutar del clima soleado de la Costa Blanca.
Ubicación privilegiada con excelentes conexionesBigastro es una encantadora localidad de la comarca de la Vega Baja, conocida por su ambiente tranquilo, sus servicios locales y sus excelentes conexiones de transporte. Desde esta zona residencial, los residentes pueden llegar fácilmente aCentro de Bigastro 0,5 kmOrihuela 5 kmPlayas de Guardamar del Segura 15 kmCentro Comercial Zenia Boulevard 20 kmAeropuerto Internacional de Alicante 48 kmHospital Vega Baja a 10 kmLa autopista AP 7 proporciona un rápido acceso a Alicante, Murcia y las localidades costeras de los alrededores, lo que convierte a Bigastro en un lugar ideal tanto para vivir como para desplazarse al trabajo.
Una zona en crecimiento con todos los servicios esencialesBigastro cuenta con supermercados, colegios, instalaciones deportivas, parques y una gran variedad de tiendas y restaurantes locales. Su combinación de comodidad, entorno tranquilo y excelentes conexiones lo ha convertido en una opción residencial cada vez más popular tanto para los compradores locales como para los internacionales.
Asegúrese hoy mismo su nueva vivienda en BigastroTanto si busca un moderno refugio vacacional como una cómoda residencia para todo el año, este nuevo proyecto de construcción en Bigastro es una oportunidad que no debe dejar pasar. Póngase en contacto con nosotros ahora para obtener más información o concertar una visita.
- hace 3 días
- 90 m2
- 2.100 €/m2
- 3
- 2
Immo Toro
Contactar
Compartir
Tu opinión








