Villa en venta en Calpe zona Cucarres
Datos básicos
- M-94617
- 1.850.000 €
- 410 m2(4.512 €/m2)
- Alicante
- Calpe
- Cucarres
Distribución e instalaciones
- 4
- 6
Varios
- Sí
Certificado energético
Detalles
1.850.000 €
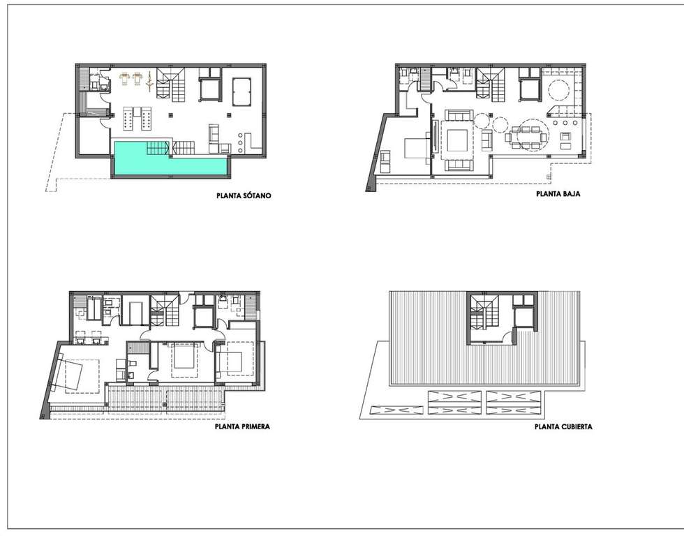
VILLA DE LUJO VISTAS AL MAR Villa de lujo moderna e independiente con impresionantes vistas al mar La vivienda dispone de ascensor para mayor comodidad que conecta las 3 plantas de la vivienda. Desde todos los dormitorios y desde el salón se pueden disfrutar de unas espectaculares vistas al mar. Su infinity pool te permitirá tomar un baño relajante mientras sientes cómo te fundes con el horizonte, el mar Mediterráneo y su cielo azul. La promoción se sitúa a menos de 2 km de la playa y del centro de Calpe, con todos los servicios necesarios. El aeropuerto de Alicante se encuentra a 70 km y Benidorm con su gran oferta de ocio a tan sólo 20 km. Desde Calpe se puede acceder a una oferta variada de campos de golf, colegios internacionales, puertos y deportes náuticos, variada gastronomía y todo ello en un clima con 300 días de sol al año y una temperatura media anual de 20ºC.
- 13/10/2025
- 410 m2
- 4.512,2 €/m2
- 4
- 6
Medimar Eiendom
Contactar
Compartir
Tu opinión









