Villa en venta en Calpe
Datos básicos
- FTBS-T3754
- 1.890.000 €
- 456 m2(4.145 €/m2)
- Alicante
- Calpe
Distribución e instalaciones
- 5
- 4
Varios
- Totalmente amueblado
- 1.000 m2
- Sí
Certificado energético
Detalles
1.890.000 €
Chalet/Villa en Calpe - Empedrola SUP A20-1Parcela, proyecto, proyecto de construcción con perfecta vista al mar
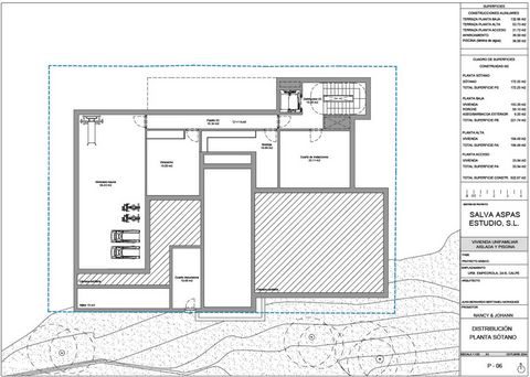
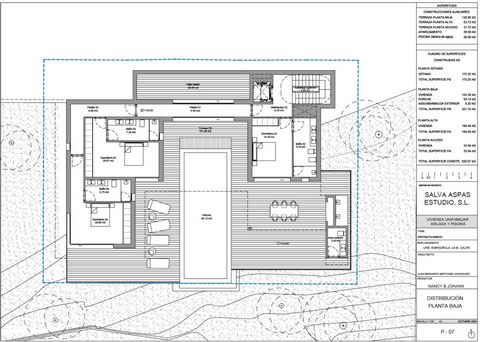
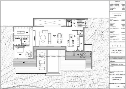
Detalles : 1000m2 ; 4 dormitorios; 4 baños; gran terraza; piscinaVistas perfectas al mar y panoramicas en la montaña, ubicación topDiseño TOPEmpedrola II A20-1 1000m2 + 456m2, 5 dormitorios, 4 baños, 100% VISTAS AL MAR.Al tratarse de un anteproyecto, el cliente podrá personalizar con el arquitecto cualquier detalle y acabado que estime oportuno.
Contacte con nosotros para más información y para visitar el lugar.
Detalles : 1000m2 ; 4 dormitorios; 4 baños; gran terraza; piscinaVistas perfectas al mar y panoramicas en la montaña, ubicación topDiseño TOPEmpedrola II A20-1 1000m2 + 456m2, 5 dormitorios, 4 baños, 100% VISTAS AL MAR.Al tratarse de un anteproyecto, el cliente podrá personalizar con el arquitecto cualquier detalle y acabado que estime oportuno.
Contacte con nosotros para más información y para visitar el lugar.
- hace 3 horas
- 456 m2
- 4.144,74 €/m2
- 5
- 4
- 1.000 m2
ArKadia Publishing Ltd
Contactar
Compartir
Tu opinión
Mapa










