Apartamento en venta en Catral zona Pueblo
Datos básicos
- NB-14214
- 195.000 €
- 94 m2(2.074 €/m2)
- Alicante
- Catral
- Pueblo
Distribución e instalaciones
- 1
- 2
Certificado energético
Detalles
195.000 €
Apartamentos modernos de nueva construcción en Catral
Vida contemporánea en el corazón de Catral
Descubra esta exclusiva promoción nueva que ofrece solo 7 apartamentos modernos en una ubicación privilegiada junto al centro de la ciudad de Catral. Situada en la región de Vega Baja de Alicante, Catral es conocida por su encantador ambiente mediterráneo, sus cómodos servicios y su excelente acceso a la costa. Este proyecto residencial transforma un antiguo espacio comercial en desuso de un edificio de 2008 en elegantes viviendas diseñadas para la comodidad y la vida moderna.
Apartamentos amplios y elegantes listos para entrar a vivir
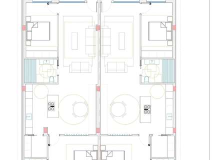
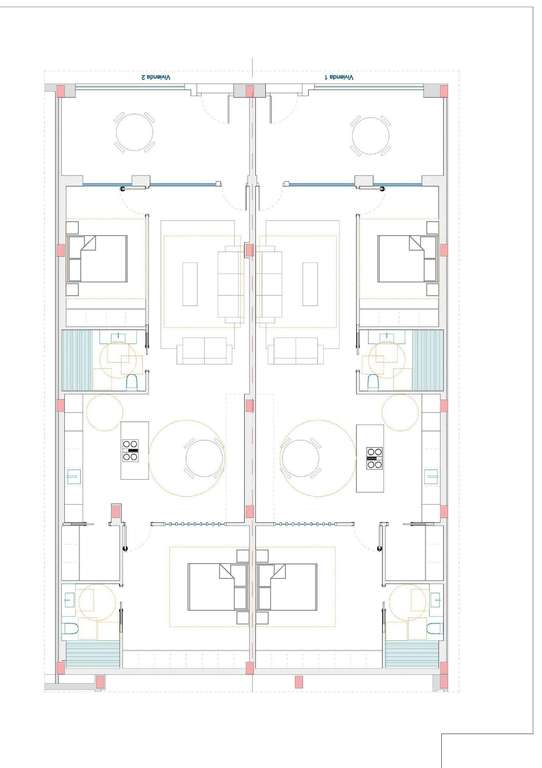
Cada unidad ofrece una generosa distribución de 94 m2 con un salón-comedor diáfano conectado a una cocina totalmente equipada, un lavadero, una terraza de 18 m2 y 2 baños. La distribución incluye un dormitorio y una sala de oficina adicional que puede servir como espacio para invitados o zona multifuncional.
Dos de los apartamentos están casi listos para entrar a vivir, lo que convierte a esta promoción en una oportunidad excepcional para los compradores que buscan una nueva vivienda sin tener que esperar largos plazos de finalización.
Acabados de alta calidad y características modernas
Los apartamentos han sido completamente renovados con materiales de primera calidad y están equipados con:
Persianas eléctricas
Pared decorativa de piedra natural en el comedor
Sistema aerotérmico para agua caliente
Dos paneles solares con inversor
Aire acondicionado por conductos totalmente instalado para aire caliente y frío
Cuartos de baño con tocadores y espejos
Cocinas amuebladas con armarios altos y bajos
Estas características garantizan una excelente eficiencia energética, un estilo contemporáneo y el máximo confort durante todo el año.
Ubicación céntrica cerca de todos los servicios
La promoción se encuentra en el centro urbano de Catral, a pocos pasos de supermercados, tiendas, colegios, centros médicos, cafeterías y restaurantes. Catral es una localidad tranquila y bien comunicada, ideal tanto para vivir como para pasar las vacaciones.
Distancias clave a los principales puntos de interés
Playas de Guardamar: 15 km
Campos de golf La Finca y Vistabella: 14 km
Aeropuerto Internacional de Alicante: 25 km
Asegúrese hoy mismo su nueva vivienda en Catral
Estos modernos apartamentos combinan calidad, comodidad y una ubicación inmejorable a un precio muy competitivo.
Póngase en contacto con nosotros ahora para concertar una visita y reservar su nueva propiedad en Catral antes de que se agoten.
Vida contemporánea en el corazón de Catral
Descubra esta exclusiva promoción nueva que ofrece solo 7 apartamentos modernos en una ubicación privilegiada junto al centro de la ciudad de Catral. Situada en la región de Vega Baja de Alicante, Catral es conocida por su encantador ambiente mediterráneo, sus cómodos servicios y su excelente acceso a la costa. Este proyecto residencial transforma un antiguo espacio comercial en desuso de un edificio de 2008 en elegantes viviendas diseñadas para la comodidad y la vida moderna.
Apartamentos amplios y elegantes listos para entrar a vivir
Cada unidad ofrece una generosa distribución de 94 m2 con un salón-comedor diáfano conectado a una cocina totalmente equipada, un lavadero, una terraza de 18 m2 y 2 baños. La distribución incluye un dormitorio y una sala de oficina adicional que puede servir como espacio para invitados o zona multifuncional.
Dos de los apartamentos están casi listos para entrar a vivir, lo que convierte a esta promoción en una oportunidad excepcional para los compradores que buscan una nueva vivienda sin tener que esperar largos plazos de finalización.
Acabados de alta calidad y características modernas
Los apartamentos han sido completamente renovados con materiales de primera calidad y están equipados con:
Persianas eléctricas
Pared decorativa de piedra natural en el comedor
Sistema aerotérmico para agua caliente
Dos paneles solares con inversor
Aire acondicionado por conductos totalmente instalado para aire caliente y frío
Cuartos de baño con tocadores y espejos
Cocinas amuebladas con armarios altos y bajos
Estas características garantizan una excelente eficiencia energética, un estilo contemporáneo y el máximo confort durante todo el año.
Ubicación céntrica cerca de todos los servicios
La promoción se encuentra en el centro urbano de Catral, a pocos pasos de supermercados, tiendas, colegios, centros médicos, cafeterías y restaurantes. Catral es una localidad tranquila y bien comunicada, ideal tanto para vivir como para pasar las vacaciones.
Distancias clave a los principales puntos de interés
Playas de Guardamar: 15 km
Campos de golf La Finca y Vistabella: 14 km
Aeropuerto Internacional de Alicante: 25 km
Asegúrese hoy mismo su nueva vivienda en Catral
Estos modernos apartamentos combinan calidad, comodidad y una ubicación inmejorable a un precio muy competitivo.
Póngase en contacto con nosotros ahora para concertar una visita y reservar su nueva propiedad en Catral antes de que se agoten.
- hace 19 horas
- 94 m2
- 2.074,47 €/m2
- 1
- 2
Rayos de Sol
Contactar
Compartir
Tu opinión
















