Villa en venta en Daya Nueva zona Pueblo
Datos básicos
- NBZH-93891
- 320.000 €
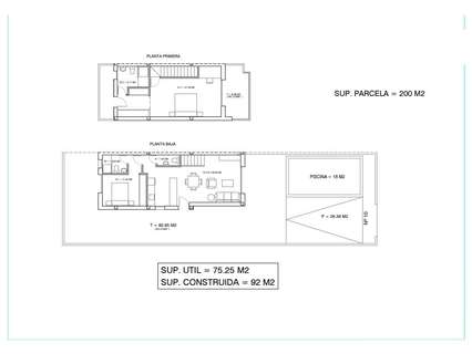
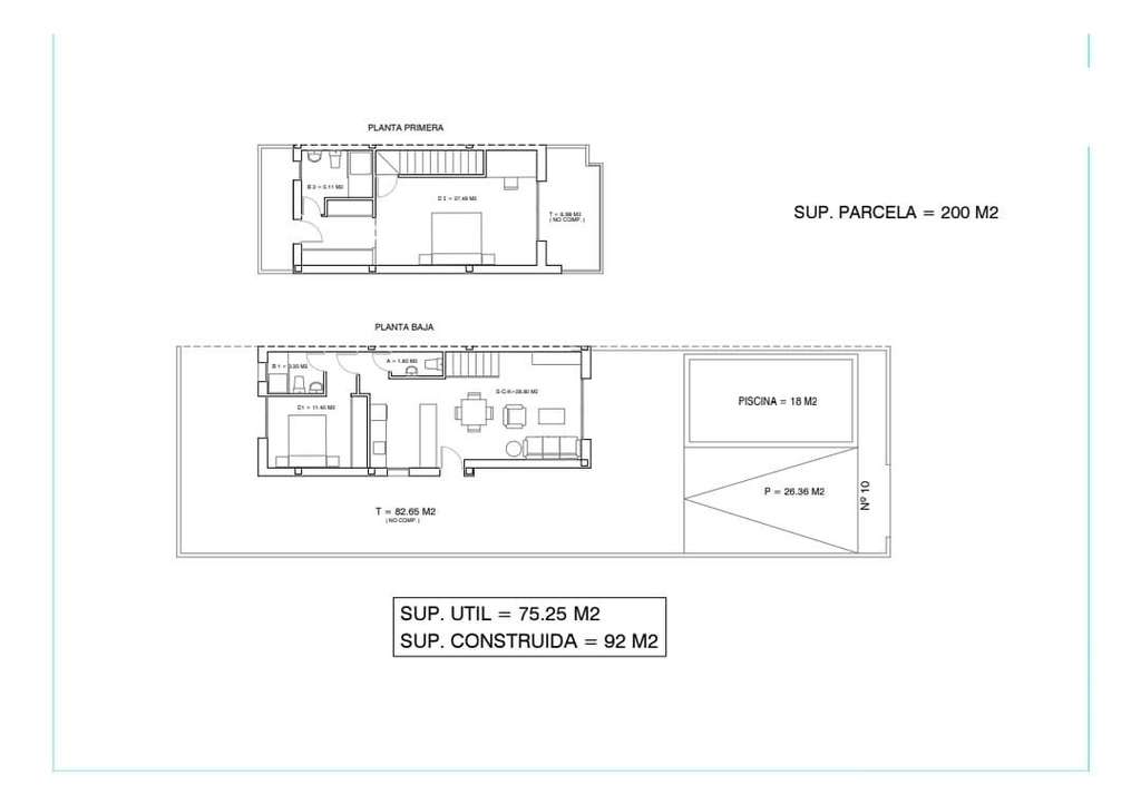
- 92 m2(3.478 €/m2)
- Alicante
- Daya Nueva
- Pueblo
Distribución e instalaciones
- 2
- 2
Varios
- Sí
Certificado energético
Detalles
320.000 €
VILLA PAREADA DE OBRA NUEVA EN DAYA NUEVA #13; #13;Villa pareada de 2 plantas de obra nueva en Daya Nueva. #13; #13;Villa con 2 dormitorios, 2 baños, cocina americana con salón, armarios empotrados, jardín privado con piscina y plaza de aparcamiento. #13; #13;Propiedad situada a pocos minutos a pie del centro del pueblo con restaurantes, bares y tiendas. #13; #13;Daya Nueva es un pequeño pueblo idílico rodeado de paisajes pintorescos, es un pueblo rural rodeado de naranjos y limoneros. #13; #13;Tiene un ayuntamiento, una piscina exterior sólo en verano, algunos bares y restaurantes y una serie de parques repartidos por las zonas de urbanización en el borde del pueblo. #13; #13;La playa de Guardarmar está a 10 minutos en coche y el aeropuerto de Alicante a sólo 25 minutos. #13; #13;Los campos de golf de La Marquesa Golf en Ciudad Quesada y La Finca Golf en Algorfa están a 10 minutos en coche. #13;
- hace 4 días
- 92 m2
- 3.478,26 €/m2
- 2
- 2
Zebra Homes
Contactar
Compartir
Tu opinión


















