Villa en venta en Dolores zona Dolores
Datos básicos
- XB-57711
- 395.000 €
- 165 m2(2.394 €/m2)
- Alicante
- Dolores
- Dolores
Distribución e instalaciones
- 3
- 2
Varios
- Sí
Certificado energético
Detalles
395.000 €
Un proyecto de obra nueva en tres fases, comenzando con la Fase 11 en la zona sur. Esta fase consta de seis villas muy espaciosas y modernas.
Cornerplot 435.000€
El proyecto se ubica en el encantador barrio de Dolores.
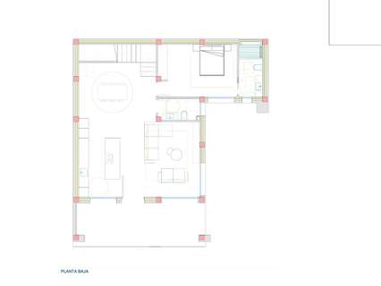
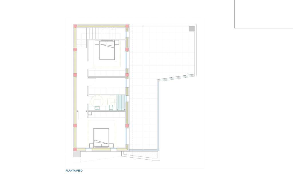
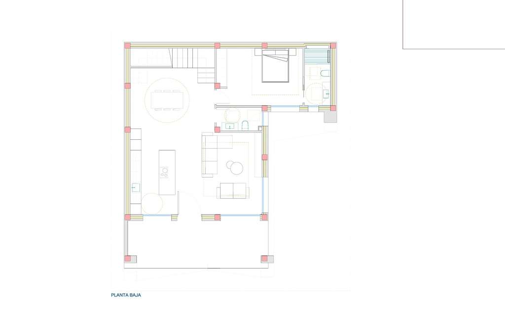
En la planta baja, encontramos un amplio salón, una preciosa cocina con isla, una acogedora y espaciosa zona de TV y un aseo de cortesía. La casa cuenta con tres dormitorios dobles: uno en la planta baja con baño en suite y dos en la primera planta, que también incluye un baño familiar y un lavadero.
La superficie total construida es de aproximadamente 165 metros cuadrados, con una parcela de aproximadamente 260 metros cuadrados, lo que ofrece un amplio espacio para una vida cómoda.
La villa también cuenta con un sótano (bodega técnica) que se entrega sin terminar, pero se puede terminar por un suplemento.
La casa cuenta con una preciosa cocina americana con electrodomésticos integrados y barra americana, un acogedor y espacioso salón, dormitorios con armarios empotrados y mucho más. Su hermosa y espaciosa distribución proporciona abundante luz natural y una agradable vista a la hermosa terraza y al parque de la ciudad. Además de la terraza en la planta baja, la villa también cuenta con una espaciosa terraza en el primer piso y el lujo de una piscina privada, perfecta para relajarse o entretenerse, además de aparcamiento en el mismo lugar.
Todas las ventanas de aluminio cuentan con persianas eléctricas y la casa cuenta con una puerta de seguridad blindada. El aire acondicionado está instalado tanto en la planta baja como en el primer piso, lo que la hace lista para su ocupación inmediata.
Cornerplot 435.000€
El proyecto se ubica en el encantador barrio de Dolores.
En la planta baja, encontramos un amplio salón, una preciosa cocina con isla, una acogedora y espaciosa zona de TV y un aseo de cortesía. La casa cuenta con tres dormitorios dobles: uno en la planta baja con baño en suite y dos en la primera planta, que también incluye un baño familiar y un lavadero.
La superficie total construida es de aproximadamente 165 metros cuadrados, con una parcela de aproximadamente 260 metros cuadrados, lo que ofrece un amplio espacio para una vida cómoda.
La villa también cuenta con un sótano (bodega técnica) que se entrega sin terminar, pero se puede terminar por un suplemento.
La casa cuenta con una preciosa cocina americana con electrodomésticos integrados y barra americana, un acogedor y espacioso salón, dormitorios con armarios empotrados y mucho más. Su hermosa y espaciosa distribución proporciona abundante luz natural y una agradable vista a la hermosa terraza y al parque de la ciudad. Además de la terraza en la planta baja, la villa también cuenta con una espaciosa terraza en el primer piso y el lujo de una piscina privada, perfecta para relajarse o entretenerse, además de aparcamiento en el mismo lugar.
Todas las ventanas de aluminio cuentan con persianas eléctricas y la casa cuenta con una puerta de seguridad blindada. El aire acondicionado está instalado tanto en la planta baja como en el primer piso, lo que la hace lista para su ocupación inmediata.
- hace 14 días
- 165 m2
- 2.393,94 €/m2
- 3
- 2
Procare Estates
Contactar
Compartir
Tu opinión

















