Villa en venta en Dolores zona Dolores
Datos básicos
- SP-12150
- 465.000 €
- 183 m2(2.541 €/m2)
- Alicante
- Dolores
- Dolores
Distribución e instalaciones
- 3
- 2
Varios
- Sí
Certificado energético
- B
Detalles
465.000 €
Modernas villas de nueva construcción en Dolores, Alicante
Vida contemporánea en el corazón de la Vega Baja
Descubra esta exclusiva promoción de villas de nueva construcción en Dolores, una encantadora localidad de la Vega Baja del Segura, al sur de Alicante. Conocida por su carácter tradicional español y rodeada de exuberantes paisajes, Dolores ofrece un estilo de vida tranquilo y, al mismo tiempo, cuenta con todos los servicios necesarios a poca distancia: tiendas, restaurantes, colegios y servicios locales.
Situada a solo 12 km de las playas de La Marina y Guardamar del Segura, y con fácil acceso a la autopista AP-7, esta zona residencial está perfectamente conectada con las principales localidades costeras de la Costa Blanca.
Elegantes villas modernas con piscina privada
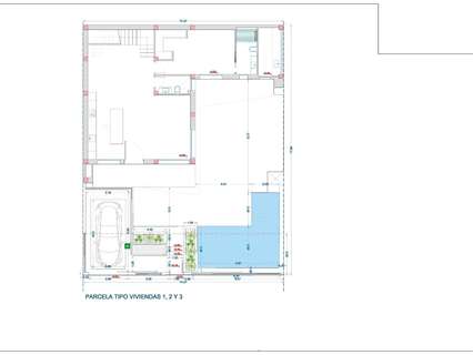
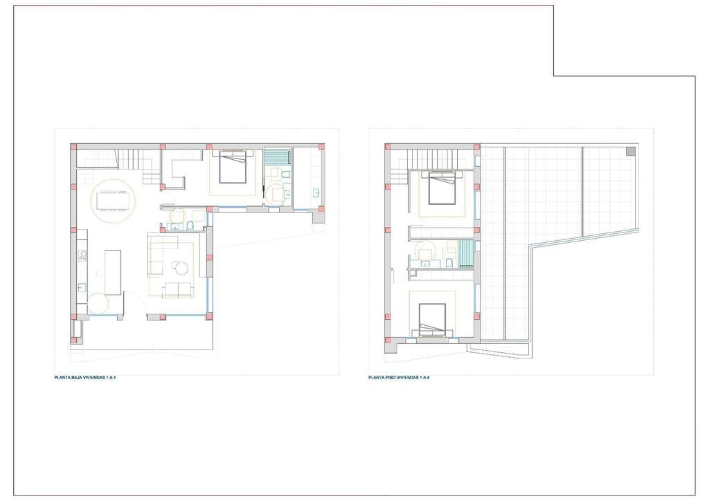
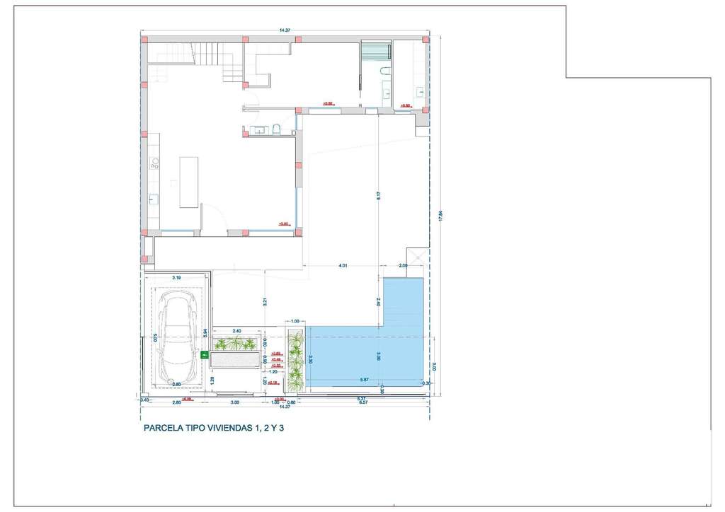
Estas modernas villas de dos plantas han sido diseñadas para ofrecer comodidad, funcionalidad y estilo. En la planta baja, encontrará una luminosa cocina abierta conectada al salón-comedor, con grandes puertas correderas que dan directamente a la terraza y al jardín privado con piscina. La planta baja también cuenta con un dormitorio con baño en suite, un aseo de invitados y una práctica zona de lavandería al aire libre.
En la primera planta hay dos dormitorios adicionales, un cuarto de baño y acceso a una gran terraza abierta de 60 m2, perfecta para tomar el sol o relajarse mientras se disfruta del clima mediterráneo. Cada vivienda incluye aparcamiento privado dentro de la parcela.
Acabados de calidad y comodidad moderna
Construidas con materiales de alta calidad y un diseño contemporáneo, estas villas están totalmente equipadas para vivir todo el año. Las principales características incluyen:
Carpintería exterior con rotura de puente térmico
Persianas motorizadas
Sistema de agua caliente alimentado por energía aerotérmica
Aire acondicionado por conductos totalmente instalado
Piscina privada
Aparcamiento privado y jardín ajardinado
Los interiores combinan elegancia y funcionalidad, maximizando la luz natural y ofreciendo un entorno de vida excepcional con una fuerte conexión entre los espacios interiores y exteriores.
Ubicación privilegiada cerca de todo
Dolores goza de una ubicación estratégica, que ofrece un equilibrio entre tranquilidad y accesibilidad.
Distancias clave:
Playas de La Marina y Guardamar del Segura: 12 km
Aeropuerto de Alicante (Elche-El Altet): 30 km (25 minutos en coche)
Aeropuerto de Murcia-Corvera: 70 km (1 hora en coche)
Campos de golf: 15 km
Ciudad de Alicante: 40 km
Viva el estilo de vida mediterráneo en Dolores
Estas villas de nueva construcción en Dolores ofrecen la combinación perfecta de diseño moderno, comodidad y proximidad a la costa. Ideales tanto para residencia permanente como para vacaciones, proporcionan un estilo de vida mediterráneo sereno, rodeado de naturaleza y comodidades.
Póngase en contacto con nosotros hoy mismo para concertar una visita y hacer realidad la casa de sus sueños en Dolores.
- hace 4 días
- 183 m2
- 2.540,98 €/m2
- 3
- 2
Global Spain
Contactar
Compartir
Tu opinión








































