Villa en venta en El Pinós/Pinoso
Datos básicos
- IT-0514
- 258.000 €
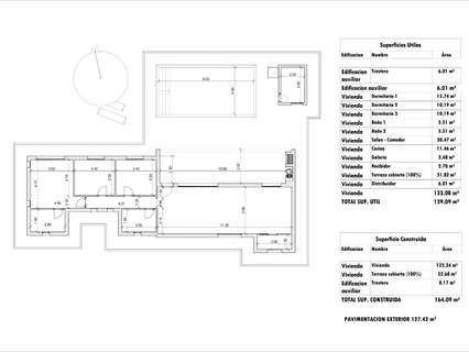
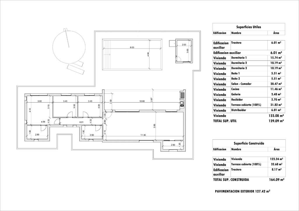
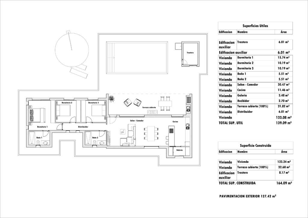
- 164 m2(1.573 €/m2)
- Alicante
- El Pinós/Pinoso
Distribución e instalaciones
- 3
- 2
Varios
- Sí
Certificado energético
Detalles
258.000 €
Moderna villa de obra nueva con 3 dormitorios, 2 baños y piscina privada – Confort, diseño y amplitud en perfecta armonía (modelo palatino)
Te presentamos esta espectacular villa contemporánea, que combina acabados de alta calidad, una distribución funcional y un diseño moderno. Ideal tanto como residencia permanente como para vacaciones en un entorno tranquilo y natural. Terreno no incluido, desde 50.000 euros.
Confort y calidad en cada rincón
Construida conforme a las normativas actuales, esta vivienda cuenta con una estructura de hormigón armado y excelente aislamiento térmico. La fachada blanca se realza con detalles en piedra natural y una zona de barbacoa integrada, revestida con elegantes azulejos porcelánicos.
Distribución
La propiedad ofrece 3 amplios dormitorios y 2 baños totalmente equipados, diseñados para brindar máxima comodidad. Los baños cuentan con acabados cerámicos de primera calidad, platos de ducha con mamparas fijas de cristal, sanitarios modernos, grifería monomando y muebles con lavabos integrados y espejos.
Espacios de vida modernos
La cocina, abierta al salón-comedor, está completamente equipada con mobiliario hasta el techo, encimera de Silestone (o similar), espacio para isla y preinstalación para campana extractora. Una zona luminosa y acogedora, ideal para disfrutar en familia o con amigos.
Exteriores pensados para disfrutar
En el exterior encontrarás tu propio oasis: una piscina privada de 8 x 4 metros, revestida con gresite, iluminada con luces LED, ducha exterior y cuarto técnico. El perímetro de la piscina y las terrazas están acabados con hormigón impreso antideslizante. Además, cuenta con una elegante barbacoa integrada y una zona opcional de césped artificial de bajo mantenimiento.
Tecnología y eficiencia energética
Una villa preparada para el futuro, con soluciones sostenibles:
Preinstalación de aire acondicionado por conductos (frío/calor)
Termo eléctrico de 100 litros para agua caliente sanitaria
Vídeo portero con pantalla
Preinstalación para paneles solares fotovoltaicos
Sistema de ventilación vertical para mayor eficiencia energética
Y además incluye:
Carpintería exterior en aluminio negro con rotura de puente térmico y doble acristalamiento Climalit
Pintura lisa blanca mate en techos y paredes
Armarios empotrados hasta el techo, revestidos interiormente con cajoneras y barras
Puerta automática para vehículos y muros decorativos
Parcela completamente vallada con malla metálica galvanizada
Dos tomas de agua exteriores
Una oportunidad única de adquirir una villa elegante, eficiente y confortable en plena naturaleza.
Contáctanos hoy mismo para más información o para agendar una visita. ¡Estaremos encantados de ayudarte!
Te presentamos esta espectacular villa contemporánea, que combina acabados de alta calidad, una distribución funcional y un diseño moderno. Ideal tanto como residencia permanente como para vacaciones en un entorno tranquilo y natural. Terreno no incluido, desde 50.000 euros.
Confort y calidad en cada rincón
Construida conforme a las normativas actuales, esta vivienda cuenta con una estructura de hormigón armado y excelente aislamiento térmico. La fachada blanca se realza con detalles en piedra natural y una zona de barbacoa integrada, revestida con elegantes azulejos porcelánicos.
Distribución
La propiedad ofrece 3 amplios dormitorios y 2 baños totalmente equipados, diseñados para brindar máxima comodidad. Los baños cuentan con acabados cerámicos de primera calidad, platos de ducha con mamparas fijas de cristal, sanitarios modernos, grifería monomando y muebles con lavabos integrados y espejos.
Espacios de vida modernos
La cocina, abierta al salón-comedor, está completamente equipada con mobiliario hasta el techo, encimera de Silestone (o similar), espacio para isla y preinstalación para campana extractora. Una zona luminosa y acogedora, ideal para disfrutar en familia o con amigos.
Exteriores pensados para disfrutar
En el exterior encontrarás tu propio oasis: una piscina privada de 8 x 4 metros, revestida con gresite, iluminada con luces LED, ducha exterior y cuarto técnico. El perímetro de la piscina y las terrazas están acabados con hormigón impreso antideslizante. Además, cuenta con una elegante barbacoa integrada y una zona opcional de césped artificial de bajo mantenimiento.
Tecnología y eficiencia energética
Una villa preparada para el futuro, con soluciones sostenibles:
Preinstalación de aire acondicionado por conductos (frío/calor)
Termo eléctrico de 100 litros para agua caliente sanitaria
Vídeo portero con pantalla
Preinstalación para paneles solares fotovoltaicos
Sistema de ventilación vertical para mayor eficiencia energética
Y además incluye:
Carpintería exterior en aluminio negro con rotura de puente térmico y doble acristalamiento Climalit
Pintura lisa blanca mate en techos y paredes
Armarios empotrados hasta el techo, revestidos interiormente con cajoneras y barras
Puerta automática para vehículos y muros decorativos
Parcela completamente vallada con malla metálica galvanizada
Dos tomas de agua exteriores
Una oportunidad única de adquirir una villa elegante, eficiente y confortable en plena naturaleza.
Contáctanos hoy mismo para más información o para agendar una visita. ¡Estaremos encantados de ayudarte!
- 14/10/2025
- 164 m2
- 1.573,17 €/m2
- 3
- 2
Immo Toro
Contactar
Compartir
Tu opinión












