Villa en venta en El Pinós/Pinoso
Datos básicos
- IT-0516
- 294.000 €
- 188 m2(1.564 €/m2)
- Alicante
- El Pinós/Pinoso
Distribución e instalaciones
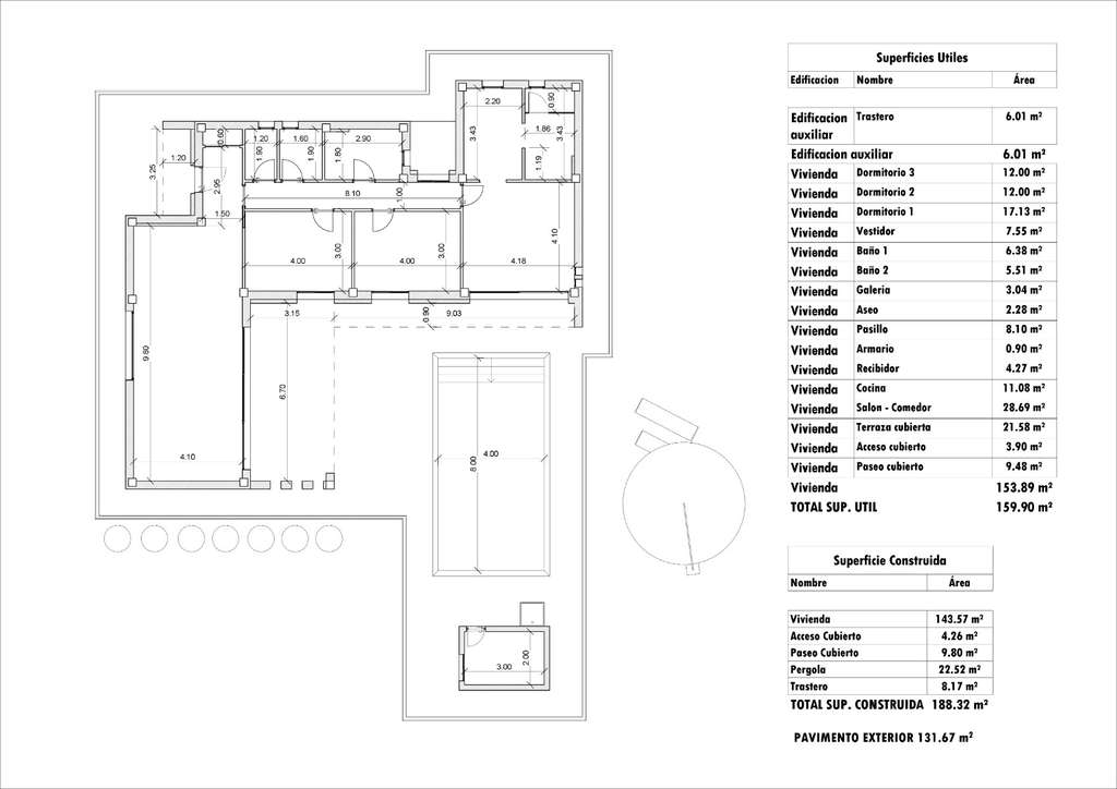
- 3
- 3
Varios
- Sí
Certificado energético
Detalles
294.000 €
Impresionante villa de 3 dormitorios y 3 baños con piscina privada en Pinoso (modelo stone-3)
Bienvenidos a esta moderna villa de lujo ubicada en el tranquilo pueblo de Pinoso, que ofrece una oportunidad única para disfrutar de una vida sofisticada en el corazón del campo español. Con 3 amplios dormitorios, 3 baños bellamente diseñados y una piscina privada, esta villa es el epítome de la comodidad, el estilo y la sostenibilidad. La parcela no está incluida, empieza desde 50.000 euros.
Diseño contemporáneo y construcción de alta calidad
Construida con los últimos estándares en construcción, la villa cuenta con:
Cimientos y estructura de concreto armado, asegurando una durabilidad excepcional.
Paredes exteriores de ladrillo termoarcilla con excelente aislamiento térmico, terminadas con elegante piedra natural y un acabado monocapa blanco para un aspecto moderno y sofisticado.
Techo plano invertido con aislamiento térmico de alta calidad y protección impermeable.
Acabados de lujo en el interior
Entra en un amplio salón que equilibra perfectamente la estética moderna con la funcionalidad:
Carpintería interior que incluye puertas lacadas en blanco, manillas de color acero y armarios empotrados que llegan hasta el techo, ofreciendo un amplio espacio de almacenamiento.
Suelos de cerámica porcelánica premium con opciones personalizables para un acabado elegante y duradero.
Baños sofisticados con accesorios sanitarios de porcelana vitrificada blanca, grifos cromados elegantes y áreas de ducha con pantallas de vidrio fijas.
Cocina completamente equipada
La cocina es el sueño de todo amante de la gastronomía, equipada con todo lo necesario para crear deliciosos platillos:
Unidades de cocina de alta gama que llegan hasta el techo, con espacios predesignados para electrodomésticos esenciales como frigorífico, lavavajillas y horno.
Encimera de Silestone o similar con isla y preinstalación para campana extractora.
Fregadero de acero inoxidable con grifo cromado de palanca única, facilitando la cocina y la limpieza.
Vivir al aire libre como nunca antes
Disfruta del hermoso clima mediterráneo en tu espacio exterior privado:
Piscina privada (8 x 4 metros) terminada con mosaico de cerámica, con una moldura blanca y luces LED que crean el ambiente perfecto.
El área alrededor de la piscina está acabada con concreto impreso e incluye una ducha exterior para mayor comodidad.
Opcional zona de césped artificial (aproximadamente 15 m²), creando un espacio de bajo mantenimiento y belleza para relajarse y entretenerse.
Características energéticamente eficientes y sostenibles
Esta villa ha sido diseñada con la sostenibilidad en mente:
Preinstalación de paneles solares fotovoltaicos para autoconsumo en el solárium.
Preinstalación de aire acondicionado, con conductos ya instalados para fácil colocación en la sala de estar y los dormitorios.
Sistema avanzado de ventilación vertical para mejorar la eficiencia energética y mantener una excelente calidad del aire interior.
Sistema de agua caliente mediante un calentador eléctrico de 100 litros.
Otros aspectos destacados:
Videoportero con pantalla de imagen y preinstalación para iluminación exterior.
Puerta eléctrica de acceso vehicular para facilitar el acceso a la propiedad.
Amplio cuarto de almacenamiento para la bomba de la piscina y otras necesidades de almacenamiento.
Gestión de aguas residuales mediante un tanque séptico de 3,000 litros.
Cerca segura alrededor de toda la parcela con malla de acero galvanizado y una puerta corredera automática para mayor privacidad y seguridad.
Una casa pensada para la comodidad y el lujo
Esta villa no solo ofrece todas las comodidades modernas que podrías desear, sino que también garantiza sostenibilidad, eficiencia energética y una experiencia de vida excepcional en una de las regiones más buscadas de España.
¡Contáctanos hoy mismo para más información o para agendar una visita y ver por ti...
Bienvenidos a esta moderna villa de lujo ubicada en el tranquilo pueblo de Pinoso, que ofrece una oportunidad única para disfrutar de una vida sofisticada en el corazón del campo español. Con 3 amplios dormitorios, 3 baños bellamente diseñados y una piscina privada, esta villa es el epítome de la comodidad, el estilo y la sostenibilidad. La parcela no está incluida, empieza desde 50.000 euros.
Diseño contemporáneo y construcción de alta calidad
Construida con los últimos estándares en construcción, la villa cuenta con:
Cimientos y estructura de concreto armado, asegurando una durabilidad excepcional.
Paredes exteriores de ladrillo termoarcilla con excelente aislamiento térmico, terminadas con elegante piedra natural y un acabado monocapa blanco para un aspecto moderno y sofisticado.
Techo plano invertido con aislamiento térmico de alta calidad y protección impermeable.
Acabados de lujo en el interior
Entra en un amplio salón que equilibra perfectamente la estética moderna con la funcionalidad:
Carpintería interior que incluye puertas lacadas en blanco, manillas de color acero y armarios empotrados que llegan hasta el techo, ofreciendo un amplio espacio de almacenamiento.
Suelos de cerámica porcelánica premium con opciones personalizables para un acabado elegante y duradero.
Baños sofisticados con accesorios sanitarios de porcelana vitrificada blanca, grifos cromados elegantes y áreas de ducha con pantallas de vidrio fijas.
Cocina completamente equipada
La cocina es el sueño de todo amante de la gastronomía, equipada con todo lo necesario para crear deliciosos platillos:
Unidades de cocina de alta gama que llegan hasta el techo, con espacios predesignados para electrodomésticos esenciales como frigorífico, lavavajillas y horno.
Encimera de Silestone o similar con isla y preinstalación para campana extractora.
Fregadero de acero inoxidable con grifo cromado de palanca única, facilitando la cocina y la limpieza.
Vivir al aire libre como nunca antes
Disfruta del hermoso clima mediterráneo en tu espacio exterior privado:
Piscina privada (8 x 4 metros) terminada con mosaico de cerámica, con una moldura blanca y luces LED que crean el ambiente perfecto.
El área alrededor de la piscina está acabada con concreto impreso e incluye una ducha exterior para mayor comodidad.
Opcional zona de césped artificial (aproximadamente 15 m²), creando un espacio de bajo mantenimiento y belleza para relajarse y entretenerse.
Características energéticamente eficientes y sostenibles
Esta villa ha sido diseñada con la sostenibilidad en mente:
Preinstalación de paneles solares fotovoltaicos para autoconsumo en el solárium.
Preinstalación de aire acondicionado, con conductos ya instalados para fácil colocación en la sala de estar y los dormitorios.
Sistema avanzado de ventilación vertical para mejorar la eficiencia energética y mantener una excelente calidad del aire interior.
Sistema de agua caliente mediante un calentador eléctrico de 100 litros.
Otros aspectos destacados:
Videoportero con pantalla de imagen y preinstalación para iluminación exterior.
Puerta eléctrica de acceso vehicular para facilitar el acceso a la propiedad.
Amplio cuarto de almacenamiento para la bomba de la piscina y otras necesidades de almacenamiento.
Gestión de aguas residuales mediante un tanque séptico de 3,000 litros.
Cerca segura alrededor de toda la parcela con malla de acero galvanizado y una puerta corredera automática para mayor privacidad y seguridad.
Una casa pensada para la comodidad y el lujo
Esta villa no solo ofrece todas las comodidades modernas que podrías desear, sino que también garantiza sostenibilidad, eficiencia energética y una experiencia de vida excepcional en una de las regiones más buscadas de España.
¡Contáctanos hoy mismo para más información o para agendar una visita y ver por ti...
- 14/10/2025
- 188 m2
- 1.563,83 €/m2
- 3
- 3
Immo Toro
Contactar
Compartir
Tu opinión









