Villa en venta en El Pinós/Pinoso
Datos básicos
- HV-24679
- 565.000 €
- 184 m2(3.071 €/m2)
- Alicante
- El Pinós/Pinoso
Distribución e instalaciones
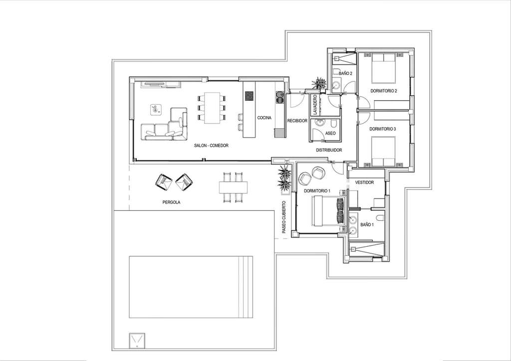
- 3
- 2
Varios
- Sí
Certificado energético
Detalles
565.000 €
En el corazón de Pinoso, se encuentra esta impresionante villa de nueva construcción, diseñada para combinar estilo, comodidad y sostenibilidad. Disponible ahora mismo, esta propiedad ofrece un hogar listo para disfrutar, con acabados de alta calidad y todos los extras incluidos por un precio final de 565.000 €, incluyendo villa, parcela y equipamiento completo.
Características principales:
Carpintería de aluminio con rotura de puente térmico y persianas motorizadas en todas las estancias (excepto salón-comedor y galería).
Armarios empotrados en todas las habitaciones.
Sanitarios con inodoro suspendido.
Platos de ducha extraplanos con mampara de cristal templado fijo.
Grifería monomando y muebles de baño con lavabo empotrado y espejo.
Cocina equipada con muebles y bancada de Silestone o similar.
Videoportero con imagen.
Fachada exterior con iluminación LED.
Preinstalación de punto de carga para coche eléctrico en garaje.
Instalación de climatización frío/calor por conductos.
Sistema de agua caliente y calefacción por suelo radiante con equipo de aerotermia.
Instalación de placas fotovoltaicas.
Depuradora biológica.
Muro frontal de parcela de bloque con revestimiento de piedra natural.
Entrada de la vivienda con mamportería.
10 palmeras en parcela con riego automático y zona ajardinada.
Puerta automática corredera con motor y mando.
Piscina de 8x4 metros con dos focos LED y ducha exterior.
Zona de césped artificial.
Preinstalación para climatización del agua de la piscina.
Perímetro de la piscina pavimentado en porcelánico.
Barbacoa con trastero para instalaciones y aseo.
Garaje de 33 m² con puerta automática y mando.
Esta villa ofrece un estilo de vida exclusivo, combinando lujo, confort y eficiencia energética en un entorno privilegiado de Pinoso.
Características principales:
Carpintería de aluminio con rotura de puente térmico y persianas motorizadas en todas las estancias (excepto salón-comedor y galería).
Armarios empotrados en todas las habitaciones.
Sanitarios con inodoro suspendido.
Platos de ducha extraplanos con mampara de cristal templado fijo.
Grifería monomando y muebles de baño con lavabo empotrado y espejo.
Cocina equipada con muebles y bancada de Silestone o similar.
Videoportero con imagen.
Fachada exterior con iluminación LED.
Preinstalación de punto de carga para coche eléctrico en garaje.
Instalación de climatización frío/calor por conductos.
Sistema de agua caliente y calefacción por suelo radiante con equipo de aerotermia.
Instalación de placas fotovoltaicas.
Depuradora biológica.
Muro frontal de parcela de bloque con revestimiento de piedra natural.
Entrada de la vivienda con mamportería.
10 palmeras en parcela con riego automático y zona ajardinada.
Puerta automática corredera con motor y mando.
Piscina de 8x4 metros con dos focos LED y ducha exterior.
Zona de césped artificial.
Preinstalación para climatización del agua de la piscina.
Perímetro de la piscina pavimentado en porcelánico.
Barbacoa con trastero para instalaciones y aseo.
Garaje de 33 m² con puerta automática y mando.
Esta villa ofrece un estilo de vida exclusivo, combinando lujo, confort y eficiencia energética en un entorno privilegiado de Pinoso.
- 31/10/2025
- 184 m2
- 3.070,65 €/m2
- 3
- 2
Procare Estates
Contactar
Compartir
Tu opinión

























