Ático en venta en Elche/Elx
Datos básicos
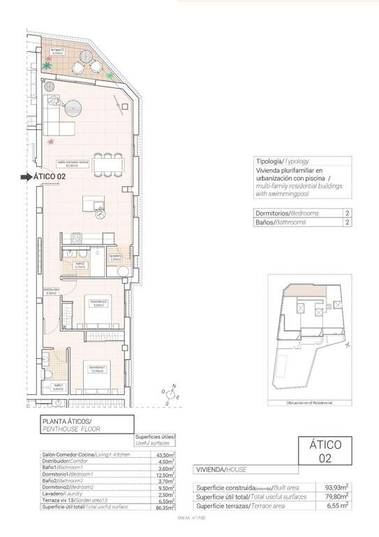
- REDSP-68943
- 220.000 €
- 93 m2(2.366 €/m2)
- Alicante
- Elche/Elx
Distribución e instalaciones
- 2
- 2
Varios
- Sí
Certificado energético
Detalles
220.000 €
Exclusivos Apartamentos de Obra Nueva con Vistas a los Viñedos en Hondón de las Nieves
Viviendas Modernas en un Entorno Natural Único
Descubra esta nueva promoción de apartamentos en Hondón de las Nieves, un encantador pueblo situado en un hermoso valle rodeado de olivares y almendros. Este residencial ofrece 15 exclusivas viviendas de 2 y 3 dormitorios, todas diseñadas para ofrecer el máximo confort, eficiencia energética y unas impresionantes vistas a los viñedos del Vinalopó.
Ubicado en el Vinalopó Medio, este tranquilo enclave es ideal para quienes buscan un estilo de vida mediterráneo relajado, con fácil acceso a la naturaleza y a todos los servicios esenciales.
Características de Alta Calidad y Diseño Moderno
Cada apartamento ha sido diseñado con materiales de primera calidad y una distribución funcional, ofreciendo:
Espacios amplios y diáfanos, ideales para la vida moderna.
Cocinas completamente amuebladas con encimeras de granito.
Baños de alta gama con cisternas empotradas y sanitarios de primera calidad.
Eficiencia energética con sistema de aerotermia para agua caliente.
Preinstalación de aire acondicionado por conductos, garantizando confort en todas las estaciones.
Ventanas de aluminio con doble acristalamiento, proporcionando aislamiento térmico y acústico.
Puerta de entrada de seguridad reforzada para mayor tranquilidad.
Plaza de aparcamiento y trastero en sótano, incluidos en el precio.
Ascensor en el edificio, asegurando accesibilidad y comodidad.
Placas solares en la azotea para mejorar la eficiencia energética y reducir costes de mantenimiento.
Además, el residencial cuenta con una piscina comunitaria, perfecta para disfrutar del clima mediterráneo.
Ubicación Privilegiada en Hondón de las Nieves
Hondón de las Nieves es una localidad con gran tradición vinícola, famosa por su uva de mesa con denominación de origen Vinalopó. Rodeado por la Sierra de Crevillente, el entorno ofrece numerosas rutas de senderismo, espacios naturales y una rica oferta cultural e histórica.
Desde su nueva vivienda, tendrá acceso rápido a los principales puntos de interés de la zona:
Aeropuerto de Alicante – 30 km (30 minutos en coche)
Playas de Alicante – 35 km (35 minutos en coche)
Elche – 20 km (20 minutos en coche)
Parque Natural de Crevillente – 10 km (15 minutos en coche)
Campos de golf – 25 km (30 minutos en coche)
Un Hogar Ideal en la Costa Blanca
Disfrute de la tranquilidad del Valle del Hondón, sin renunciar a la proximidad de Alicante y Elche. Ya sea como residencia habitual, casa de vacaciones o inversión inmobiliaria, estos modernos apartamentos son una opción inmejorable.
Contacte con nosotros hoy mismo para más información o para concertar una visita.
- 30/10/2025
- 93 m2
- 2.365,59 €/m2
- 2
- 2
Contactar
Compartir
Tu opinión









