Villa en venta en Elche/Elx zona La Marina
Datos básicos
- SP-43526
- 459.000 €
- 98 m2(4.684 €/m2)
- Alicante
- Elche/Elx
- La Marina
Distribución e instalaciones
- 3
- 3
Varios
- Sí
Certificado energético
- B
Detalles
459.000 €
Nuevas villas adosadas junto al mar en La Marina - Playa El Pinet
Vida mediterránea exclusiva cerca de la playa
Esta nueva promoción residencial de villas adosadas en La Marina, a solo 500 metros de la playa El Pinet, ofrece una combinación inmejorable de diseño moderno y un entorno natural privilegiado. Situado junto al Parque Natural de Las Salinas, los residentes pueden disfrutar de playas de arena dorada, aguas cristalinas, dunas protegidas y un bosque de pinos centenario, el lugar perfecto para vivir todo el año o disfrutar como refugio vacacional.
Modernas villas mediterráneas diseñadas para el confort
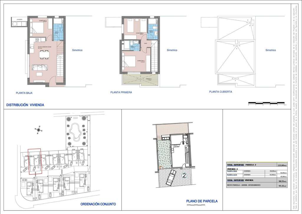
Las villas se distribuyen en dos plantas y cuentan con:
3 amplios dormitorios y 3 baños
Planta baja con cocina y salón diáfanos, un dormitorio, un cuarto de baño y acceso al jardín privado con plaza de aparcamiento
Primera planta con dos dormitorios, ambos con cuarto de baño, y una gran terraza conectada al dormitorio principal
Cada vivienda ha sido diseñada con interiores luminosos y confortables y acabados de alta calidad, creando un ambiente único y acogedor.
Totalmente equipadas con características de primera calidad
Estas villas se entregan con:
Cocina totalmente equipada con placa de inducción, campana extractora, horno, frigorífico y preinstalación para lavavajillas
Muebles modernos con acabados de primera calidad
Aire acondicionado por conductos totalmente instalado
Persianas eléctricas
Piscina comunitaria rodeada de jardines paisajísticos
Una ubicación privilegiada en la Costa Blanca
Vivir en La Marina significa disfrutar de todas las comodidades de una ciudad bien comunicada, rodeada de naturaleza y del mar Mediterráneo. A poca distancia a pie encontrará tiendas, restaurantes y servicios esenciales.
Distancias a puntos de interés clave:
Playa de El Pinet: 500 m
Ciudad de Elche: 17 km
Aeropuerto Internacional de Alicante-Elche: 22 km
Campos de golf (La Marquesa, El Plantío): 15-20 km
Ciudad y puerto de Alicante: 30 km
El estilo de vida costero perfecto
Tanto si busca una residencia permanente, una segunda vivienda o una inversión inteligente, estas villas en El Pinet ofrecen un estilo de vida marcado por el mar, la naturaleza y el confort moderno. Con sol durante todo el año y una ubicación privilegiada, La Marina es uno de los lugares más deseados de la Costa Blanca.
Póngase en contacto con nosotros hoy mismo para concertar una visita y asegurarse la villa de sus sueños junto al Mediterráneo.
425
- hace 5 días
- 98 m2
- 4.683,67 €/m2
- 3
- 3
Global Spain
Contactar
Compartir
Tu opinión


























