Ático en venta en Finestrat zona Finestrat
Datos básicos
- NB-85959
- 450.000 €
- 73 m2(6.164 €/m2)
- Alicante
- Finestrat
- Finestrat
Distribución e instalaciones
- 2
- 2
Certificado energético
Detalles
450.000 €
COMPLEJO RESIDENCIAL DE OBRA NUEVA CON VISTAS AL MAR EN FINESTRAT
Complejo residencial de obra nueva con vistas al mar en Finestrat.
Complejo formado por 9 bloques de 9 apartamentos cada uno.
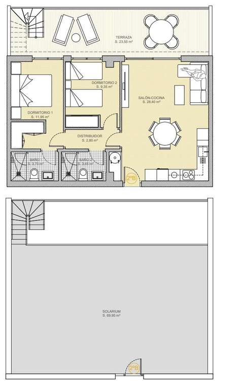
Hay 3 tipos de viviendas: 27 áticos con solarium privado, 27 en primera planta con terrazas y 27 plantas bajas con jardín privado.
Todo dentro de un entorno privado y exclusivo, para disfrutar de actividades deportivas
y de ocio.
Las viviendas tienen su diseño moderno y exclusivo, y están equipadas con las últimas
tecnologías constructivas aplicadas al confort, aislamiento térmico y acústico, aerotermia, aire acondicionado, etc.
Diseñadas en un entorno privado de lujo con piscina comunitaria con zona separada para niños y adultos. Amplias zonas ajardinadas privadas. Gimnasio con jacuzzi, vestuarios y duchas. Zona de relax. Zona de juegos infantiles.
Desde aquí podrá disfrutar de unas privilegiadas vistas al mar Mediterráneo, así como del fantástico y espectacular Skyline de Benidorm.
Finestrat situado en la comarca de la Marina Baixa de la Costa Blanca, cerca de la vecina Benidorm y a unos 40 kilómetros de la ciudad de Alicante y del aeropuerto internacional.
Benidorm está a sólo cinco minutos en coche de las propiedades y ofrece todos los servicios que pueda necesitar, incluyendo tiendas, bares, restaurantes, supermercados, bancos, farmacias y varias escuelas privadas internacionales.
Cerca de las playas de Levante, Poniente y Cala de Finestrat, con más de 6km de longitud que se encuentran entre las mejores de Europa galardonadas por la Unión Europea con Banderas Azules.
Todos los servicios de ocio como los parques temáticos de Aqua Natura, Terra Mítica, Terra Natura, Aqualandia y Mundomar, los campos de Golf Sierra Cortina y Villaitana, senderismo y escalada en el Puig Campana un marco natural incomparable o disfrutar de los deportes náuticos.
Complejo residencial de obra nueva con vistas al mar en Finestrat.
Complejo formado por 9 bloques de 9 apartamentos cada uno.
Hay 3 tipos de viviendas: 27 áticos con solarium privado, 27 en primera planta con terrazas y 27 plantas bajas con jardín privado.
Todo dentro de un entorno privado y exclusivo, para disfrutar de actividades deportivas
y de ocio.
Las viviendas tienen su diseño moderno y exclusivo, y están equipadas con las últimas
tecnologías constructivas aplicadas al confort, aislamiento térmico y acústico, aerotermia, aire acondicionado, etc.
Diseñadas en un entorno privado de lujo con piscina comunitaria con zona separada para niños y adultos. Amplias zonas ajardinadas privadas. Gimnasio con jacuzzi, vestuarios y duchas. Zona de relax. Zona de juegos infantiles.
Desde aquí podrá disfrutar de unas privilegiadas vistas al mar Mediterráneo, así como del fantástico y espectacular Skyline de Benidorm.
Finestrat situado en la comarca de la Marina Baixa de la Costa Blanca, cerca de la vecina Benidorm y a unos 40 kilómetros de la ciudad de Alicante y del aeropuerto internacional.
Benidorm está a sólo cinco minutos en coche de las propiedades y ofrece todos los servicios que pueda necesitar, incluyendo tiendas, bares, restaurantes, supermercados, bancos, farmacias y varias escuelas privadas internacionales.
Cerca de las playas de Levante, Poniente y Cala de Finestrat, con más de 6km de longitud que se encuentran entre las mejores de Europa galardonadas por la Unión Europea con Banderas Azules.
Todos los servicios de ocio como los parques temáticos de Aqua Natura, Terra Mítica, Terra Natura, Aqualandia y Mundomar, los campos de Golf Sierra Cortina y Villaitana, senderismo y escalada en el Puig Campana un marco natural incomparable o disfrutar de los deportes náuticos.
- hace 9 horas
- 73 m2
- 6.164,38 €/m2
- 2
- 2
Rayos de Sol
Contactar
Compartir
Tu opinión




















