Villa en venta en Finestrat zona Campana Garden
Datos básicos
- NB-70664
- 770.000 €
- 198 m2(3.889 €/m2)
- Alicante
- Finestrat
- Campana Garden
Distribución e instalaciones
- 3
- 3
Varios
- Sí
Certificado energético
Detalles
770.000 €
VILLAS DE OBRA NUEVA EN FINESTRAT
Villas modernas de obra nueva en Finestrat.
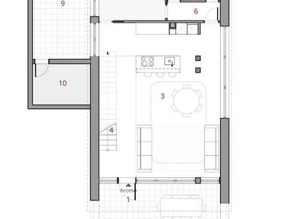
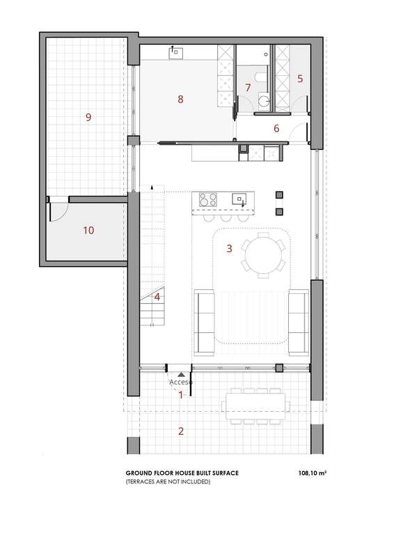
Villas con 3 dormitorios y 3 baños, cocina americana con salón, terraza con magníficas vistas sobre Benidorm, jardín privado con piscina y plaza de aparcamiento.
Está concebido como un espacio totalmente transitable con caminos interiores y exteriores que dan acceso independiente a cada planta. Este diseño ofrece varias perspectivas del conjunto arquitectónico y su entorno, con el mar y Sierra Cortina como pintoresco telón de fondo.
La entrada principal a la villa se encuentra en la parte baja de la parcela, con un amplio aparcamiento para dos vehículos. Un espejo de agua con tumbonas le introduce en la planta baja, caracterizada por amplias paredes adornadas con mampostería. Desde el salón se extiende sin solución de continuidad una terraza, posible gracias a un gran ventanal abatible. Las contraventanas de madera sobre muros de mampostería proporcionan una zona exterior parcialmente cubierta para mayor comodidad.
La piscina, de tonos aguamarina y revestida de gresite, linda con una zona pavimentada de gres porcelánico antideslizante con aspecto de madera.
Este espacio también incluye una zona de barbacoa que se puede personalizar a gusto del usuario, con acceso desde una zona pavimentada a través del terreno natural.
Finestrat se encuentra en la comarca de la Marina Baixa de la Costa Blanca, cerca de la vecina Benidorm y a unos 40 kilómetros de la ciudad de Alicante y del aeropuerto internacional.
El pueblo está situado en la ladera del Puig Campana y ofrece hermosas vistas de las montañas, la costa y el mar Mediterráneo.
Benidorm está a sólo cinco minutos en coche de las propiedades y ofrece todos los servicios que pueda necesitar, incluyendo tiendas, bares, restaurantes, supermercados, bancos, farmacias y varias escuelas privadas internacionales.
- hace 2 días
- 198 m2
- 3.888,89 €/m2
- 3
- 3
Buy in Spain
Contactar
Compartir
Tu opinión













